
Brunswick Street, Dewsbury, WF13
- PROPERTY TYPE
Land
- SIZE
Ask agent
Key features
- ***DEVELOPMENT PLOTS x 2 FOR SALE***
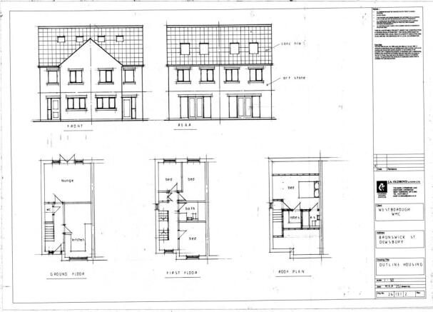
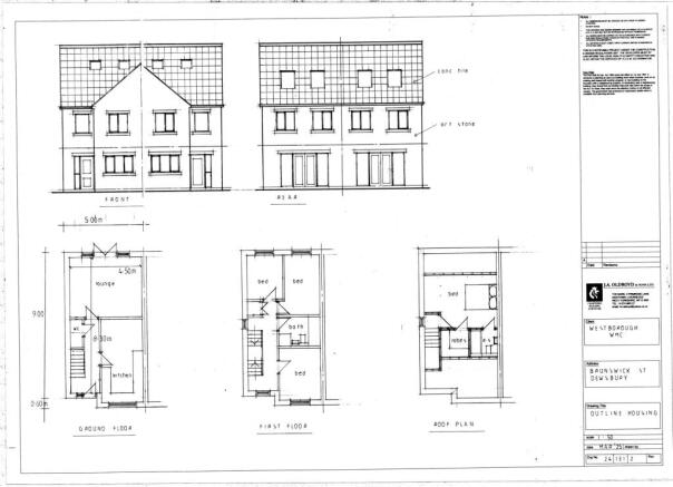
- **PRE APPROVED PLANNING FOR 2 x 4 Bed Semis**
- *SUPERB OPPORTUNITY FOR SELF BUILDERS*
- Three Bed Three Storey Semi Detached Properties
- With Driveway Parking
- Popular Location
- Close To Local Amenities
- Catchment Area For Well Regarded School
Description
This is a rare opportunity to acquire two development plots with pre-approved planning permission for the construction of two three-bedroom, three-storey semi-detached properties. Situated in a popular and well-established location of Westborough, these plots present an ideal prospect for self-builders or developers seeking to create quality family homes. The proposed properties will offer spacious accommodation arranged over three floors, providing flexibility for modern living. Each home will benefit from driveway parking, adding convenience for future occupants.
The plots are positioned close to a range of local amenities, including shops, cafes, and essential services, ensuring daily needs are easily met. The area is also within the catchment zone for a well-regarded school, making it an attractive choice for families. With excellent transport links nearby, residents will enjoy easy access to surrounding areas and major routes.
This is an outstanding chance to build bespoke properties tailored to contemporary lifestyles, in a location that consistently attracts demand. Whether you are looking to self-build or invest, these development plots offer significant potential. Early viewing and enquiries are recommended, as opportunities of this nature are seldom available in such a sought-after setting. Full planning documentation and further details are available upon request.
BOUNDARIES & OWNERSHIP
The boundaries and ownerships have not been checked on the title deeds for any discrepancies or rights of way. All prospective purchasers should make their own enquiries before proceeding to exchange of contracts.
ANTI MONEY LAUNDERING (AML) CHECKS
We are required by law to conduct anti-money laundering checks on all those selling or buying a property. Whilst we retain responsibility for ensuring checks and any ongoing monitoring are carried out correctly, the initial checks are carried out on our behalf by Lifetime Legal who will contact you once you have agreed to instruct us in your sale or had an offer accepted on a property you wish to buy. The cost of these checks is £75 (incl. VAT), which covers the cost of obtaining relevant data and any manual checks and monitoring which might be required. This fee will need to be paid by you in advance of us publishing your property (in the case of a vendor) or issuing a memorandum of sale (in the case of a buyer), directly to Lifetime Legal, and is non-refundable. We will receive some of the fee taken by Lifetime Legal to compensate for its role in the provision of these checks.
Brunswick Street, Dewsbury, WF13
NEAREST STATIONS
Distances are straight line measurements from the centre of the postcode- Dewsbury Station0.8 miles
- Batley Station1.4 miles
- Ravensthorpe Station1.5 miles

Notes
Disclaimer - Property reference f5d7e312-d176-43ef-a718-267dabc1f7d7. The information displayed about this property comprises a property advertisement. Rightmove.co.uk makes no warranty as to the accuracy or completeness of the advertisement or any linked or associated information, and Rightmove has no control over the content. This property advertisement does not constitute property particulars. The information is provided and maintained by Trust Sales & Lettings, Mirfield. Please contact the selling agent or developer directly to obtain any information which may be available under the terms of The Energy Performance of Buildings (Certificates and Inspections) (England and Wales) Regulations 2007 or the Home Report if in relation to a residential property in Scotland.
Map data ©OpenStreetMap contributors.





