3 bedroom terraced house for sale
23 Redruth Drive, Mansfield NG18 4QB

- PROPERTY TYPE
Terraced
- BEDROOMS
3
- SIZE
Ask agent
- TENUREDescribes how you own a property. There are different types of tenure - freehold, leasehold, and commonhold.Read more about tenure in our glossary page.
Freehold
Key features
- Terrace House
- Three Bedrooms
- Ideal for Investor/Developers
- Garden to Rear
- EPC - C
Description
*ONLINE Unconditional Auction Opening 19 January 2026*
To register for the legal pack and bidding, please visit our website: auctionhouse.co.uk/lincolnshire
Situation:
The property is situate on the popular Redruth Drive, Mansfield, being well positioned for access to the town centre and its wide range of facilities and amenities, along with excellent transport links to the surrounding towns and cities including Sheffield, Nottingham and Newark.
Description:
A wonderful opportunity to acquire this 3 bedroom end of terrace house, offering well proportioned living accommodation, with the benefit of central heating and double glazing. The property requires some improvement works and would pose an ideal investment opportunity for those looking to generate a strong yield, with rents in the area circa £850pcm (£10,200 per annum), or indeed scope to add value with some properties in the area of a similar size being sold for up to £170,000.
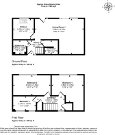
Accommodation Ground Floor
Entrance Hallway
Kitchen
Living Room
Dining Area
Room currently configured as shower room (not fitted)
First Floor
Bedroom 1
Bedroom 2
Bedroom 3
Outside
Gardens to rear
Material Information Please copy and paste the link below into your browser for a full breakdown of material information for this property
_https_mip.urls.addland.com/s1JEXfa9vakueVWqkRXhTf
Tenure:
The property is freehold. All prospective bidders should satisfy themselves of terms of the tenure, ground rent and service charge if applicable, by inspecting the legal pack.
Council Tax:
The property falls within Mansfield Council – BAND A
Possession:
Vacant possession will be given upon completion.
Viewing:
Strictly by appointment with Auction House.
Services:
Prospective purchasers are advised to make their own enquiries of the relevant statutory authorities. NB: Services, Apparatus and Equipment have not been tested by Auction House and therefore cannot be verified as being in working order. The buyer is advised to obtain verification from their Solicitor/Surveyor.
These particulars are believed to be correct but their accuracy is not guaranteed and they do not form any part of any contract. Information relating to Rating and Town and Country Planning matters has been obtained by verbal enquiry only. Prospective purchasers are advised to make their own enquiries of the appropriate Authority. Information relating to Phone & Broadband can be found by visiting Ofcom. All measurements, areas and distances are approximate only. Potential purchasers are advised to check them.
Tenure: Freehold
EPC Rating: C
Administration Fee: £3600 inc VAT payable on exchange of contracts.
Disbursements: Please see the legal pack for any disbursements listed that may become payable by the purchaser on completion.
- COUNCIL TAXA payment made to your local authority in order to pay for local services like schools, libraries, and refuse collection. The amount you pay depends on the value of the property.Read more about council Tax in our glossary page.
- Band: A
- PARKINGDetails of how and where vehicles can be parked, and any associated costs.Read more about parking in our glossary page.
- Yes
- GARDENA property has access to an outdoor space, which could be private or shared.
- Yes
- ACCESSIBILITYHow a property has been adapted to meet the needs of vulnerable or disabled individuals.Read more about accessibility in our glossary page.
- Ask agent
Energy performance certificate - ask agent
23 Redruth Drive, Mansfield NG18 4QB
Add an important place to see how long it'd take to get there from our property listings.
__mins driving to your place
Get an instant, personalised result:
- Show sellers you’re serious
- Secure viewings faster with agents
- No impact on your credit score
Your mortgage
Notes
Staying secure when looking for property
Ensure you're up to date with our latest advice on how to avoid fraud or scams when looking for property online.
Visit our security centre to find out moreDisclaimer - Property reference 202510301500sq_4pgk. The information displayed about this property comprises a property advertisement. Rightmove.co.uk makes no warranty as to the accuracy or completeness of the advertisement or any linked or associated information, and Rightmove has no control over the content. This property advertisement does not constitute property particulars. The information is provided and maintained by Auction House, Lincolnshire. Please contact the selling agent or developer directly to obtain any information which may be available under the terms of The Energy Performance of Buildings (Certificates and Inspections) (England and Wales) Regulations 2007 or the Home Report if in relation to a residential property in Scotland.
Auction Fees: The purchase of this property may include associated fees not listed here, as it is to be sold via auction. To find out more about the fees associated with this property please call Auction House, Lincolnshire on 01427 800574.
*Guide Price: An indication of a seller's minimum expectation at auction and given as a Guide Price or a range of Guide Prices. This is not necessarily the figure a property will sell for and is subject to change prior to the auction.
Reserve Price: Each auction property will be subject to a Reserve Price below which the property cannot be sold at auction. Normally the Reserve Price will be set within the range of Guide Prices or no more than 10% above a single Guide Price.
*This is the average speed from the provider with the fastest broadband package available at this postcode. The average speed displayed is based on the download speeds of at least 50% of customers at peak time (8pm to 10pm). Fibre/cable services at the postcode are subject to availability and may differ between properties within a postcode. Speeds can be affected by a range of technical and environmental factors. The speed at the property may be lower than that listed above. You can check the estimated speed and confirm availability to a property prior to purchasing on the broadband provider's website. Providers may increase charges. The information is provided and maintained by Decision Technologies Limited. **This is indicative only and based on a 2-person household with multiple devices and simultaneous usage. Broadband performance is affected by multiple factors including number of occupants and devices, simultaneous usage, router range etc. For more information speak to your broadband provider.
Map data ©OpenStreetMap contributors.




