High street retail property for sale
72 Albany Road, Cardiff CF24 3RS
- SIZE AVAILABLE
1,643 sq ft
153 sq m
- SECTOR
High street retail property for sale
- USE CLASSUse class orders: A1 Shops, A3 Restaurants and Cafes and A5 Hot Food Take away
A1, A3, A5
Key features
- Ground floor and basement retail space
- Office / storage / kitchenette areas to the rear
- Large garden area suitable for external seating
- Upper floors toilet facilities and cellular office
- Planning Application: 25/01069/FUL
Description
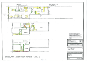
The premise comprises a ground floor and basement retail space with excellent frontage onto Albany Road. The ground floor also includes office / storage areas to the rear, in addition to kitchenette facilities. The rear has a large garden area suitable for external display or seating. The upper floors comprise toilet facilities and cellular office space over 2 floors.
The property benefits from existing A1 retail planning and has recently obtained consent for A3, restaurant and takeaway. The property also benefits from residential consent on the uppers for conversion into 3 apartments. Planning Application: 25/01069/FUL.
What3Words dull.civic.entry
Energy Performance Certificates
EPCBrochures
72 Albany Road, Cardiff CF24 3RS
NEAREST STATIONS
Distances are straight line measurements from the centre of the postcode- Cathays Station0.6 miles
- Cardiff Queen Street Station0.8 miles
- Cardiff Central Station1.4 miles
Notes
Disclaimer - Property reference FM250118. The information displayed about this property comprises a property advertisement. Rightmove.co.uk makes no warranty as to the accuracy or completeness of the advertisement or any linked or associated information, and Rightmove has no control over the content. This property advertisement does not constitute property particulars. The information is provided and maintained by Fletcher Morgan Consultants Limited, Cardiff. Please contact the selling agent or developer directly to obtain any information which may be available under the terms of The Energy Performance of Buildings (Certificates and Inspections) (England and Wales) Regulations 2007 or the Home Report if in relation to a residential property in Scotland.
Map data ©OpenStreetMap contributors.





