
Maybury Road, Maybury, Edinburgh, EH12 8NE

- PROPERTY TYPE
Bungalow
- BEDROOMS
2
- SIZE
Ask developer
- TENUREDescribes how you own a property. There are different types of tenure - freehold, leasehold, and commonhold.Read more about tenure in our glossary page.
Ask developer
Key features
- Fully-fitted kitchen is bright and airy with views to the rear garden
- Large cupboard in the central hallway provides a useful storage solution
- Two well-proportioned bedrooms offer plenty of space to relax in
- Bedroom one includes en suite shower
- Storage cupboards included in both bedrooms
- Family bathroom with tiles from Porcelanosa
- NHBC 10-year warranty
- Taylor Wimpey 2-year warranty
Description
Plot 74 | The Angus | West Craigs
The Angus 2-bedroom bungalow is an attractive place for buyers to call home. This bungalow is a perfect first home for those looking to take the leap on the property ladder or buyers looking to downsize. The central hallway leads to the open-plan kitchen and breakfast area with French doors opening to the private garden making this area feel bright and spacious. You will be able to swing these doors open during the summer nights and when you have friends’ round. When you do venture to your bed at night, there’s space for visitors or kids in bedroom two, and a private sanctuary for you in the large bedroom one with en suite shower room. You can store coats and shoes in the useful storage cupboard in the hallway.Tenure: Freehold
Council Tax Band: TBC - Council Tax Band will be confirmed by the local authority on completion of the property
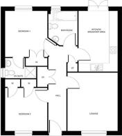
Room Dimensions
- Bathroom - 2.09m x 2.49m, 6'10" x 8'2"
- Bedroom 1 - 3.03m x 3.21m, 9'10" x 10'6"
- Bedroom 2 - 3.03m x 3.11m, 9'11" x 10'3"
- Kitchen Breakfast Area - 2.81m x 4.39m, 9'3" x 14'5"
- Lounge - 3.61m x 4.23m, 11'10" x 13'10"
- COUNCIL TAXA payment made to your local authority in order to pay for local services like schools, libraries, and refuse collection. The amount you pay depends on the value of the property.Read more about council Tax in our glossary page.
- Ask developer
- PARKINGDetails of how and where vehicles can be parked, and any associated costs.Read more about parking in our glossary page.
- Ask developer
- GARDENA property has access to an outdoor space, which could be private or shared.
- Yes
- ACCESSIBILITYHow a property has been adapted to meet the needs of vulnerable or disabled individuals.Read more about accessibility in our glossary page.
- Ask developer
Energy performance certificate - ask developer
- Wide range of 2, 3, 4 and 5 bedroom homes
- Perfect for first time buyers and families alike
- You'll find shops and local amenities within a 10-minute walk
- Great outdoors on your doorstep
Maybury Road, Maybury, Edinburgh, EH12 8NE
Add an important place to see how long it'd take to get there from our property listings.
__mins driving to your place
Get an instant, personalised result:
- Show sellers you’re serious
- Secure viewings faster with agents
- No impact on your credit score
About Taylor Wimpey
Who we are:
In 2007 George Wimpey and Taylor Woodrow merged to form Taylor Wimpey. We are proud of the home building and construction heritage of both companies, which dates back more than 100 years.
What we do:
We build and sell over 10,000 homes each year. We also make a positive contribution to the communities in which we work by developing infrastructure and making financial contributions to local authorities.
We build a wide range of homes in the UK, from apartments to six-bedroom houses. We completed 14,154 new homes in 2022, including joint ventures. In addition, we build affordable housing across the UK, which represented 21% of our total completions in 2022.
Working with us
We operate at a local level from 22 regional businesses across the UK, and we also have operations in Spain.
We have a clear purpose to deliver great homes and create thriving communities.
Your mortgage
Notes
Staying secure when looking for property
Ensure you're up to date with our latest advice on how to avoid fraud or scams when looking for property online.
Visit our security centre to find out moreDisclaimer - Property reference 123-21920-074_2_31_100774. The information displayed about this property comprises a property advertisement. Rightmove.co.uk makes no warranty as to the accuracy or completeness of the advertisement or any linked or associated information, and Rightmove has no control over the content. This property advertisement does not constitute property particulars. The information is provided and maintained by Taylor Wimpey. Please contact the selling agent or developer directly to obtain any information which may be available under the terms of The Energy Performance of Buildings (Certificates and Inspections) (England and Wales) Regulations 2007 or the Home Report if in relation to a residential property in Scotland.
*This is the average speed from the provider with the fastest broadband package available at this postcode. The average speed displayed is based on the download speeds of at least 50% of customers at peak time (8pm to 10pm). Fibre/cable services at the postcode are subject to availability and may differ between properties within a postcode. Speeds can be affected by a range of technical and environmental factors. The speed at the property may be lower than that listed above. You can check the estimated speed and confirm availability to a property prior to purchasing on the broadband provider's website. Providers may increase charges. The information is provided and maintained by Decision Technologies Limited. **This is indicative only and based on a 2-person household with multiple devices and simultaneous usage. Broadband performance is affected by multiple factors including number of occupants and devices, simultaneous usage, router range etc. For more information speak to your broadband provider.
Map data ©OpenStreetMap contributors.




