
5 bedroom chalet for sale
Townhouse Road, Old Costessey

- PROPERTY TYPE
Chalet
- BEDROOMS
5
- BATHROOMS
3
- SIZE
Ask agent
- TENUREDescribes how you own a property. There are different types of tenure - freehold, leasehold, and commonhold.Read more about tenure in our glossary page.
Freehold
Key features
- No Onward Chain
- Substantial Five Bedroom Detached Property
- Large Modern Kitchen/Dining Room
- Garden Room
- Approached via a Gated Sweeping Driveway
- En-Suite, Downstairs Bathroom and Upstairs Bathroom
- Double Garage and Driveway
- Sought After Location
- Sizeable Rooms Throughout
- Air Conditioning Units Installed in 2022
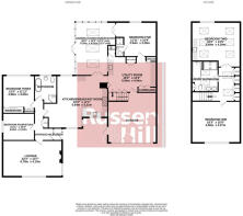
Description
Entrance Porch
Door to:
Entrance Hall
With tiled flooring and storage cupboards.
Sitting Room
Fireplace, radiator and window to the front.
Bedroom Five/Office
Fitted with office furniture, radiator and window to the side.
Bedroom
With fitted wardrobes, radiator and window to the rear.
Kitchen/Family Room
Fitted with a range of base and wall units with granite work tops, plumbing for a dishwasher, Butler sink, integral fridge freezer, space for a Range style oven, radiator x 2, Porcelain tiled flooring, windows to the front, rear and sides and Velux window.
Garden Room
Timber construction with windows to rear, sides and two sky lights, underfloor heating, two ceiling fans, tiled flooring and double doors to side.
Bedroom
Radiator, window to the rear and door to:
En-Suite Shower Room
Fitted with a shower cubicle, low level W.C and wash hand basin. Radiator and tiled splash backs, extractor.
Utility Room
Door to integral garage, space and plumbing for washing machine and tumble dryer, storage cupboards, Base and wall units and inset Butler sink, tiled flooring and radiator, window to side and stairs to the first floor.
Downstairs Bathroom
Fitted with a free standing bath, corner shower, low level W.C and pedestal wash hand basin, radiator, tiled flooring and splash backs, window to the rear.
Landing
Storage cupboards, wooden effect flooring and two Velux windows to the side.
Bedroom
Wooden effect flooring, six Velux windows, window to the rear and air conditioning/heating units.
Bedroom
Wooden effect flooring, three Velux windows, window to the front aspect and air conditioning/heating units.
Upstairs Bathroom
Inset Jacuzzi bath, walk in shower, his and hers sinks and low level W.C, air conditioning/heating unit, storage cupboard, tiled flooring and splash backs, two Velux windows to the side.
Outside
The front of the property is approached via a gated sweeping driveway. The property is set well back from the road and elevated. There is ample parking on the driveway for several cars and there is an integral double garage. There is a lawned area to the front and panelled fencing. The rear garden is mainly laid to lawn and fully enclosed.
- COUNCIL TAXA payment made to your local authority in order to pay for local services like schools, libraries, and refuse collection. The amount you pay depends on the value of the property.Read more about council Tax in our glossary page.
- Band: E
- PARKINGDetails of how and where vehicles can be parked, and any associated costs.Read more about parking in our glossary page.
- Garage
- GARDENA property has access to an outdoor space, which could be private or shared.
- Yes
- ACCESSIBILITYHow a property has been adapted to meet the needs of vulnerable or disabled individuals.Read more about accessibility in our glossary page.
- Ask agent
Energy performance certificate - ask agent
Townhouse Road, Old Costessey
Add an important place to see how long it'd take to get there from our property listings.
__mins driving to your place
Get an instant, personalised result:
- Show sellers you’re serious
- Secure viewings faster with agents
- No impact on your credit score

Your mortgage
Notes
Staying secure when looking for property
Ensure you're up to date with our latest advice on how to avoid fraud or scams when looking for property online.
Visit our security centre to find out moreDisclaimer - Property reference 35788. The information displayed about this property comprises a property advertisement. Rightmove.co.uk makes no warranty as to the accuracy or completeness of the advertisement or any linked or associated information, and Rightmove has no control over the content. This property advertisement does not constitute property particulars. The information is provided and maintained by Russen & Hill Estate Agents, Costessey. Please contact the selling agent or developer directly to obtain any information which may be available under the terms of The Energy Performance of Buildings (Certificates and Inspections) (England and Wales) Regulations 2007 or the Home Report if in relation to a residential property in Scotland.
*This is the average speed from the provider with the fastest broadband package available at this postcode. The average speed displayed is based on the download speeds of at least 50% of customers at peak time (8pm to 10pm). Fibre/cable services at the postcode are subject to availability and may differ between properties within a postcode. Speeds can be affected by a range of technical and environmental factors. The speed at the property may be lower than that listed above. You can check the estimated speed and confirm availability to a property prior to purchasing on the broadband provider's website. Providers may increase charges. The information is provided and maintained by Decision Technologies Limited. **This is indicative only and based on a 2-person household with multiple devices and simultaneous usage. Broadband performance is affected by multiple factors including number of occupants and devices, simultaneous usage, router range etc. For more information speak to your broadband provider.
Map data ©OpenStreetMap contributors.





