Land for sale
217 Kingston Road, Teddington, Middlesex, TW11 9JN
- PROPERTY TYPE
Land
- BEDROOMS
13
- SIZE
Ask agent
Key features
- Development Opportunity
- 6 Flats & Detached 2 Bed House
- Fantastic Location
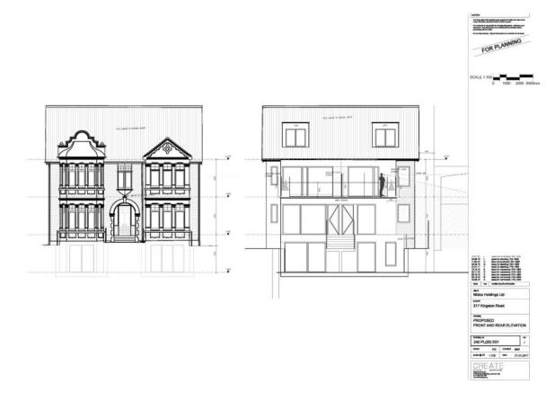
- Site with Full Planning Permission -19/3053/FUL
Description
Unique opportunity to purchase a site with full planning permission for erection of a detached building comprising 7 self contained flats and a single family dwelling with associated access, parking and landscaping.
The block of flats comprises: 4 x two bedrooms and 3 x one bedrooms. With the detached dwelling being a 2 bedroom property with large study.
This is a very rare and unique opportunity to purchase a bare site with full planning permission in Teddington. The site is circa 0.25acres and is conveniently located with local buses and shops on your doorstep. Teddington station is just 0.5 miles away and easy access to the river and Kingston adds to the appeal. This property is also close to Bushy Park.
Please see the legal pack for further information.
GROUP VIEWING - MONDAY 26TH JANUARY AT 11AM - PLEASE CALL THE OFFICE TO ATTEND
Tenure
Freehold
Terms
Legal Pack
To review the legal documents and to view the auction information click on the buttons at the bottom of this advert or visit our website tcpa.co.uk
UNCONDITIONAL LOT Exchange and administration fee information: (plus fees)
Buyers Administration Fee Applies upon the fall of the hammer, the Purchaser shall pay a 10% deposit (subject to minimum of £5,000, whichever is the greater) and a Buyers Administration Fee of £1200 + VAT and contracts are exchanged. The purchaser is legally bound to buy and the vendor is legally bound to sell the Property/Lot. The auction conditions require a full legal completion 28 days following the auction (unless otherwise stated in the legal pack or on the sales details).
In addition to the purchase price, buyers may be required to pay additional fees, costs and charges - please refer to the legal pack.
Registration Process
To register to bid on the property, find the property on the Town & Country Property Auctions website. Click onto the property, follow the link to “Log in/ register to bid”. You will then be directed to create an auction passport account with our online-bidding platform provider Essential Information Group.
217 Kingston Road, Teddington, Middlesex, TW11 9JN
NEAREST STATIONS
Distances are straight line measurements from the centre of the postcode- Teddington Station0.6 miles
- Hampton Wick Station0.6 miles
- Kingston Station0.9 miles

Notes
Disclaimer - Property reference 322418. The information displayed about this property comprises a property advertisement. Rightmove.co.uk makes no warranty as to the accuracy or completeness of the advertisement or any linked or associated information, and Rightmove has no control over the content. This property advertisement does not constitute property particulars. The information is provided and maintained by Town and Country Property Auctions, London. Please contact the selling agent or developer directly to obtain any information which may be available under the terms of The Energy Performance of Buildings (Certificates and Inspections) (England and Wales) Regulations 2007 or the Home Report if in relation to a residential property in Scotland.
Auction Fees: The purchase of this property may include associated fees not listed here, as it is to be sold via auction. To find out more about the fees associated with this property please call Town and Country Property Auctions, London on 020 3337 0600.
*Guide Price: An indication of a seller's minimum expectation at auction and given as a Guide Price or a range of Guide Prices. This is not necessarily the figure a property will sell for and is subject to change prior to the auction.
Reserve Price: Each auction property will be subject to a Reserve Price below which the property cannot be sold at auction. Normally the Reserve Price will be set within the range of Guide Prices or no more than 10% above a single Guide Price.
Map data ©OpenStreetMap contributors.




