3 bedroom semi-detached house for sale
Fairholmes Way, Thornton-Cleveleys

- PROPERTY TYPE
Semi-Detached
- BEDROOMS
3
- BATHROOMS
1
- SIZE
Ask agent
- TENUREDescribes how you own a property. There are different types of tenure - freehold, leasehold, and commonhold.Read more about tenure in our glossary page.
Freehold
Key features
- *Well presented Semi Detached Family Home
- *Open Plan Lounge/Dining Room
- *Three Spacious Bedrooms
- *Modern Fitted Bathroom
- *Off Road Parking
- *Detached Single Garage
- *Front & Rear Garden
Description
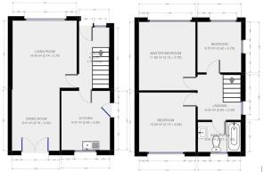
Hall - 1.76 x 3.40 (5'9" x 11'1") - UPVC front door with side UPVC window providing a light and airy hallway. Under stairs storage, solid wooden flooring, radiator and ceiling lights, access to all downstairs rooms.
Living Room - 3.74 x 3.75 (12'3" x 12'3") - UPVC windows to front with solid wood flooring though to dining room, feature gas flame fire housed within the chimney breast, spot lights and wall lights, radiator
Dining Room - 2.79 x 3.42 (9'1" x 11'2") - solid wooden flooring, UPVC French doors to rear, radiator, spotlights
Kitchen - 2.84 x 3.30 (9'3" x 10'9") - UPVC double glazed window to rear. door to side providing access to rear garden. Stainless steel sink unit. Four ring gas hob with extractor fan above. Integral oven. Plumbed for washing machine . Space for fridge freezer. Tiled flooring and splash backs, ceiling lights.
Master Bedroom - 3.13 x 3.78 (10'3" x 12'4") - UPVC double glazed window to front. Carpet, ceiling light and radiator.
Bedroom 2 - 3.13 x 3.28 (10'3" x 10'9") - UVPC double glazed window to rear. laminate flooring, ceiling lights and radiator.
Bedroom 3 - 2.42 x 2.79 (7'11" x 9'1") - UVPC double glazed window to front and side. laminate flooring, ceiling lights and radiator.
Landing - 2.50 x 2.39 (8'2" x 7'10") - Carpet with UPVC window to the side of the property, Ceiling light, Wooden balustrade. Access to all first floor rooms.
Bathroom - 2.37 x 1.65 (7'9" x 5'4") - UVPC opaque double glazed window to rear. tiled floor, ceiling lights.
Front Exterior - Lawned front garden and tarmac driveway.
Access to garage via gate to the side of the property.
Variety of plants and shrubs.
Rear Exterior - Lawned and paved rear garden area, access to the garage and a variety of plants and shrubs.
Further Information - Tenure - Freehold
Council Tax Band - B - Wyre
EPC Rating - D
Brochures
Fairholmes Way, Thornton-Cleveleys- COUNCIL TAXA payment made to your local authority in order to pay for local services like schools, libraries, and refuse collection. The amount you pay depends on the value of the property.Read more about council Tax in our glossary page.
- Band: B
- PARKINGDetails of how and where vehicles can be parked, and any associated costs.Read more about parking in our glossary page.
- Yes
- GARDENA property has access to an outdoor space, which could be private or shared.
- Yes
- ACCESSIBILITYHow a property has been adapted to meet the needs of vulnerable or disabled individuals.Read more about accessibility in our glossary page.
- Ask agent
Energy performance certificate - ask agent
Fairholmes Way, Thornton-Cleveleys
Add an important place to see how long it'd take to get there from our property listings.
__mins driving to your place
Get an instant, personalised result:
- Show sellers you’re serious
- Secure viewings faster with agents
- No impact on your credit score
Your mortgage
Notes
Staying secure when looking for property
Ensure you're up to date with our latest advice on how to avoid fraud or scams when looking for property online.
Visit our security centre to find out moreDisclaimer - Property reference 34353071. The information displayed about this property comprises a property advertisement. Rightmove.co.uk makes no warranty as to the accuracy or completeness of the advertisement or any linked or associated information, and Rightmove has no control over the content. This property advertisement does not constitute property particulars. The information is provided and maintained by iMove Sales and Lettings, Poulton-Le-Fylde. Please contact the selling agent or developer directly to obtain any information which may be available under the terms of The Energy Performance of Buildings (Certificates and Inspections) (England and Wales) Regulations 2007 or the Home Report if in relation to a residential property in Scotland.
*This is the average speed from the provider with the fastest broadband package available at this postcode. The average speed displayed is based on the download speeds of at least 50% of customers at peak time (8pm to 10pm). Fibre/cable services at the postcode are subject to availability and may differ between properties within a postcode. Speeds can be affected by a range of technical and environmental factors. The speed at the property may be lower than that listed above. You can check the estimated speed and confirm availability to a property prior to purchasing on the broadband provider's website. Providers may increase charges. The information is provided and maintained by Decision Technologies Limited. **This is indicative only and based on a 2-person household with multiple devices and simultaneous usage. Broadband performance is affected by multiple factors including number of occupants and devices, simultaneous usage, router range etc. For more information speak to your broadband provider.
Map data ©OpenStreetMap contributors.




