
Gerard Walk, Westhampnett, PO18

- PROPERTY TYPE
Semi-Detached
- BEDROOMS
3
- BATHROOMS
2
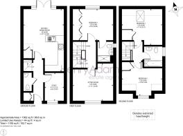
- SIZE
1,061 sq ft
99 sq m
- TENUREDescribes how you own a property. There are different types of tenure - freehold, leasehold, and commonhold.Read more about tenure in our glossary page.
Freehold
Key features
- Vacant possession
- Accommodation arranged over three floors
- Three/four bedrooms
- Two reception rooms
- En-suite shower room and family bathroom
- Garden
- Allocated parking
Description
A modern house offering versatile accommodation.
This modern semi-detached home, offered with vacant possession, provides versatile accommodation arranged over three floors.
The ground floor features a useful study/bedroom, a cloakroom and an impressive open-plan kitchen/dining room with doors opening to the garden. On the first floor there is a sitting room and principal bedroom with shower room/WC, while the second floor offers two further bedrooms and a well-appointed family bathroom/WC.
Outside, there is a private garden along with allocated parking which can be accessed via the rear gate in the garden, An ideal home for families or professionals, with viewing highly recommended.
Estate Charge: TBC
Chichester District Council - 25/26 Tax Band E £2,889.39 EPC- B
Directions - Proceed east out of Chichester along St Pancras, at the final roundabout take the first exit off into Madgwick Lane (signposted to Goodwood). Take the first turning on the right into Shelby Drive and then right again into Fairman Road. Take the first turning on the right into Hawthorn Way. Parking for the property is towards the end on the left. There is pedestrian access either through the rear gate (What3words - create.glee.hiding) or proceed on foot to the end of Hawthorn Way and round to the left where No 7 is a short distance along on the left (What3words - fallen.visits.toxic).
EPC Rating: B
Parking - Allocated parking
Brochures
Property Brochure- COUNCIL TAXA payment made to your local authority in order to pay for local services like schools, libraries, and refuse collection. The amount you pay depends on the value of the property.Read more about council Tax in our glossary page.
- Band: E
- PARKINGDetails of how and where vehicles can be parked, and any associated costs.Read more about parking in our glossary page.
- Off street
- GARDENA property has access to an outdoor space, which could be private or shared.
- Private garden
- ACCESSIBILITYHow a property has been adapted to meet the needs of vulnerable or disabled individuals.Read more about accessibility in our glossary page.
- Ask agent
Energy performance certificate - ask agent
Gerard Walk, Westhampnett, PO18
Add an important place to see how long it'd take to get there from our property listings.
__mins driving to your place
Get an instant, personalised result:
- Show sellers you’re serious
- Secure viewings faster with agents
- No impact on your credit score
Affordability
Notes
Staying secure when looking for property
Ensure you're up to date with our latest advice on how to avoid fraud or scams when looking for property online.
Visit our security centre to find out moreDisclaimer - Property reference a2a76970-4141-43a5-b6a4-ddd5ae7a1165. The information displayed about this property comprises a property advertisement. Rightmove.co.uk makes no warranty as to the accuracy or completeness of the advertisement or any linked or associated information, and Rightmove has no control over the content. This property advertisement does not constitute property particulars. The information is provided and maintained by Henry Adams, Chichester. Please contact the selling agent or developer directly to obtain any information which may be available under the terms of The Energy Performance of Buildings (Certificates and Inspections) (England and Wales) Regulations 2007 or the Home Report if in relation to a residential property in Scotland.
*This is the average speed from the provider with the fastest broadband package available at this postcode. The average speed displayed is based on the download speeds of at least 50% of customers at peak time (8pm to 10pm). Fibre/cable services at the postcode are subject to availability and may differ between properties within a postcode. Speeds can be affected by a range of technical and environmental factors. The speed at the property may be lower than that listed above. You can check the estimated speed and confirm availability to a property prior to purchasing on the broadband provider's website. Providers may increase charges. The information is provided and maintained by Decision Technologies Limited. **This is indicative only and based on a 2-person household with multiple devices and simultaneous usage. Broadband performance is affected by multiple factors including number of occupants and devices, simultaneous usage, router range etc. For more information speak to your broadband provider.
Map data ©OpenStreetMap contributors.








