The Larches,Faversham,ME13 7SQ

- PROPERTY TYPE
Detached
- BEDROOMS
4
- BATHROOMS
3
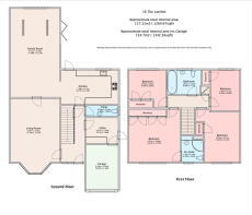
- SIZE
Ask agent
- TENUREDescribes how you own a property. There are different types of tenure - freehold, leasehold, and commonhold.Read more about tenure in our glossary page.
Freehold
Key features
- 4 Bedroom Detached Home
- Rear Extension with Log Burner
- Modern Kitchen
- Driveway + Garage/Utility
- Bay Fronted Living Room
- Walking Distance to Local Schools
- Great Transport Links
- Quote: ES0856
Description
Welcome to The Larches, an executive 4 bedroom detached home in a popular location!
This beautiful home has been extended to enhance the quality of the family space making this an ideal step up on the property ladder. The property offers 2 generous living spaces, the cozier, bay fronted living/dining room to the front as well as the family room with log burner and bi-folding doors to the rear that has been created through the extension. The Larches offers a modern kitchen with the benefit of an integrated wine fridge and adjoining utility room that was created through a 50/50 garage conversion. Other convenient features include the ground floor wc and multiple aspects and access points onto the rear garden.
Moving upstairs and you’ll find 4 bedrooms, 2 of these are large doubles with the other 2 generous singles. There is a shower en-suite for the master bedroom as well as a fully tiled family bathroom servicing the remaining bedrooms.
Externally the property offers a large driveway to the front as well as remaining 50% depth garage that is ideal for storage, the garage has an electric main door and internal door back into the utility room. The rear garden is accessible via the side gate, bi-folding doors in the family room or kitchen, it is relatively low maintenance with a generous patio area.
The Larches is well located within walking distance to local schools as well as local amenities and transport links including the A2/M2, M20 and Faversham mainline train station.
A fantastic opportunity for a family to upsize into a desirable neighbourhood, please quote ES0856 when calling to arrange your viewing.
We are required by law to conduct Anti-Money Laundering checks on all parties involved in the sale or purchase of a property. We take the responsibility of this seriously in line with HMRC guidance in ensuring the accuracy and continuous monitoring of these checks. Our partner, Movebutler, will carry out the initial checks on our behalf. They will contact you once your offer has been accepted, to conclude where possible a biometric check with you electronically.
As an applicant, you will be charged a non-refundable fee of £30 (inclusive of VAT) per buyer for these checks. The fee covers data collection, manual checking, and monitoring. You will need to pay this amount directly to Movebutler and complete all Anti-Money Laundering checks before your offer can be formally accepted.
- COUNCIL TAXA payment made to your local authority in order to pay for local services like schools, libraries, and refuse collection. The amount you pay depends on the value of the property.Read more about council Tax in our glossary page.
- Band: D
- PARKINGDetails of how and where vehicles can be parked, and any associated costs.Read more about parking in our glossary page.
- Driveway
- GARDENA property has access to an outdoor space, which could be private or shared.
- Yes
- ACCESSIBILITYHow a property has been adapted to meet the needs of vulnerable or disabled individuals.Read more about accessibility in our glossary page.
- Ask agent
Energy performance certificate - ask agent
The Larches,Faversham,ME13 7SQ
Add an important place to see how long it'd take to get there from our property listings.
__mins driving to your place
Get an instant, personalised result:
- Show sellers you’re serious
- Secure viewings faster with agents
- No impact on your credit score
Your mortgage
Notes
Staying secure when looking for property
Ensure you're up to date with our latest advice on how to avoid fraud or scams when looking for property online.
Visit our security centre to find out moreDisclaimer - Property reference S1519976. The information displayed about this property comprises a property advertisement. Rightmove.co.uk makes no warranty as to the accuracy or completeness of the advertisement or any linked or associated information, and Rightmove has no control over the content. This property advertisement does not constitute property particulars. The information is provided and maintained by eXp UK, South East. Please contact the selling agent or developer directly to obtain any information which may be available under the terms of The Energy Performance of Buildings (Certificates and Inspections) (England and Wales) Regulations 2007 or the Home Report if in relation to a residential property in Scotland.
*This is the average speed from the provider with the fastest broadband package available at this postcode. The average speed displayed is based on the download speeds of at least 50% of customers at peak time (8pm to 10pm). Fibre/cable services at the postcode are subject to availability and may differ between properties within a postcode. Speeds can be affected by a range of technical and environmental factors. The speed at the property may be lower than that listed above. You can check the estimated speed and confirm availability to a property prior to purchasing on the broadband provider's website. Providers may increase charges. The information is provided and maintained by Decision Technologies Limited. **This is indicative only and based on a 2-person household with multiple devices and simultaneous usage. Broadband performance is affected by multiple factors including number of occupants and devices, simultaneous usage, router range etc. For more information speak to your broadband provider.
Map data ©OpenStreetMap contributors.




