
Hallows Close, St. Michaels, Preston, Lancashire

- PROPERTY TYPE
Bungalow
- BEDROOMS
4
- BATHROOMS
2
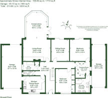
- SIZE
1,710 sq ft
159 sq m
- TENUREDescribes how you own a property. There are different types of tenure - freehold, leasehold, and commonhold.Read more about tenure in our glossary page.
Freehold
Key features
- Spacious four bedroom dormer bungalow
- Wonderful tucked away location
- Located in the delightful village of St Michaels on Wyre
- Two bedrooms and bathroom to the ground floor
- Privately enclosed mature rear garden
- Off street parking and two garages
Description
The fresh and contemporary kitchen includes a range of integrated appliances to include dishwasher, electric fan oven and kettle tap. A utility room is found off and includes a point for a washing machine and dryer along with a built-in cupboard.
The principal bedroom suite is found on the ground floor and includes a fantastic bedroom space with sliding doors out the garden and patio. There is a dressing room and shower ensuite. Furthermore a second bedroom is on the ground floor.
The glass balustrade staircase leads you to the first floor where you will find two well-proportioned bedrooms, one has fitted wardrobes and a window to the front of the property, whilst the fourth bedroom leads out to a balcony which overlooks the gardens at the rear and beyond.
There is access to a walk-in store and boiler room. A further shower room is found on the first floor which includes a walk-in shower, twin wash handbasins, bidet and WC.
Garaging to either side of the property, which has electronically operated roller shutter doors to both the front and rear. The gardens are beautifully kept, at the front there is a bedded area and block paved driveway and to the rear there are superb mature landscaped gardens which include large areas of lawn surrounded by well stocked and bedded areas. There are seating areas and a raised terrace which is ideal for outdoor entertaining.
Location: Tucked away in a quiet position within the village, this property is well located for commuting across Wyre and Fylde with good access onto the main road network and further afield via junction 32 & 33 of the M6. This makes the property an ideal location for those looking to commute or those who simply enjoy the village life. An historic village itself includes a 16th century church, an excellent primary school, village hall, public house, tennis court and a crown green bowling club.
Brochures
Particulars- COUNCIL TAXA payment made to your local authority in order to pay for local services like schools, libraries, and refuse collection. The amount you pay depends on the value of the property.Read more about council Tax in our glossary page.
- Band: F
- PARKINGDetails of how and where vehicles can be parked, and any associated costs.Read more about parking in our glossary page.
- Yes
- GARDENA property has access to an outdoor space, which could be private or shared.
- Yes
- ACCESSIBILITYHow a property has been adapted to meet the needs of vulnerable or disabled individuals.Read more about accessibility in our glossary page.
- Ask agent
Hallows Close, St. Michaels, Preston, Lancashire
Add an important place to see how long it'd take to get there from our property listings.
__mins driving to your place
Get an instant, personalised result:
- Show sellers you’re serious
- Secure viewings faster with agents
- No impact on your credit score



Your mortgage
Notes
Staying secure when looking for property
Ensure you're up to date with our latest advice on how to avoid fraud or scams when looking for property online.
Visit our security centre to find out moreDisclaimer - Property reference GAR230370. The information displayed about this property comprises a property advertisement. Rightmove.co.uk makes no warranty as to the accuracy or completeness of the advertisement or any linked or associated information, and Rightmove has no control over the content. This property advertisement does not constitute property particulars. The information is provided and maintained by Armitstead Barnett, Covering Lancashire and Cumbria. Please contact the selling agent or developer directly to obtain any information which may be available under the terms of The Energy Performance of Buildings (Certificates and Inspections) (England and Wales) Regulations 2007 or the Home Report if in relation to a residential property in Scotland.
*This is the average speed from the provider with the fastest broadband package available at this postcode. The average speed displayed is based on the download speeds of at least 50% of customers at peak time (8pm to 10pm). Fibre/cable services at the postcode are subject to availability and may differ between properties within a postcode. Speeds can be affected by a range of technical and environmental factors. The speed at the property may be lower than that listed above. You can check the estimated speed and confirm availability to a property prior to purchasing on the broadband provider's website. Providers may increase charges. The information is provided and maintained by Decision Technologies Limited. **This is indicative only and based on a 2-person household with multiple devices and simultaneous usage. Broadband performance is affected by multiple factors including number of occupants and devices, simultaneous usage, router range etc. For more information speak to your broadband provider.
Map data ©OpenStreetMap contributors.






