
Victoria Street, Glossop

- PROPERTY TYPE
Terraced
- BEDROOMS
2
- BATHROOMS
2
- SIZE
Ask agent
Key features
- NO VENDOR CHAIN
- Three Storey Mid Terrace
- Close Proximity to Glossop Town Centre
- Two Bedrooms
- Two En-suite Bathrooms
- Two Reception Rooms
- Multi Fuel Burning Stove
- Large Kitchen/Diner
- Private Rear Yard
- Excellent Transport Links
Description
Situated close to Glossop's bustling high street and mainline railway station-perfect for commuters-this characterful multi-level home offers flexible living throughout. The ground floor features a spacious lounge with multi-fuel stove and exposed beams, complemented by a versatile second reception room that works brilliantly as a home office, snug, or even a third bedroom.
The standout lower ground-floor kitchen/diner provides an impressive sociable space with extensive units, quality appliances, and a stable door to the rear yard. Upstairs, two bedrooms each enjoy their own en-suite, with the main bedroom offering a particularly spacious bathroom.
With modern comforts, adaptable rooms, countryside views, and excellent access to Glossop's shops, cafés, and train links, this is an ideal home for families, professionals, or anyone seeking flexible accommodation in a sought-after location.
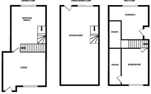
LOUNGE 16' 4" x 12' 8" (4.98m x 3.86m) A spacious lounge featuring a multi-fuel burning stove set within a feature fireplace, wall-mounted radiator, exposed feature ceiling beams, and a ceiling light point. uPVC double-glazed window to the front elevation.
RECEPTION 2 12' 9" x 9' 3" (3.89m x 2.82m) A versatile second reception room with a uPVC double-glazed window to the rear elevation, wall-mounted radiator, ceiling light point, and stairs leading down to the lower ground-floor kitchen.
LOWER GROUND FLOOR Stairs from the first floor to the lower ground floor
KITCHEN/DINER 26' 4" x 11' 5" (8.03m x 3.48m) A fabulous sized and sociable kitchen-dining space fitted with a range of high and low units, contrasting work surfaces, and tiled splash backs. Includes boiler housing, plumbing for an automatic washing machine and dishwasher, stainless steel sink and drainer with mixer tap, and a double oven with six-ring gas hob and over hob extractor fan. uPVC double-glazed window to the rear elevation and an external stable door leading to the rear yard. Dining area with wall-mounted radiator, ceiling spotlights, and cloak/store area.
FIRST FLOOR LANDING Stairs rising from the ground floor with ceiling light point and internal doors to the first-floor accommodation.
MAIN BEDROOM 12' 7" x 11' 7" (3.84m x 3.53m) A generous double bedroom with a uPVC double-glazed window to the front elevation, wall-mounted radiator, ceiling light point, loft access, and built-in double wardrobe with power point. Internal door to the en-suite bathroom.
EN-SUITE BATHROOM 12' 1" x 4' 3" (3.68m x 1.3m) A spacious en-suite fitted with a three-piece suite comprising low-level WC, pedestal sink, and bath with over-bath shower. Wall-mounted chrome heated towel rail, ceiling spotlights, extractor fan, part-tiled walls, and a uPVC double-glazed window to the front elevation.
BEDROOM TWO 10' 2" x 9' 3" (3.1m x 2.82m) uPVC double-glazed window to the rear elevation offering countryside views. Wall-mounted radiator, ceiling light point, built-in closet, and internal door to the en-suite shower room.
EN-SUITE SHOWER ROOM 7' 5" x 3' 6" (2.26m x 1.07m) - narrowing to 4.7 Fitted with a low-level WC, pedestal sink unit, and shower cubicle. Ceiling spotlights, wall-mounted chrome heated towel rail, and loft access point.
EXTERNAL REAR The property benefits from a private and fully enclosed rear yard.
DISCLAIMER The vendor has advised the following:
Property Tenure - Leasehold
Annual Ground Rent - £1.03
Leasehold Term - 873 years remaining from 999 year lease
EPC Rate - C
Council Tax Band Rating - A
Council - High Peak Borough Council
Brochures
6 Page Portrait B...- COUNCIL TAXA payment made to your local authority in order to pay for local services like schools, libraries, and refuse collection. The amount you pay depends on the value of the property.Read more about council Tax in our glossary page.
- Band: A
- PARKINGDetails of how and where vehicles can be parked, and any associated costs.Read more about parking in our glossary page.
- Ask agent
- GARDENA property has access to an outdoor space, which could be private or shared.
- Yes
- ACCESSIBILITYHow a property has been adapted to meet the needs of vulnerable or disabled individuals.Read more about accessibility in our glossary page.
- Ask agent
Victoria Street, Glossop
Add an important place to see how long it'd take to get there from our property listings.
__mins driving to your place
Get an instant, personalised result:
- Show sellers you’re serious
- Secure viewings faster with agents
- No impact on your credit score
Your mortgage
Notes
Staying secure when looking for property
Ensure you're up to date with our latest advice on how to avoid fraud or scams when looking for property online.
Visit our security centre to find out moreDisclaimer - Property reference 100504004201. The information displayed about this property comprises a property advertisement. Rightmove.co.uk makes no warranty as to the accuracy or completeness of the advertisement or any linked or associated information, and Rightmove has no control over the content. This property advertisement does not constitute property particulars. The information is provided and maintained by Stepping Stones Asset Management Limited, Glossop. Please contact the selling agent or developer directly to obtain any information which may be available under the terms of The Energy Performance of Buildings (Certificates and Inspections) (England and Wales) Regulations 2007 or the Home Report if in relation to a residential property in Scotland.
*This is the average speed from the provider with the fastest broadband package available at this postcode. The average speed displayed is based on the download speeds of at least 50% of customers at peak time (8pm to 10pm). Fibre/cable services at the postcode are subject to availability and may differ between properties within a postcode. Speeds can be affected by a range of technical and environmental factors. The speed at the property may be lower than that listed above. You can check the estimated speed and confirm availability to a property prior to purchasing on the broadband provider's website. Providers may increase charges. The information is provided and maintained by Decision Technologies Limited. **This is indicative only and based on a 2-person household with multiple devices and simultaneous usage. Broadband performance is affected by multiple factors including number of occupants and devices, simultaneous usage, router range etc. For more information speak to your broadband provider.
Map data ©OpenStreetMap contributors.





