
Land for sale
The Woodlands, Whitchurch, BS14
- PROPERTY TYPE
Land
- SIZE
Ask agent
Key features
- 950.76m2 Plot
- Planning Permission
- 5 Bed Detached House
- Orchard Views
- Quiet Location
- Development Opportunity
Description
A fantastic opportunity to acquire a substantial plot of approximately 950.76m², positioned between two neighbouring plots of equal size. Quietly tucked away from busy roads, this attractive setting offers a wonderful sense of privacy while still being within easy reach of local amenities and nearby towns.
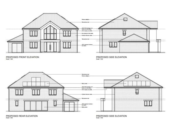
Full planning permission has already been granted for a large five-bedroom detached family home featuring a triple driveway, garage, and a spacious rear garden, allowing a buyer to move straight ahead with an impressive build. The proposed layout offers generous living areas and ample outdoor space, ideal for a growing family or those seeking a bespoke forever home.
Full plans can be found under planning application reference: 25/03390/VAR .
To the rear, the site enjoys a beautiful outlook across an orchard and open fields where horses and donkeys graze, providing a lovely rural backdrop and a genuine sense of countryside living. The peaceful position and natural surroundings create a rare lifestyle opportunity that feels both secluded and scenic.
An exceptional chance to create a substantial property in a quiet, established location with planning already in place, ready for someone’s vision to become reality.
Located in a quiet, rural area on the outskirts of Whitchurch, this plot is situated approximately 10 miles from Bath and 4 miles from Bristol City Centre. There is easy access to both cities with Bristol and Bath road only being a short distance away. Whitchurch has a number of local amenities such as shops, pubs, a supermarket, Sports Centre and Primary Schools, perfect for a growing family.
The Woodlands, Whitchurch, BS14
NEAREST STATIONS
Distances are straight line measurements from the centre of the postcode- Keynsham Station2.5 miles
- Bedminster Station3.2 miles
- Parson Street Station3.3 miles
Notes
Disclaimer - Property reference SOU250480. The information displayed about this property comprises a property advertisement. Rightmove.co.uk makes no warranty as to the accuracy or completeness of the advertisement or any linked or associated information, and Rightmove has no control over the content. This property advertisement does not constitute property particulars. The information is provided and maintained by CJ Hole, Brislington. Please contact the selling agent or developer directly to obtain any information which may be available under the terms of The Energy Performance of Buildings (Certificates and Inspections) (England and Wales) Regulations 2007 or the Home Report if in relation to a residential property in Scotland.
Map data ©OpenStreetMap contributors.





