
Compass Point, Northampton Road, Market Harborough, Leicestershire, LE16 9HW

- PROPERTY TYPE
Detached
- BEDROOMS
4
- SIZE
Ask developer
- TENUREDescribes how you own a property. There are different types of tenure - freehold, leasehold, and commonhold.Read more about tenure in our glossary page.
Freehold
Key features
- Generously-proportioned detached family home
- Open plan kitchen/family room with French doors to the garden
- Separate dining room - perfect for entertaining
- Bright front-aspect living room
- Separate utility room for laundry and extra storage
- Bedroom 1 with en suite
- Family bathroom with modern fixtures and fittings
Description
This is a contemporary home with a traditional layout. Separate living and dining rooms complement the open-plan kitchen/breakfast room and make a great mix and match for family life, entertaining and home-working – if creating a home office is your plan. Alternatively, you can take a flexible approach to the four bedrooms and two bathrooms upstairs.
Additional Information
- Tenure: Freehold
- Annual service charge amount (£): 189
- Council tax band: Not made available by local authority until post-occupation
Parking - Single Garage
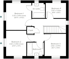
Room Dimensions
- Dining room - 3.01 x 2.97 metre
- Living room - 3.36 x 3.96 metre
- Kitchen/Breakfast/Family room - 5.99 x 2.96 metre
- Bedroom 1 - 3.33 x 3.61 metre
- Bedroom 2 - 2.66 x 3.39 metre
- Bedroom 3 - 2.82 x 2.97 metre
- Bedroom 4/Study - 2.4 x 2.03 metre
- COUNCIL TAXA payment made to your local authority in order to pay for local services like schools, libraries, and refuse collection. The amount you pay depends on the value of the property.Read more about council Tax in our glossary page.
- Ask developer
- PARKINGDetails of how and where vehicles can be parked, and any associated costs.Read more about parking in our glossary page.
- Yes
- GARDENA property has access to an outdoor space, which could be private or shared.
- Yes
- ACCESSIBILITYHow a property has been adapted to meet the needs of vulnerable or disabled individuals.Read more about accessibility in our glossary page.
- Ask developer
Energy performance certificate - ask developer
- Choice of 2, 3, 4 and 5 bedroom homes
- Great local amenities
- Schools within walking distance
- Local green spaces to explore
Compass Point, Northampton Road, Market Harborough, Leicestershire, LE16 9HW
Add an important place to see how long it'd take to get there from our property listings.
__mins driving to your place
Get an instant, personalised result:
- Show sellers you’re serious
- Secure viewings faster with agents
- No impact on your credit score
About the development
About Persimmon Homes
Welcome to The Hawthorns – modern new houses for sale, Market Harborough
Discover The Hawthorns, a new community of lovely two, three, four and five-bedroom homes on the edge of Leicestershire in Market Harborough, a lively town that was included in the 2023 Sunday Times Best Places to Live list.
Stylish new build homes in Leicestershire
The Hawthorns is the perfect place to put down roots. Whether you spend your evenings growing veggies at the allotments or walking the dog around the brilliant open space next to the watercourse as the kids play at the park, there’s plenty to enjoy right on your doorstep.
New build homes with excellent transport links to Leicester and London
Getting around couldn’t be easier. Market Harborough station is just minutes away, offering regular direct trains to London St Pancras, perfect for commuters or city days out. Road links are equally convenient, with the A6 and A14 nearby for access to Leicester, Northampton, Coventry and beyond.
Everything you need on your doorstep
From supermarkets and high‑street favourites to independent stores, the well‑established market town has everything: schools, health services and sports facilities, all close to home for everyday convenience.
Explore the outdoors in Leicestershire
Surrounded by the beautiful countryside of the Welland Valley, The Hawthorns offer easy access to scenic countryside walks, canal-side paths and nature trails. Whether you’re exploring peaceful meadows, cycling through lanes or enjoying family picnics in nearby parks, here, fresh air and open skies are part of everyday life.
Ready to make your move?
To explore our new houses for sale in Market Harborough and start your new build journey, speak to one of our friendly sales advisors today.
Click here to read a testimonial from Owen and Joanna, who bought a home at The Hawthorns.
This development offers the following schemes:
- New Build Boost
- Bank of Mum and Dad
- Part Exchange your home
- Home Change
- Early Bird Scheme
- Deposit Boost: 5% Deposit Contribution Scheme
- Armed Forces, Key Workers & NHS Discount Scheme
- Own New Rate Reducer Scheme
Schemes are available on selected plots only, subject to status, terms and conditions apply. Contact the development for latest information.
Affordability
Notes
Staying secure when looking for property
Ensure you're up to date with our latest advice on how to avoid fraud or scams when looking for property online.
Visit our security centre to find out moreDisclaimer - Property reference 4_147. The information displayed about this property comprises a property advertisement. Rightmove.co.uk makes no warranty as to the accuracy or completeness of the advertisement or any linked or associated information, and Rightmove has no control over the content. This property advertisement does not constitute property particulars. The information is provided and maintained by Persimmon Homes. Please contact the selling agent or developer directly to obtain any information which may be available under the terms of The Energy Performance of Buildings (Certificates and Inspections) (England and Wales) Regulations 2007 or the Home Report if in relation to a residential property in Scotland.
*This is the average speed from the provider with the fastest broadband package available at this postcode. The average speed displayed is based on the download speeds of at least 50% of customers at peak time (8pm to 10pm). Fibre/cable services at the postcode are subject to availability and may differ between properties within a postcode. Speeds can be affected by a range of technical and environmental factors. The speed at the property may be lower than that listed above. You can check the estimated speed and confirm availability to a property prior to purchasing on the broadband provider's website. Providers may increase charges. The information is provided and maintained by Decision Technologies Limited. **This is indicative only and based on a 2-person household with multiple devices and simultaneous usage. Broadband performance is affected by multiple factors including number of occupants and devices, simultaneous usage, router range etc. For more information speak to your broadband provider.
Map data ©OpenStreetMap contributors.






