4 bedroom bungalow for sale
57 Summerland Park, Upper Killay, Swansea, West Glamorgan, SA2 7HY

- PROPERTY TYPE
Bungalow
- BEDROOMS
4
- BATHROOMS
1
- SIZE
Ask agent
- TENUREDescribes how you own a property. There are different types of tenure - freehold, leasehold, and commonhold.Read more about tenure in our glossary page.
Freehold
Key features
- Online registration is now open.
- In in a sought-after location.
- The property has to be seen to be appreciated.
Description
Guide Price: £290,000
For sale online from 19/12/2025 12:00.
We have available by Online Sale, a four-bedroom detached bungalow in a sought-after location.
This beautifully presented property comes with lounge, kitchen diner, three bedrooms, one with ensuite, family bathroom, and a conservatory on the ground floor.
Upstairs there is a dormer loft conversion with the forth bedroom and substantial loft storage.
Externally there is a private drive, garage and lawned garden to the front.
To the rear and side are well tended gardens with a variety of plants and shrubs. There is a summerhouse, patio and garden sheds.
The property has to be seen to be appreciated.
Tenure: Freehold.
Council Tax: E
EPC: E
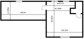
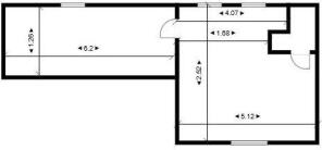
GROUND FLOOR
Entrance: Porch 2.49m x 2.25m Windows to the front and side.
Reception room:5.65m x 3.69m Windows to front, stairs to dormer and loft
Kitchen Diner: 5.76m x 3.09m windows to rear and access to conservatory
Conservatory : 3.68m x 2.89m access to rear
Bathroom: 3.07m x 1.45m window to rear
Bedroom 1: 2.74m x 2.57m window to front
Bedroom 2: 3.7 x 3.24m (max) 3.7m x 3.19m (min) window to front
Bedroom 3: 4.19m x 3.60m (max) 3.08m x 3.19m (min) window to rear and ensuite
Wardrobe: 3.22m x 0.51m (approx.)
FIRST FLOOR
Bedroom 4: 5.12m x 5.04m (max) velux windows to front and dormer to rear, doorway to loft space
Loft Space: 6.20m x 2.5m (measurement to purlins) velux window to front
EXTERNALLY
Front Lawned garden enclosed with bushes and private drive, paths and gates either side lead to rear garden.
Rear - Enclosed rear garden, with established shrubs and bushes, summer house, sheds and patio.
****ONLINE SALE****
Interested buyers register online and submit their offer through the online platform.
All legal documents and information relevant to the property will be available to download online, at is the buyers' responsibility to ensure they have researched all aspects of the property and taken independent legal advice.
Purchase funds must be in place when making an offer.
Completion timescales are negotiated and agreed upon before an offer is formally accepted.
When an offer is accepted, the buyer signs the sales contract and pays the non-refundable deposit and fees.
On receipt of contract and funds, the property will be removed from the market and no further offers will be taken.
Contracts are exchanged securing the transaction for all parties.
FEES
Deposit - 10% of purchase price please note this goes towards the final purchase price.
Buyers Fee - £3,000 + VAT
Brochures
Legal DocumentsOnline Bidding- COUNCIL TAXA payment made to your local authority in order to pay for local services like schools, libraries, and refuse collection. The amount you pay depends on the value of the property.Read more about council Tax in our glossary page.
- Band: E
- PARKINGDetails of how and where vehicles can be parked, and any associated costs.Read more about parking in our glossary page.
- Yes
- GARDENA property has access to an outdoor space, which could be private or shared.
- Yes
- ACCESSIBILITYHow a property has been adapted to meet the needs of vulnerable or disabled individuals.Read more about accessibility in our glossary page.
- Ask agent
57 Summerland Park, Upper Killay, Swansea, West Glamorgan, SA2 7HY
Add an important place to see how long it'd take to get there from our property listings.
__mins driving to your place
Get an instant, personalised result:
- Show sellers you’re serious
- Secure viewings faster with agents
- No impact on your credit score
Your mortgage
Notes
Staying secure when looking for property
Ensure you're up to date with our latest advice on how to avoid fraud or scams when looking for property online.
Visit our security centre to find out moreDisclaimer - Property reference 322302. The information displayed about this property comprises a property advertisement. Rightmove.co.uk makes no warranty as to the accuracy or completeness of the advertisement or any linked or associated information, and Rightmove has no control over the content. This property advertisement does not constitute property particulars. The information is provided and maintained by The Property Auction House, Swansea. Please contact the selling agent or developer directly to obtain any information which may be available under the terms of The Energy Performance of Buildings (Certificates and Inspections) (England and Wales) Regulations 2007 or the Home Report if in relation to a residential property in Scotland.
*This is the average speed from the provider with the fastest broadband package available at this postcode. The average speed displayed is based on the download speeds of at least 50% of customers at peak time (8pm to 10pm). Fibre/cable services at the postcode are subject to availability and may differ between properties within a postcode. Speeds can be affected by a range of technical and environmental factors. The speed at the property may be lower than that listed above. You can check the estimated speed and confirm availability to a property prior to purchasing on the broadband provider's website. Providers may increase charges. The information is provided and maintained by Decision Technologies Limited. **This is indicative only and based on a 2-person household with multiple devices and simultaneous usage. Broadband performance is affected by multiple factors including number of occupants and devices, simultaneous usage, router range etc. For more information speak to your broadband provider.
Map data ©OpenStreetMap contributors.






