3 bedroom semi-detached house for sale
St Osyth Road, Clacton-on-Sea, CO15

- PROPERTY TYPE
Semi-Detached
- BEDROOMS
3
- BATHROOMS
1
- SIZE
Ask agent
- TENUREDescribes how you own a property. There are different types of tenure - freehold, leasehold, and commonhold.Read more about tenure in our glossary page.
Freehold
Key features
- 3 Bedrooms
- Semi Detached House
- Tenanted for Immediate Investment
- No Forward Chain
Description
Bettermove are proud to present this 3 bedroom semi-detached house in Clacton-on-Sea, available with no forward chain.
This is currently a tenanted property and will be sold with tenants in situ for immediate investment. Rental yields can be obtained through Bettermove.
This property benefits from double glazing, and gas central heating throughout, with off road parking available via the driveway.
The council tax band is A.
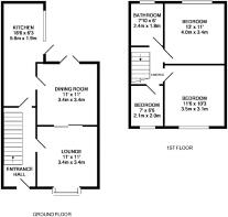
The interior of this beautifully presented property comprises a spacious living room, dining room, and fitted kitchen on the ground floor. The first floor consists of three bedrooms, including two doubles, and one single bedroom, alongside the family bathroom. The exterior boasts a private rear garden, with both lawn and patio areas, perfect for enjoying the summer months.
Located in the popular coastal town of Clacton-on-Sea, the property is close to a range of amenities, including shops, supermarkets, restaurants, pubs, and schools. Excellent transport links can be found from Clacton-on-Sea (0.9 mile), a variety of local bus routes, and quick access to the A133.
This exciting opportunity should not be missed! All enquiries can be made through Bettermove.
-----------------------------------------------------------------------------------
Reserve It Now
Secure your property with a £1,000 exclusivity deposit.
It’s taken off the market, locked in for you, and returned to you on completion.
No risk of being gazumped. No wasted costs.
Talk to our team today about Exclusivity Deposits
------------------------------------------------------------------------------------
Part Exchange Available
We can take your property in as part exchange, giving you a guaranteed buyer and a quicker, chain-free move.
Ask our team today about how our Part Exchange option can help you move with confidence.
Part Exchange subject to terms, valuation, and eligibility.
Mobile Signal
4G great data and voice
Construction Type
Floor: Suspended, no insulation (assumed)
Roof: Pitched, 250 mm loft insulation
Walls: Solid brick, as built, no insulation (assumed)
Windows: Fully double glazed
Lighting: Low energy lighting in 20% of fixed outlets
Brochures
Brochure 1- COUNCIL TAXA payment made to your local authority in order to pay for local services like schools, libraries, and refuse collection. The amount you pay depends on the value of the property.Read more about council Tax in our glossary page.
- Band: A
- PARKINGDetails of how and where vehicles can be parked, and any associated costs.Read more about parking in our glossary page.
- Yes
- GARDENA property has access to an outdoor space, which could be private or shared.
- Yes
- ACCESSIBILITYHow a property has been adapted to meet the needs of vulnerable or disabled individuals.Read more about accessibility in our glossary page.
- Ask agent
St Osyth Road, Clacton-on-Sea, CO15
Add an important place to see how long it'd take to get there from our property listings.
__mins driving to your place
Get an instant, personalised result:
- Show sellers you’re serious
- Secure viewings faster with agents
- No impact on your credit score
Your mortgage
Notes
Staying secure when looking for property
Ensure you're up to date with our latest advice on how to avoid fraud or scams when looking for property online.
Visit our security centre to find out moreDisclaimer - Property reference 29701465. The information displayed about this property comprises a property advertisement. Rightmove.co.uk makes no warranty as to the accuracy or completeness of the advertisement or any linked or associated information, and Rightmove has no control over the content. This property advertisement does not constitute property particulars. The information is provided and maintained by Bettermove, Nationwide. Please contact the selling agent or developer directly to obtain any information which may be available under the terms of The Energy Performance of Buildings (Certificates and Inspections) (England and Wales) Regulations 2007 or the Home Report if in relation to a residential property in Scotland.
*This is the average speed from the provider with the fastest broadband package available at this postcode. The average speed displayed is based on the download speeds of at least 50% of customers at peak time (8pm to 10pm). Fibre/cable services at the postcode are subject to availability and may differ between properties within a postcode. Speeds can be affected by a range of technical and environmental factors. The speed at the property may be lower than that listed above. You can check the estimated speed and confirm availability to a property prior to purchasing on the broadband provider's website. Providers may increase charges. The information is provided and maintained by Decision Technologies Limited. **This is indicative only and based on a 2-person household with multiple devices and simultaneous usage. Broadband performance is affected by multiple factors including number of occupants and devices, simultaneous usage, router range etc. For more information speak to your broadband provider.
Map data ©OpenStreetMap contributors.




