3 bedroom terraced house for rent
Westhouse grove, Kings Heath, B14

Letting details
- Let available date:
- Now
- Deposit:
- £1,269A deposit provides security for a landlord against damage, or unpaid rent by a tenant.Read more about deposit in our glossary page.
- Min. Tenancy:
- Ask agent How long the landlord offers to let the property for.Read more about tenancy length in our glossary page.
- Let type:
- Long term
- Furnish type:
- Unfurnished
- Council Tax:
- Ask agent
- PROPERTY TYPE
Terraced
- BEDROOMS
3
- BATHROOMS
1
- SIZE
Ask agent
Key features
- Full Double Glazing
- Gas Central Heating
- Combi Boiler
Description
Kings Heath B14. This attractive home is ideal for families or professional sharers, offering generous space, modern comfort, and excellent local amenities—all within walking distance.
Key Features:
Deposit: £1,265 (5 weeks’ rent max)
Holding Deposit: £250 (1 week’s rent max, refundable subject to terms)
Let Type: Long Term
Furnishing: Unfurnished
Bedrooms: 3 (2 doubles, 1 single/ nursery / study)
Bathrooms: 1 (modern white suite)
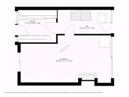
Total Area: Approx. 76.44 m² / 822.8 ft² (based on floorplan)
Ground Floor:
Spacious living/dining room (23.98 m²) with dual aspect and patio doors opening to the private rear garden—perfect for entertaining or relaxing.
Separate fitted kitchen (7.67 m²) with white goods included.
First Floor:
2 double bedrooms (12.34 m² and 9.72 m²) and 1 single bedroom (4.07 m²).
Family bathroom (4.85 m²) with bathtub, sink, and WC.
Hallway and landing with access to all rooms.
Local Area & Amenities:
This property is ideally located for both commuting and everyday convenience:
Schools: Walkable to several local schools including Colmore Infant and Nursery School, Kings Heath Boys School, and Allens Croft Primary School.
Shopping & High Street: Just a few minutes to Kings Heath High Street, Aldi, Asda, Tesco Express, and independent stores.
Leisure: Nearby Cocks Moors Woods Leisure Centre with swimming pool, gym, golf course, and classes.
Eateries & Takeaways: Excellent variety including Indian, Chinese, Turkish grills, and more all within walking distance.
Transport Links:
Bus Stops: Just a few minutes to Alcester Road South with frequent buses to Birmingham City Centre, Moseley, Selly Oak and surrounding areas (routes 35, 76, 27 etc.).
Train: Less than 10 minutes’ drive to Bournville Station or Kings Norton Station with direct trains to Birmingham New Street (approx. 20 mins).
Brochures
CMP Certificate- COUNCIL TAXA payment made to your local authority in order to pay for local services like schools, libraries, and refuse collection. The amount you pay depends on the value of the property.Read more about council Tax in our glossary page.
- Band: C
- PARKINGDetails of how and where vehicles can be parked, and any associated costs.Read more about parking in our glossary page.
- Ask agent
- GARDENA property has access to an outdoor space, which could be private or shared.
- Yes
- ACCESSIBILITYHow a property has been adapted to meet the needs of vulnerable or disabled individuals.Read more about accessibility in our glossary page.
- Ask agent
Westhouse grove, Kings Heath, B14
Add an important place to see how long it'd take to get there from our property listings.
__mins driving to your place
Notes
Staying secure when looking for property
Ensure you're up to date with our latest advice on how to avoid fraud or scams when looking for property online.
Visit our security centre to find out moreDisclaimer - Property reference spectra_726791988. The information displayed about this property comprises a property advertisement. Rightmove.co.uk makes no warranty as to the accuracy or completeness of the advertisement or any linked or associated information, and Rightmove has no control over the content. This property advertisement does not constitute property particulars. The information is provided and maintained by Spectra Property Services, Kings Heath. Please contact the selling agent or developer directly to obtain any information which may be available under the terms of The Energy Performance of Buildings (Certificates and Inspections) (England and Wales) Regulations 2007 or the Home Report if in relation to a residential property in Scotland.
*This is the average speed from the provider with the fastest broadband package available at this postcode. The average speed displayed is based on the download speeds of at least 50% of customers at peak time (8pm to 10pm). Fibre/cable services at the postcode are subject to availability and may differ between properties within a postcode. Speeds can be affected by a range of technical and environmental factors. The speed at the property may be lower than that listed above. You can check the estimated speed and confirm availability to a property prior to purchasing on the broadband provider's website. Providers may increase charges. The information is provided and maintained by Decision Technologies Limited. **This is indicative only and based on a 2-person household with multiple devices and simultaneous usage. Broadband performance is affected by multiple factors including number of occupants and devices, simultaneous usage, router range etc. For more information speak to your broadband provider.
Map data ©OpenStreetMap contributors.





