
Kennel Lane, Billericay, Essex, CM129RR

- PROPERTY TYPE
Detached
- BEDROOMS
4
- SIZE
Ask developer
- TENUREDescribes how you own a property. There are different types of tenure - freehold, leasehold, and commonhold.Read more about tenure in our glossary page.
Freehold
Key features
- Stamp Duty Paid up to £29,497*
- Ready to move into for Spring this year
- Dual-aspect open plan kitchen/dining/living room
- Four double bedrooms
- Separate first floor study, ideal for home working
- Principal bedroom with en-suite and fitted wardrobe
- Family bathroom with modern fixtures and fittings
- Garage and driveway parking for two vehicles with EV charging
- East facing rear garden
Description
The Olive, Number 115
Kingsley Park, Billericay
Stamp Duty Paid up to £29,497*
The Olive Number 115 is the final Olive home available to move into this year.
This is an elegant four-bedroom home designed for elevated family living. The expansive open-plan kitchen/dining/living space opens onto a sunlit east facing garden, creating a seamless flow of light and space. Finished to an exceptional inclusive specification, a private garage and EV charging, it is perfectly placed for Billericay’s boutique shops, excellent schools and direct London connections.
Property Highlights:
- Fully inclusive specification with integrated kitchen appliances
- Four generous double bedrooms plus a dedicated study offer both personal space and room to grow.
- The principal bedroom occupies the top floor and enjoys an en-suite and fitted sliding mirrored wardrobes
- Enjoy seamless indoor outdoor living with a east facing garden that welcomes sunshine for morning coffee, summer barbecues, or relaxing afternoons in the fresh air.
- Enjoy year-round comfort with underfloor heating on the ground floor
- Fitted with an air source heat pump, delivering energy-efficient, cost-effective heating
A Lifestyle at Kingsley Park
Billericay is a vibrant, welcoming community, with beautiful green spaces on your doorstep, family-friendly attractions, and easy access to nearby towns, offering the perfect balance of relaxation at home, adventure, and connection.
- A short 11-minute walk brings you to Tesco Express, making everyday shopping simple.
- Reach Billericay Sports & Fitness Centre in a 21-minute walk from the development, making it easy to stay active, whether you’re hitting the gym, joining a class, or enjoying some leisure sport.
- A 7-minute drive from Kingsley Park, Norsey Wood Country Park offers a peaceful escape into nature, perfect for walks, family adventures, or simply enjoying the great outdoors.
- Families will love the excellent schools in and around Billericay, offering a range of outstanding options that make everyday life easier and provide the perfect foundation for children to thrive.
- For those keen to venture further, nearby Brentwood brings even more shops, restaurants, and leisure options, all just a short drive from home.
Seamless Travel & Connections
Life in Billericay keeps you effortlessly connected, whether commuting, working, or enjoying a weekend getaway.
- Billericay Train Station, just a 9-minute bike ride away, offers quick and direct services into Stratford and London Liverpool Street, making city commutes stress-free.
- For road travel, Billericay sits conveniently between the A127 and A12, with Chelmsford and the M25 Junction 28 interchange both under ten miles away, giving you flexible routes across London, Essex, and beyond.
- London Stansted Airport is around a 40-minute drive, ensuring both domestic and international journeys are simple and convenient.
Discover your Future Home
Arrange a visit with our sales team and tour our show homes at Kingsley Park.
Sales Suite: Kennel Lane, Billericay, Essex, CM12 9RR.
Opening Times: Open Thursday-Monday, 10:00–17:30
*Interior images represent the Kingsley Park show homes. Part Exchange terms and conditions apply.
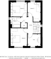
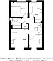
The Olive, Number 115 Ground Floor
Kitchen / Dining / Living - 8.8m x 6.1m (28'10" x 20'0")
The Olive, Number 115 First Floor
Bedroom 2 - 3.6m x 3.4m (11'10" x 11'2")
Bedroom 3 - 2.9m x 3.4m (9'6" x 11'2")
Bedroom 4 - 2.9m x 2.6m (9'6" x 8'6")
Study - 2.4m x 2.6m (7'10" x 8'6")
The Olive, Number 115 Second Floor
Principal Bedroom - 4.2m x 3.4m (13'9" x 11'2")
- COUNCIL TAXA payment made to your local authority in order to pay for local services like schools, libraries, and refuse collection. The amount you pay depends on the value of the property.Read more about council Tax in our glossary page.
- Band: TBC
- PARKINGDetails of how and where vehicles can be parked, and any associated costs.Read more about parking in our glossary page.
- Yes
- GARDENA property has access to an outdoor space, which could be private or shared.
- Yes
- ACCESSIBILITYHow a property has been adapted to meet the needs of vulnerable or disabled individuals.Read more about accessibility in our glossary page.
- Ask developer
Energy performance certificate - ask developer
Kennel Lane, Billericay, Essex, CM129RR
Add an important place to see how long it'd take to get there from our property listings.
__mins driving to your place
Affordability
About Hill Residential Limited
The Hill Group is a top 10 housebuilder and one of the leading developers in London, the home counties, and the South. The company is renowned for its partnership ethos, specialising in the building of distinctive new places and communities where people want to live, work, and socialise.
In its 26th year, this family-run company has grown to establish itself as the UK's second-largest privately-owned housebuilder, with an impressive and diverse portfolio of projects ranging from landmark, mixed-use regenerations, and inner-city apartment developments to homes in rural communities.
Employing nearly 1000 people, the company operates from five strategically located regional offices including Bristol and Abingdon to help facilitate growth in the South West and the Midlands, with its head office based in Waltham Abbey, Essex.
Hill completed more than 2,800 homes in the last financial year and has a development pipeline of over 32,000 homes, including 10,200 with planning consent. Around half of its portfolio is in joint ventures to deliver a range of mixed-tenure developments, reflecting Hill’s commitment to partnerships with government, local authorities, housing associations, and private clients.
Since the company was founded in 1999, Hill has won over 500 industry awards, including the esteemed title of WhatHouse? Housebuilder of the Year in 2015, 2020 and 2023. Most recently, Canalside Quarter won Gold for Best House, and Hollymead Square won Gold for Best Sustainable Development at the 2025 WhatHouse? Awards.
Hill’s dedication to delivering the highest quality homes and exceptional customer service has earned the housebuilder its 5-star status in the Home Builders Federation’s annual Customer Satisfaction Survey for the past eight years. Hill is a registered developer with the New Homes Quality Board (NHQB) and follows the New Homes Quality Code (NHQC), a new industry standard to ensure high-quality homes and an exceptional customer experience. With a score of 4.8 out of 5, Hill is also ranked as the number one housebuilder on Trustpilot.
In addition, Hill is donating 200 fully equipped modular homes to local authorities and homeless charities as part of a £15 million pledge through its Foundation 200 programme, launched in 2019 to mark Hill’s 20th anniversary.
In its 26th year, this family-owned and operated company has grown to establish itself as the UK's second-largest privately-owned housebuilder, with an impressive and diverse portfolio of projects ranging from landmark, mixed-use regenerations, and inner-city apartment developments to homes in rural communities.
Employing over 950 staff, the company operates from six strategically located regional offices including Bristol and Abingdon to help facilitate growth in the South West and the Midlands, with its head office based in Waltham Abbey, Essex.
Hill completed more than 2,800 homes in the last financial year and has a development pipeline of over 32,000 homes, including 10,200 with planning consent. Around half of its portfolio is in joint ventures to deliver a range of mixed-tenure developments, reflecting Hill’s commitment to partnerships with government, local authorities, housing associations, and private clients.
Since the company was founded in 1999, Hill has won over 500 industry awards, including the esteemed title of WhatHouse? Housebuilder of the Year in 2015, 2020 and 2023. Most recently in 2024, Millside Grange in Croxley Green also won The Standard’s Homes & Property Award for Best Commuter Home.
In addition, Hill’s dedication to delivering the highest quality homes and exceptional customer service has earned the housebuilder its 5-star status in the Home Builders Federation’s annual Customer Satisfaction Survey for the past eight years. Hill is a registered developer with the New Homes Quality Board (NHQB) and follows the New Homes Quality Code (NHQC), a new industry standard to ensure high-quality homes and an exceptional customer experience. With a score of 4.8 out of 5, Hill is also ranked as the number one housebuilder on Trustpilot.
Hill is donating 200 fully equipped modular homes to local authorities and homeless charities as part of a £15 million pledge through its Foundation 200 programme, launched in 2019 to mark Hill’s 20th anniversary.
Follow us on LinkedIn and Instagram @HillGroupUK
For more information, contact The Oracle Group PR Agency on Tel: 020 8394 2821 or hill@oraclepr.co.uk
*The Hill Group was listed within the top 10 of the Top 150 UK Contractors and Housebuilders published by Building.co.uk in December 2024
Get an instant, personalised result:
- Show sellers you’re serious
- Secure viewings faster with agents
- No impact on your credit score
Notes
Staying secure when looking for property
Ensure you're up to date with our latest advice on how to avoid fraud or scams when looking for property online.
Visit our security centre to find out moreDisclaimer - Property reference 4_KngslyPrk-TheOlv,Nmbr115. The information displayed about this property comprises a property advertisement. Rightmove.co.uk makes no warranty as to the accuracy or completeness of the advertisement or any linked or associated information, and Rightmove has no control over the content. This property advertisement does not constitute property particulars. The information is provided and maintained by Hill Residential Limited. Please contact the selling agent or developer directly to obtain any information which may be available under the terms of The Energy Performance of Buildings (Certificates and Inspections) (England and Wales) Regulations 2007 or the Home Report if in relation to a residential property in Scotland.
*This is the average speed from the provider with the fastest broadband package available at this postcode. The average speed displayed is based on the download speeds of at least 50% of customers at peak time (8pm to 10pm). Fibre/cable services at the postcode are subject to availability and may differ between properties within a postcode. Speeds can be affected by a range of technical and environmental factors. The speed at the property may be lower than that listed above. You can check the estimated speed and confirm availability to a property prior to purchasing on the broadband provider's website. Providers may increase charges. The information is provided and maintained by Decision Technologies Limited. **This is indicative only and based on a 2-person household with multiple devices and simultaneous usage. Broadband performance is affected by multiple factors including number of occupants and devices, simultaneous usage, router range etc. For more information speak to your broadband provider.
Map data ©OpenStreetMap contributors.






