
Eddington Avenue, Cambridge, CB3

- PROPERTY TYPE
Apartment
- BEDROOMS
1
- SIZE
Ask developer
Key features
- Second-floor one bedroom apartment with private terrace
- Spacious open plan kitchen / dining / living room
- Principal double bedroom offering ample space and sleek built-in storage
- Stylish bathroom featuring modern fixtures and elegant finishes
- Underfloor heating throughout
- Concierge service, open 7 days a week
- Approx 565 sq ft
- EPC Rating: B
Description
Apartment 72, The Icon
The Icon, Cambridge
Apartment 72 at The Icon, Eddington is a stylish one bed apartment on the second floor.. A bright open plan kitchen/dining/living space opens to a private terrace with market square views. Features include underfloor heating, secure underground parking with EV charging, and access to a huge rooftop garden with views over Eddington's cricket pitch.
Property Highlights:
- Contemporary open-plan kitchen and living space with integrated appliances, opening effortlessly onto a private terrace via sliding doors
- Elegant double bedroom with fitted wardrobes, bathed in natural light for a stylish, relaxed feel
- Secure, modern living with fob-controlled access to the entrance lobby, a video entry system to each apartment, and pre-wired SKY Q connectivity for effortless entertainment.
- Dedicated utility room, making everyday chores easy while preserving your stylish living space.
- Enjoy a private terrace that brings outdoor living and Market Square views to your home
- Use of a dedicated concierge ensures daily life runs smoothly, from managing deliveries to sharing local tips
- Residents’ rooftop garden: the perfect spot for morning coffee, evening sunsets, or social gatherings with views across the cricket pitch
A Lifestyle at The Icon
The Icon is perfectly positioned in the heart of Eddington, a forward-thinking, sustainable neighbourhood just 1.9 miles from Cambridge city centre. Life here is designed around community and well-being, with everything you need on your doorstep. From morning strolls and weekend gatherings to meeting friends in this vibrant neighbourhood, Eddington is more than a place to live, it’s a place to connect, belong, and truly enjoy life.
- Sainsbury’s sits just opposite the development, making everyday shopping, snacks, and essentials quick and convenient without venturing into central Cambridge.
- Storey’s Field Centre serves as the heart of the community, hosting social events, classes, workshops, and activities, ideal for meeting neighbours or exploring new hobbies without leaving the neighbourhood.
- Dulcedo is a charming local café and patisserie, known for its artisan pastries, freshly baked breads, and specialty coffees. It’s the perfect spot for a relaxed breakfast, a casual catch-up, or a sweet treat on the go, just steps from home.
- Just a short 2 minute walk from The Icon, Storey’s Field is a spacious, open green area at the heart of Eddington, perfect for leisurely strolls, weekend picnics, or a casual game outdoors, it brings nature and fresh air right to your doorstep.
- The University of Cambridge is only about a 10–15 minute bike ride away, making it easily accessible for students and visitors alike.
Just minutes from Eddington, Cambridge City Centre is alive with energy. Discover quirky boutiques, independent shops, and lively markets, then pause for a coffee, a relaxed lunch, or an evening drink. Don’t miss Cambridge Market Square for daily treats and the All Saints Craft Market for unique handmade treasures that add style and personality to your home.
Seamless Travel & Connections
Life at The Icon keeps you effortlessly connected, whether commuting to London, travelling for work, or enjoying a weekend getaway.
- Enjoy seamless mobility with dedicated cycling and pedestrian routes weaving through Knights Park and across Eddington, while safe, well-connected cycle lanes take you straight into Cambridge city centre.
- Cambridge Railway Station is just an 18-minute cycle away, offering direct trains to central London in under an hour, perfect for commuters or weekend getaways.
- For road travel, the M11 motorway is just 4 minutes from The Icon, providing swift access to the M25 and London.
- For international travel, Stansted Airport is only a 30-minute train journey, putting the world within easy reach.
Discover your Future Home
Schedule a visit with our sales team and visit our show homes at The Icon development.
Sales Suite: Eddington Avenue, Cambridge, CB3 1SE.
Opening Times: Open daily, 10:00–17:30
*External image of The Icon and podium garden are CGIs, for indicative purposes only. Internal images are of the two bedroom show apartment at The Icon - layouts and specification may vary. Actual image of The Icon concierge.
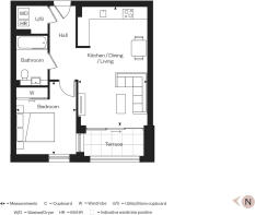
Apartment 72, The Icon Floorplan
Kitchen / Dining / Living Room - 3.75m x 6.5m (12'4" x 21'4")
Bedroom - 3.25m x 2.95m (10'8" x 9'8")
Terrace - 3.3m x 1.4m (10'10" x 4'7")
- COUNCIL TAXA payment made to your local authority in order to pay for local services like schools, libraries, and refuse collection. The amount you pay depends on the value of the property.Read more about council Tax in our glossary page.
- Band: TBC
- PARKINGDetails of how and where vehicles can be parked, and any associated costs.Read more about parking in our glossary page.
- Yes
- GARDENA property has access to an outdoor space, which could be private or shared.
- Yes
- ACCESSIBILITYHow a property has been adapted to meet the needs of vulnerable or disabled individuals.Read more about accessibility in our glossary page.
- Ask developer
Energy performance certificate - ask developer
- Multi-award-winning sustainable development in Eddington, Cambridge
- Minutes from The University of Cambridge Primary School
- Excellent amenities close by - including a supermarket, café, restaurants, hotel, and community centre
- Outstanding transport links to Cambridge City, M11 and beyond
Eddington Avenue, Cambridge, CB3
Add an important place to see how long it'd take to get there from our property listings.
__mins driving to your place
Get an instant, personalised result:
- Show sellers you’re serious
- Secure viewings faster with agents
- No impact on your credit score
About Hill Residential Limited
The Hill Group is a top 10 housebuilder and one of the leading developers in London, the home counties, and the South. The company is renowned for its partnership ethos, specialising in the building of distinctive new places and communities where people want to live, work, and socialise.
In its 26th year, this family-run company has grown to establish itself as the UK's second-largest privately-owned housebuilder, with an impressive and diverse portfolio of projects ranging from landmark, mixed-use regenerations, and inner-city apartment developments to homes in rural communities.
Employing nearly 1000 people, the company operates from five strategically located regional offices including Bristol and Abingdon to help facilitate growth in the South West and the Midlands, with its head office based in Waltham Abbey, Essex.
Hill completed more than 2,800 homes in the last financial year and has a development pipeline of over 32,000 homes, including 10,200 with planning consent. Around half of its portfolio is in joint ventures to deliver a range of mixed-tenure developments, reflecting Hill’s commitment to partnerships with government, local authorities, housing associations, and private clients.
Since the company was founded in 1999, Hill has won over 500 industry awards, including the esteemed title of WhatHouse? Housebuilder of the Year in 2015, 2020 and 2023. Most recently, Canalside Quarter won Gold for Best House, and Hollymead Square won Gold for Best Sustainable Development at the 2025 WhatHouse? Awards.
Hill’s dedication to delivering the highest quality homes and exceptional customer service has earned the housebuilder its 5-star status in the Home Builders Federation’s annual Customer Satisfaction Survey for the past eight years. Hill is a registered developer with the New Homes Quality Board (NHQB) and follows the New Homes Quality Code (NHQC), a new industry standard to ensure high-quality homes and an exceptional customer experience. With a score of 4.8 out of 5, Hill is also ranked as the number one housebuilder on Trustpilot.
In addition, Hill is donating 200 fully equipped modular homes to local authorities and homeless charities as part of a £15 million pledge through its Foundation 200 programme, launched in 2019 to mark Hill’s 20th anniversary.
In its 26th year, this family-owned and operated company has grown to establish itself as the UK's second-largest privately-owned housebuilder, with an impressive and diverse portfolio of projects ranging from landmark, mixed-use regenerations, and inner-city apartment developments to homes in rural communities.
Employing over 950 staff, the company operates from six strategically located regional offices including Bristol and Abingdon to help facilitate growth in the South West and the Midlands, with its head office based in Waltham Abbey, Essex.
Hill completed more than 2,800 homes in the last financial year and has a development pipeline of over 32,000 homes, including 10,200 with planning consent. Around half of its portfolio is in joint ventures to deliver a range of mixed-tenure developments, reflecting Hill’s commitment to partnerships with government, local authorities, housing associations, and private clients.
Since the company was founded in 1999, Hill has won over 500 industry awards, including the esteemed title of WhatHouse? Housebuilder of the Year in 2015, 2020 and 2023. Most recently in 2024, Millside Grange in Croxley Green also won The Standard’s Homes & Property Award for Best Commuter Home.
In addition, Hill’s dedication to delivering the highest quality homes and exceptional customer service has earned the housebuilder its 5-star status in the Home Builders Federation’s annual Customer Satisfaction Survey for the past eight years. Hill is a registered developer with the New Homes Quality Board (NHQB) and follows the New Homes Quality Code (NHQC), a new industry standard to ensure high-quality homes and an exceptional customer experience. With a score of 4.8 out of 5, Hill is also ranked as the number one housebuilder on Trustpilot.
Hill is donating 200 fully equipped modular homes to local authorities and homeless charities as part of a £15 million pledge through its Foundation 200 programme, launched in 2019 to mark Hill’s 20th anniversary.
Follow us on LinkedIn and Instagram @HillGroupUK
For more information, contact The Oracle Group PR Agency on Tel: 020 8394 2821 or hill@oraclepr.co.uk
*The Hill Group was listed within the top 10 of the Top 150 UK Contractors and Housebuilders published by Building.co.uk in December 2024
Affordability
Notes
Staying secure when looking for property
Ensure you're up to date with our latest advice on how to avoid fraud or scams when looking for property online.
Visit our security centre to find out moreDisclaimer - Property reference 1_TheIcn-TheIcn,Nmbr72. The information displayed about this property comprises a property advertisement. Rightmove.co.uk makes no warranty as to the accuracy or completeness of the advertisement or any linked or associated information, and Rightmove has no control over the content. This property advertisement does not constitute property particulars. The information is provided and maintained by Hill Residential Limited. Please contact the selling agent or developer directly to obtain any information which may be available under the terms of The Energy Performance of Buildings (Certificates and Inspections) (England and Wales) Regulations 2007 or the Home Report if in relation to a residential property in Scotland.
*This is the average speed from the provider with the fastest broadband package available at this postcode. The average speed displayed is based on the download speeds of at least 50% of customers at peak time (8pm to 10pm). Fibre/cable services at the postcode are subject to availability and may differ between properties within a postcode. Speeds can be affected by a range of technical and environmental factors. The speed at the property may be lower than that listed above. You can check the estimated speed and confirm availability to a property prior to purchasing on the broadband provider's website. Providers may increase charges. The information is provided and maintained by Decision Technologies Limited. **This is indicative only and based on a 2-person household with multiple devices and simultaneous usage. Broadband performance is affected by multiple factors including number of occupants and devices, simultaneous usage, router range etc. For more information speak to your broadband provider.
Map data ©OpenStreetMap contributors.





