
3 bedroom detached bungalow for sale
Luckhams Lane, Malborough

- PROPERTY TYPE
Detached Bungalow
- BEDROOMS
3
- BATHROOMS
1
- SIZE
830 sq ft
77 sq m
- TENUREDescribes how you own a property. There are different types of tenure - freehold, leasehold, and commonhold.Read more about tenure in our glossary page.
Freehold
Key features
- Detached bungalow
- Three bedrooms
- Stunning countryside views
- Spacious corner plot
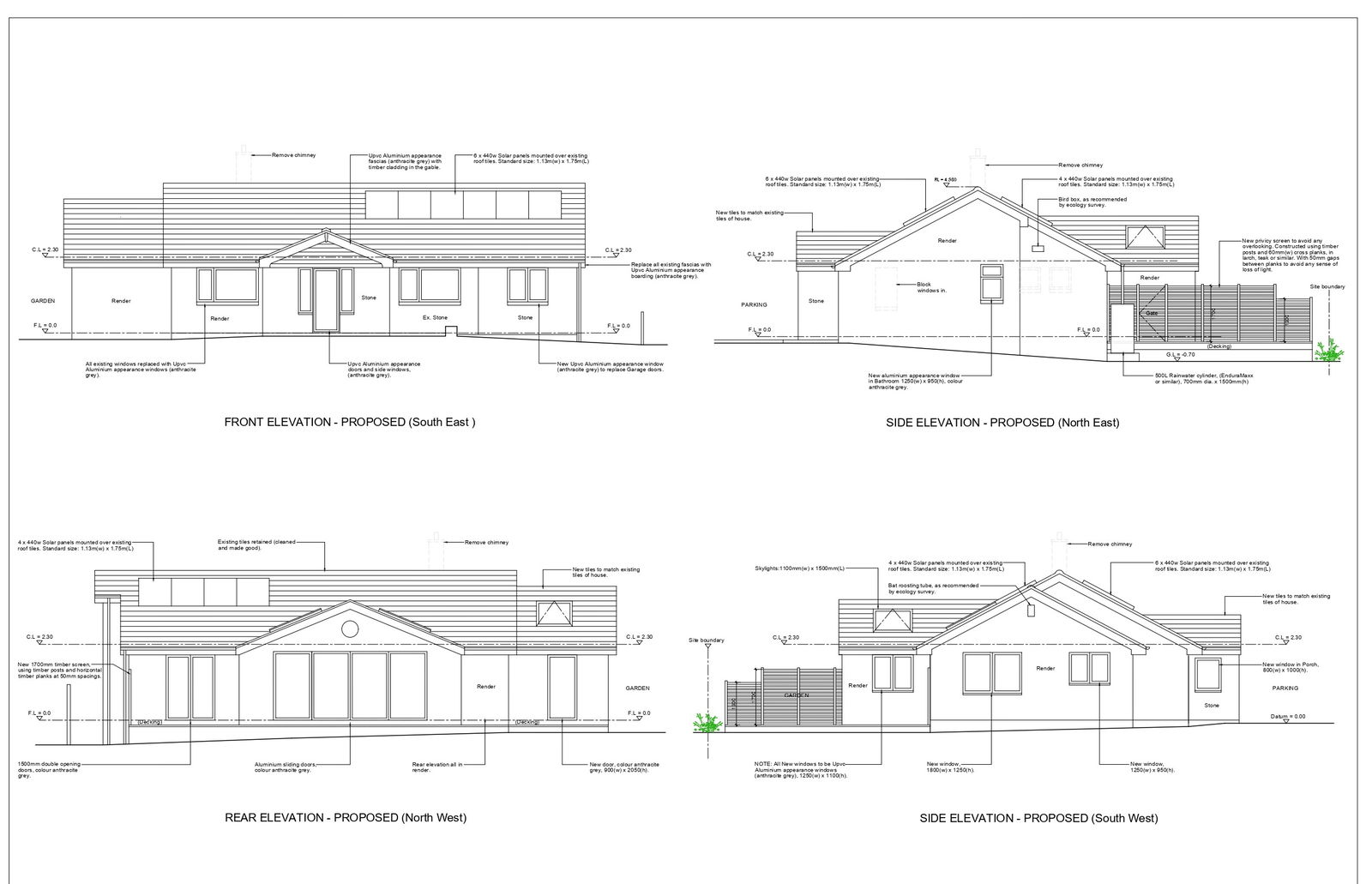
- Planning permission for side and rear extension
- In need of modernisation
- Friendly village community
- Walking distance to amenities
- Close to the beach
- Garage and off road parking
Description
Nestled on a generous corner plot in the charming village of Malborough, Blue Haze is a detached three-bedroom bungalow offering beautiful countryside views and fantastic potential. With planning permission already granted (Ref: 2475/25/HHO) for a side, rear and porch extension to enlarge the bedrooms, create an open plan living space and an additional home office, this property is perfect for those looking to create a bespoke home in a peaceful village location.
The existing accommodation includes two well-proportioned double bedrooms with a smaller third bedroom or home office, a bright and airy living space, and a practical kitchen layout. While the property would benefit from modernisation, its spacious footprint and elevated position make it a great option for anyone looking to put their own stamp on a property.
To the rear there is a large garden with panoramic rural views, and a garage, and ample off-road parking to the front. The setting is peaceful yet convenient - Malborough’s friendly community, local shop, and welcoming pubs are just a short stroll away. For beach lovers, the golden sands and turquoise waters of Salcombe and Hope Cove are only minutes from your door.
The village of Malborough has a popular thriving community, benefitting from a village primary school, a couple of pubs, a shop and petrol station, a large village hall hosting a wide variety of different activities and a regular bus service into Salcombe and Kingsbridge providing further transport connections to Dartmouth, Totnes and Plymouth. Salcombe is approximately 1.5 miles away and has a beautiful coastline, safe sheltered waters and plenty of sandy beaches. The nearby town of Kingsbridge has a wider range of amenities, including a large leisure centre and a secondary school, Kingsbridge Community College.
DIRECTIONS
what3words - ///elaborate.ship.animates
VIEWING ARRANGEMENTS
Strictly by appointment with Luscombe Maye, Salcombe
MATERIAL INFORMATION
To ensure legal compliance, we require our sellers to complete a Property Information Questionnaire or provide a Material Information Guide along with the title document. If available, please scan the QR code or access the additional online material information. Alternatively, you can contact our team for this information.
Council Tax band: D
Tenure: Freehold
Property type: Bungalow
Property construction: Standard construction
Energy Performance rating:
Electricity supply: Mains electricity
Solar Panels: No
Other electricity sources: No
Water supply: Mains water supply
Sewerage: Mains
Heating: Mains gas-powered central heating is installed.
Heating features: Double glazing and Wood burner
Broadband: FTTC (Fibre to the Cabinet)
Mobile coverage: O2 - Good, Vodafone - OK, Three - Good, EE - Good
Parking: Garage and Driveway
Building safety issues: No
Restrictions - Listed Building: No
Restrictions - Conservation Area: No
Restrictions - Tree Preservation Orders: None
Public right of way: No
Long-term area flood risk: No
Historical flooding: No
Flood defences: No
Coastal erosion risk: No
Planning permission issues: No
Accessibility and adaptations: None
Coal mining area: No
Non-coal mining area: No
All information is provided without warranty. Contains HM Land Registry data © Crown copyright and database right 2021. This data is licensed under the Open Government Licence v3.0.
The information contained is intended to help you decide whether the property is suitable for you. You should verify any answers which are important to you with your property lawyer or surveyor or ask for quotes from the appropriate trade experts: builder, plumber, electrician, damp, and timber expert.
Brochures
Brochure 1Brochure 2Brochure 3Brochure 4- COUNCIL TAXA payment made to your local authority in order to pay for local services like schools, libraries, and refuse collection. The amount you pay depends on the value of the property.Read more about council Tax in our glossary page.
- Band: D
- PARKINGDetails of how and where vehicles can be parked, and any associated costs.Read more about parking in our glossary page.
- Off street
- GARDENA property has access to an outdoor space, which could be private or shared.
- Private garden
- ACCESSIBILITYHow a property has been adapted to meet the needs of vulnerable or disabled individuals.Read more about accessibility in our glossary page.
- No wheelchair access
Luckhams Lane, Malborough
Add an important place to see how long it'd take to get there from our property listings.
__mins driving to your place
Get an instant, personalised result:
- Show sellers you’re serious
- Secure viewings faster with agents
- No impact on your credit score

Your mortgage
Notes
Staying secure when looking for property
Ensure you're up to date with our latest advice on how to avoid fraud or scams when looking for property online.
Visit our security centre to find out moreDisclaimer - Property reference S1521729. The information displayed about this property comprises a property advertisement. Rightmove.co.uk makes no warranty as to the accuracy or completeness of the advertisement or any linked or associated information, and Rightmove has no control over the content. This property advertisement does not constitute property particulars. The information is provided and maintained by Luscombe Maye, Salcombe. Please contact the selling agent or developer directly to obtain any information which may be available under the terms of The Energy Performance of Buildings (Certificates and Inspections) (England and Wales) Regulations 2007 or the Home Report if in relation to a residential property in Scotland.
*This is the average speed from the provider with the fastest broadband package available at this postcode. The average speed displayed is based on the download speeds of at least 50% of customers at peak time (8pm to 10pm). Fibre/cable services at the postcode are subject to availability and may differ between properties within a postcode. Speeds can be affected by a range of technical and environmental factors. The speed at the property may be lower than that listed above. You can check the estimated speed and confirm availability to a property prior to purchasing on the broadband provider's website. Providers may increase charges. The information is provided and maintained by Decision Technologies Limited. **This is indicative only and based on a 2-person household with multiple devices and simultaneous usage. Broadband performance is affected by multiple factors including number of occupants and devices, simultaneous usage, router range etc. For more information speak to your broadband provider.
Map data ©OpenStreetMap contributors.






