4 bedroom detached house for sale
Long Lands View, Kingsley Drive, Harrogate, North Yorkshire, HG1 4TJ

- PROPERTY TYPE
Detached
- BEDROOMS
4
- SIZE
Ask developer
- TENUREDescribes how you own a property. There are different types of tenure - freehold, leasehold, and commonhold.Read more about tenure in our glossary page.
Freehold
Key features
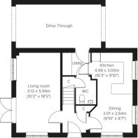
- Bright open plan kitchen/dining room
- Spacious living room with French doors leading to the garden
- Direct access into the utility from the drive through
- Downstairs WC
- Bedrooms one and two with en suites
- Energy efficient
Description
The clever design of a drive-through for your car and an ensuite bedroom above it, adds an extra dimension to this family-sized new home. The four-bedroom, three-bathroom Barnwood DT gives you space to spread out and space to be sociable. Direct access from the house to the drive-through is a simple feature that makes all the difference when you’re bringing in the shopping.
Additional Information
- Tenure: Freehold
- Council tax band: Not made available by local authority until post-occupation
Parking - Allocated Parking
Room Dimensions
- Kitchen - 4.96 x 3.0 metre
- Dining room - 3.01 x 2.64 metre
- Living room - 3.12 x 5.64 metre
- Kitchen - 4.96 x 3.0 metre
- Dining room - 3.01 x 2.64 metre
- Living room - 3.12 x 5.64 metre
- Bedroom 1 - 3.17 x 3.7 metre
- Bedroom 2 - 3.95 x 3.03 metre
- Bedroom 3 - 4.01 x 2.91 metre
- Bedroom 4 - 2.97 x 2.64 metre
- Bedroom 1 - 3.17 x 3.7 metre
- Bedroom 2 - 3.95 x 3.03 metre
- Bedroom 3 - 4.01 x 2.91 metre
- Bedroom 4 - 2.97 x 2.64 metre
- COUNCIL TAXA payment made to your local authority in order to pay for local services like schools, libraries, and refuse collection. The amount you pay depends on the value of the property.Read more about council Tax in our glossary page.
- Ask developer
- PARKINGDetails of how and where vehicles can be parked, and any associated costs.Read more about parking in our glossary page.
- Yes
- GARDENA property has access to an outdoor space, which could be private or shared.
- Yes
- ACCESSIBILITYHow a property has been adapted to meet the needs of vulnerable or disabled individuals.Read more about accessibility in our glossary page.
- Ask developer
Energy performance certificate - ask developer
Long Lands View, Kingsley Drive, Harrogate, North Yorkshire, HG1 4TJ
Add an important place to see how long it'd take to get there from our property listings.
__mins driving to your place
Get an instant, personalised result:
- Show sellers you’re serious
- Secure viewings faster with agents
- No impact on your credit score
About the development
About Persimmon Homes
Welcome to Long Lands View ? modern new builds, Harrogate
Discover Long Lands View, a welcoming new development in the heart of Harrogate, offering one, two, three and four-bedroom homes. With plenty of green space, a central play area and easy access to nearby cities, it?s a place where fresh starts and family adventures come naturally.
Stylish new homes for sale in Harrogate, North Yorkshire
Set within the historic spa town of Harrogate, Long Lands View is full of charm and character. The development features a large green space at its heart, perfect for play, picnics and peaceful strolls. With scenic surroundings and a friendly community feel, it?s a great place to grow while also staying well-connected.
New build homes with excellent transport links to Leeds, Bradford and York
Whether you?re commuting or exploring, Long Lands View keeps you connected. Harrogate station is just over 2 miles away, and the nearby A1(M) makes travel to Leeds, Bradford and York easy. Leeds Bradford Airport is also close by for international getaways when you need a well-deserved break.
Everything you need on your doorstep
From supermarkets and schools to cafés, shops and leisure spots, Harrogate has it all. Known for its beautiful buildings and buzzing atmosphere, this well-established town offers everything you need for day-to-day life ? all just minutes from home. The popular public park, The Stray, is only a 10-minute stroll away, with cherry blossom trees and plenty of space for the kids to burn off energy.
Ready to make your move?
To explore our new homes in Harrogate and start your new build journey, speak to one of our friendly sales advisors today.
This development offers the following schemes:
- New Build Boost
- Part Exchange your Home
- Home Change
Schemes are available on selected plots only, subject to status, terms and conditions apply. Contact the development for latest information.
Your mortgage
Notes
Staying secure when looking for property
Ensure you're up to date with our latest advice on how to avoid fraud or scams when looking for property online.
Visit our security centre to find out moreDisclaimer - Property reference 4_124. The information displayed about this property comprises a property advertisement. Rightmove.co.uk makes no warranty as to the accuracy or completeness of the advertisement or any linked or associated information, and Rightmove has no control over the content. This property advertisement does not constitute property particulars. The information is provided and maintained by Persimmon Homes. Please contact the selling agent or developer directly to obtain any information which may be available under the terms of The Energy Performance of Buildings (Certificates and Inspections) (England and Wales) Regulations 2007 or the Home Report if in relation to a residential property in Scotland.
*This is the average speed from the provider with the fastest broadband package available at this postcode. The average speed displayed is based on the download speeds of at least 50% of customers at peak time (8pm to 10pm). Fibre/cable services at the postcode are subject to availability and may differ between properties within a postcode. Speeds can be affected by a range of technical and environmental factors. The speed at the property may be lower than that listed above. You can check the estimated speed and confirm availability to a property prior to purchasing on the broadband provider's website. Providers may increase charges. The information is provided and maintained by Decision Technologies Limited. **This is indicative only and based on a 2-person household with multiple devices and simultaneous usage. Broadband performance is affected by multiple factors including number of occupants and devices, simultaneous usage, router range etc. For more information speak to your broadband provider.
Map data ©OpenStreetMap contributors.





