
Rose Tree Lane, Newhall, Swadlincote, Derbyshire, DE11

- PROPERTY TYPE
Semi-Detached
- BEDROOMS
2
- BATHROOMS
1
- SIZE
Ask agent
- TENUREDescribes how you own a property. There are different types of tenure - freehold, leasehold, and commonhold.Read more about tenure in our glossary page.
Freehold
Key features
- Semi Detached Home
- Two Double Bedrooms With Built-in Wardrobe's
- Extra Large Lounge Diner
- Off Road Parking
- Fully Enclosed Rear Garden
- No Upward Chain
- Ideal For First Time Buyers Or Investors
Description
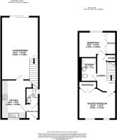
Newton Fallowell are pleased to be able to offer for sale this larger than usual two bedroomed semi detached home on a quiet road in Newhall. Being offered to the market with immediate vacant possession viewings of this property are highly recommended to first time buyers of investors. In brief the accommodation comprises: - entrance hall, guest cloak room, kitchen, large lounge diner and on the first floor a landing leads to two double bedrooms, both with built-in wardrobes and family bathroom. Outside the property has off road parking for two vehicles and a fully enclosed rear garden which is low maintenance.
EPC rating: C. Tenure: Freehold,Accommodation In Detail
Composite double glazed door leading to:
Entrance Hall
having consumer unit for electrics, thermostat for central heating, tiling to floor and one central heating radiator.
Guest Cloak Room
1.63m x 1.22m (5'4" x 4'0")
having low level wc, ceramic hand basin with chrome mixer tap, built-in understairs storage, extractor fan, tiling to floor and frosted Upvc double glazed window to side elevation.
Kitchen
2.58m x 4.06m (8'6" x 13'4")
having range of base and wall mounted units, granite effect laminate work surface, four ring gas hob with extractor over, single electric oven, space for washing machine, space for tumble dryer, space for fridge/freezer, cupboard housing gas fired combination boiler, tiling to floor, one central heating radiator and Upvc double glazed window to front elevation.
Large Lounge Diner
3.92m x 6.6m (12'10" x 21'8")
having understairs storage, staircase rising to first floor, media points, wood effect laminate flooring, two central heating radiators and Upvc double glazed sliding patio doors leading out to rear elevation.
On The First Floor
Landing
having access to loft space, built-in storage cupboard and one central heating radiator.
Master Bedroom
3.92m x 3.15m (12'10" x 10'4")
having built-in double wardrobe, carpet to floor, one central heating radiator and two Upvc double glazed windows to front elevation.
Bedroom Two
3.15m x 2.69m (10'4" x 8'10")
having built-in double wardrobe, carpet to floor, one central heating radiator and Upvc double glazed window to rear elevation.
Family Bathroom
1.87m x 2.49m (6'2" x 8'2")
having low level wc, pedestal wash basin with chrome mixer tap, bath with glass shower screen and thermostatic shower over, shaver point, extractor fan, one central heating radiator, tiling to floor and tiled splashback.
Outside
To the front of the property is a double width block paved driveway providing parking for two vehicles, paved path leads to the rear garden. The rear garden is fully enclosed and features paved patio area and decked area with metal storage shed.
Services
All mains services are believed to be connected to the property.
Measurement
The approximate room sizes are quoted in metric. The imperial equivalent is included in brackets.
Tenure
Freehold - with vacant possession upon completion. Newton Fallowell recommend that purchasers satisfy themselves as to the tenure of the property and we would recommend that they consult a legal representative such as a Solicitor appointed in their purchase.
Note
The services, systems and appliances listed in this specification have not been tested by Newton Fallowell and no guarantee as to their operating ability or their efficiency can be given.
Anti-Money Laundering Regulations – Intending purchasers will be required to provide identification documents via our compliance provider, Coadjute, at a cost of £45 plus VAT per transaction. This will need to be actioned at the offer stage and we would ask for your co-operation in order that there will be no delay in agreeing the sale.
Brochures
Brochure- COUNCIL TAXA payment made to your local authority in order to pay for local services like schools, libraries, and refuse collection. The amount you pay depends on the value of the property.Read more about council Tax in our glossary page.
- Band: B
- PARKINGDetails of how and where vehicles can be parked, and any associated costs.Read more about parking in our glossary page.
- Driveway
- GARDENA property has access to an outdoor space, which could be private or shared.
- Private garden
- ACCESSIBILITYHow a property has been adapted to meet the needs of vulnerable or disabled individuals.Read more about accessibility in our glossary page.
- Ask agent
Rose Tree Lane, Newhall, Swadlincote, Derbyshire, DE11
Add an important place to see how long it'd take to get there from our property listings.
__mins driving to your place
Get an instant, personalised result:
- Show sellers you’re serious
- Secure viewings faster with agents
- No impact on your credit score



Your mortgage
Notes
Staying secure when looking for property
Ensure you're up to date with our latest advice on how to avoid fraud or scams when looking for property online.
Visit our security centre to find out moreDisclaimer - Property reference P5573. The information displayed about this property comprises a property advertisement. Rightmove.co.uk makes no warranty as to the accuracy or completeness of the advertisement or any linked or associated information, and Rightmove has no control over the content. This property advertisement does not constitute property particulars. The information is provided and maintained by Newton Fallowell, Burton on Trent. Please contact the selling agent or developer directly to obtain any information which may be available under the terms of The Energy Performance of Buildings (Certificates and Inspections) (England and Wales) Regulations 2007 or the Home Report if in relation to a residential property in Scotland.
*This is the average speed from the provider with the fastest broadband package available at this postcode. The average speed displayed is based on the download speeds of at least 50% of customers at peak time (8pm to 10pm). Fibre/cable services at the postcode are subject to availability and may differ between properties within a postcode. Speeds can be affected by a range of technical and environmental factors. The speed at the property may be lower than that listed above. You can check the estimated speed and confirm availability to a property prior to purchasing on the broadband provider's website. Providers may increase charges. The information is provided and maintained by Decision Technologies Limited. **This is indicative only and based on a 2-person household with multiple devices and simultaneous usage. Broadband performance is affected by multiple factors including number of occupants and devices, simultaneous usage, router range etc. For more information speak to your broadband provider.
Map data ©OpenStreetMap contributors.





