Land Adj. to, 400-402 Lower Broughton Road, Salford, Greater Manchester M7 2GD
- SIZE
Ask agent
- SECTOR
Residential development for sale
Key features
- Potential Residential Development Site
- Previous Consent For 10 x Flats
- Approximately 600 m2 / 0.15 acre
Description
Online auction - 10th to 11th February 2026
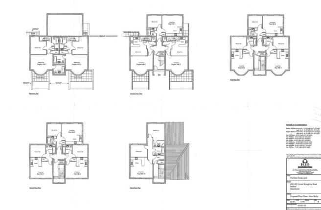
Potential Residential Development Site – Previous Consent For 10 x Flats
Rectangular site extending to approximately 600 m2 / 0.15 acre, situated on the east side of Lower Broughton Road, close to the junction with The Priory and the entrance to The Cliff (Manchester United FC) Training Ground.
The site previously benefitted from planning consent for ten flats within a detached three/four storey building. The consent was granted in May 2007 from Salford Council ref 07/54388/FUL (alt ref 04/48536/FUL).
The plans showed 3x 2 bed flats and 7x 1 bed flats, as follows: -
Ground Floor (& Lower Ground Floor) – 2x 2 bed duplex
Ground Floor – 1x 1 bed
First Floor – 3x 1 bed
Second Floor – 3x 1 bed
Third Floor – 1 x 2bed
All interested parties are advised to consult with Salford Council with regard to their intentions for the site, prior to bidding.
Tenure: Long Leasehold
Title number: LA200556
Length of Lease/Term: 900 years from 29 September 1880
Ground Rent : £1 pa
Service Charge: £
Council Tax Band :
Local Authority: Salford
Finance is available on this lot. For a decision-in-principle visit togethermoney.com/amydip/
IMPORTANT INFORMATION Buying at auction is a contractual commitment, you are legally obliged to buy the lot on the terms of the sale memorandum at the price you bid. If you are the successful bidder, you are required to pay the deposit and auction fees immediately. As agent for the seller, we treat any failure to satisfy your obligations as your repudiation of the contract and the seller may then have a claim against you for breach of contract. You must not bid unless you wish to be bound by the common conditions of auction.
ANTI-MONEY LAUNDERING REGULATIONS In accordance with Anti-Money Laundering Regulations, two forms of identification and confirmation of the source of funding will be required from the successful purchaser. Every effort has been made to confirm the accuracy of the lot details including any defect in the title both with the vendor and their solicitor. Auction House will not be held responsible for any failure to disclose any such defects.
Any purchasers choosing to buy without viewing in person are doing so at their own risk and acknowledge that the auctioneer will not be held responsible for any issues that may arise due to them being unintentionally missed from the video or sales particulars.
Please refer to legal pack for additional fees and the Auction Information document for guidance prior to bidding.
Tenure: Leasehold
Lease Details: LA200556
Administration Fee: 2.5% inc VAT of the purchase price, subject to a minimum of £2500 inc VAT, payable on exchange of contracts.
Disbursements: Please see the legal pack for any disbursements listed that may become payable by the purchaser on completion.
Land Adj. to, 400-402 Lower Broughton Road, Salford, Greater Manchester M7 2GD
NEAREST STATIONS
Distances are straight line measurements from the centre of the postcode- Salford Crescent Station1.3 miles
- Crumpsall Tram Stop1.4 miles
- Woodlands Road Tram Stop1.5 miles
Notes
Disclaimer - Property reference 202512181033sq_98ii. The information displayed about this property comprises a property advertisement. Rightmove.co.uk makes no warranty as to the accuracy or completeness of the advertisement or any linked or associated information, and Rightmove has no control over the content. This property advertisement does not constitute property particulars. The information is provided and maintained by Auction House North West, Commercial. Please contact the selling agent or developer directly to obtain any information which may be available under the terms of The Energy Performance of Buildings (Certificates and Inspections) (England and Wales) Regulations 2007 or the Home Report if in relation to a residential property in Scotland.
Auction Fees: The purchase of this property may include associated fees not listed here, as it is to be sold via auction. To find out more about the fees associated with this property please call Auction House North West, Commercial on 0161 524 6307.
*Guide Price: An indication of a seller's minimum expectation at auction and given as a Guide Price or a range of Guide Prices. This is not necessarily the figure a property will sell for and is subject to change prior to the auction.
Reserve Price: Each auction property will be subject to a Reserve Price below which the property cannot be sold at auction. Normally the Reserve Price will be set within the range of Guide Prices or no more than 10% above a single Guide Price.
Map data ©OpenStreetMap contributors.




