High Street, Huntingdon, PE29

- PROPERTY TYPE
End of Terrace
- BEDROOMS
2
- BATHROOMS
1
- SIZE
Ask agent
- TENUREDescribes how you own a property. There are different types of tenure - freehold, leasehold, and commonhold.Read more about tenure in our glossary page.
Freehold
Key features
- Two Bedroom End of Terraced
- Guide Price £210,000 to £220,000
- Town Centre Location
- Period Cottage
- No Onward Chain
- Utility Room & Cloakroom
- Courtyard Garden Space
- Extensively Renovated Throughout
Description
**Guide Price £210,000 to £220,000**
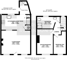
We are proud to bring to market this stunning two bedroom period cottage in central Huntingdon. Location in the heart of Huntingdon, this beautiful period home has been extensively renovated and crafted to preserve it's rustic character charm throughout including exposed beams throughout. The property comprises a well proportioned lounge opening up to the fully fitted kitchen/breakfast room, a separate utility room & cloakroom to the ground floor. The first floor offers two double bedrooms, one of which offers great storage space and a stunning shower room. Outside, the property benefits from an out-house and a courtyard garden area.
For further information or to arrange a viewing, please contact our Huntingdon office.
LOCATION
Huntingdon is one of Cambridgeshire's best-loved locations. It's famous for being the birthplace of Oliver Cromwell, and there are several historic buildings in and around the town, which give it plenty of character. It is a popular location for people of all ages with its great local amenities and riverside walks. In the town itself, you'll find many familiar High Street brands, such as Marks and Spencer's, WH Smiths, Boots, TK Maxx and more. There are also some great pubs and restaurants in the town in particular The Restaurant and Wine Shop at the Old Bridge Hotel is well worth a visit.
The station is located a few minutes walk from the property and has trains running to London King's Cross throughout the day. There is also the central bus terminus located just adjacent which offers a guided bus service into Cambridge City Centre.
FAQS
Tenure: Freehold
Council Tax Band: B
Vendors Onward Movements: No chain
These particulars are for guidance only and do not form part of any contract. Descriptions,
dimensions and references to condition are given in good faith but should not be relied upon as
statements of fact. Measurements and floorplans are approximate. Services, systems and appliances
have not been tested and no warranty is given. The property is offered subject to contract and
availability. Purchasers must provide identification in accordance with Anti-Money Laundering
regulations; a fee of £18 (incl. VAT) per purchaser is payable to Landmark Property services for each
electronic verification check. We may receive a referral fee for any of our recommended service
providers.
Need to sell your property? Please contact us to arrange your free, no obligation Market Appraisal.
For independent whole of market mortgage advice please call the team to book your appointment.
View all our properties at harveyrobinson.co.uk
Rated Exceptional in Best Estate Agent Guide 2024 and 2025
British Property Awards 2023, 2024 and 2025 – Gold Winner
British Property Awards 2025 Regional Silver Winner in East of England
4.9 Star Google Review Rating
EPC Rating: E
Disclaimer
"These particulars are for guidance only and do not form part of any contract. Descriptions, dimensions and references to condition are given in good faith but should not be relied upon as statements of fact. Measurements and floorplans are approximate. Services, systems and appliances have not been tested and no warranty is given. The property is offered subject to contract and availability. Purchasers must provide identification in accordance with Anti-Money Laundering regulations; a fee of £18 (incl. VAT) per purchaser is payable to Landmark Property services for each electronic verification check. We may receive a referral fee for any of our recommended service providers."
- COUNCIL TAXA payment made to your local authority in order to pay for local services like schools, libraries, and refuse collection. The amount you pay depends on the value of the property.Read more about council Tax in our glossary page.
- Band: B
- PARKINGDetails of how and where vehicles can be parked, and any associated costs.Read more about parking in our glossary page.
- Ask agent
- GARDENA property has access to an outdoor space, which could be private or shared.
- Yes
- ACCESSIBILITYHow a property has been adapted to meet the needs of vulnerable or disabled individuals.Read more about accessibility in our glossary page.
- Ask agent
Energy performance certificate - ask agent
High Street, Huntingdon, PE29
Add an important place to see how long it'd take to get there from our property listings.
__mins driving to your place
Get an instant, personalised result:
- Show sellers you’re serious
- Secure viewings faster with agents
- No impact on your credit score
Affordability
Notes
Staying secure when looking for property
Ensure you're up to date with our latest advice on how to avoid fraud or scams when looking for property online.
Visit our security centre to find out moreDisclaimer - Property reference a08113cd-d613-4922-8513-fe46fa67d7c0. The information displayed about this property comprises a property advertisement. Rightmove.co.uk makes no warranty as to the accuracy or completeness of the advertisement or any linked or associated information, and Rightmove has no control over the content. This property advertisement does not constitute property particulars. The information is provided and maintained by Harvey Robinson, Huntingdon. Please contact the selling agent or developer directly to obtain any information which may be available under the terms of The Energy Performance of Buildings (Certificates and Inspections) (England and Wales) Regulations 2007 or the Home Report if in relation to a residential property in Scotland.
*This is the average speed from the provider with the fastest broadband package available at this postcode. The average speed displayed is based on the download speeds of at least 50% of customers at peak time (8pm to 10pm). Fibre/cable services at the postcode are subject to availability and may differ between properties within a postcode. Speeds can be affected by a range of technical and environmental factors. The speed at the property may be lower than that listed above. You can check the estimated speed and confirm availability to a property prior to purchasing on the broadband provider's website. Providers may increase charges. The information is provided and maintained by Decision Technologies Limited. **This is indicative only and based on a 2-person household with multiple devices and simultaneous usage. Broadband performance is affected by multiple factors including number of occupants and devices, simultaneous usage, router range etc. For more information speak to your broadband provider.
Map data ©OpenStreetMap contributors.





