
Land for sale
Leicester Road, Glen Parva, LE2
- PROPERTY TYPE
Land
- BEDROOMS
4
- BATHROOMS
1
- SIZE
9,849 sq ft
915 sq m
Key features
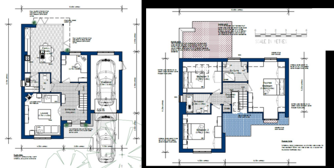
- Planning Reference - 23/0797/FUL - Blaby District Council
- 4 bedroom detached property with planning granted for further residential development
- Planning approved for the erection of two additional, 3 bedroom detached properties
- Vast corner plot
- Extremely popular location close to amenities and transport links
- No onward sales chain
- The current property is 1,334 sqft with the entire plot measuring 0.23 acres
Description
Leicester Road is a true one of a kind opportunity to purchase a sizable four bedroom detached property alongside approved planning permission for the erection of two additional, three bedroom homes on this sizable yet private plot, excellently located within easy reach of Leicester.
The existing house itself sits on a vast plot, set back from the road and opens to a light and welcoming entrance hallway providing access to a spacious yet cosy lounge, a large dining room and, towards the back of the property, a well appointed kitchen/diner overlooking the garden. Upstairs, you will find three double bedrooms, a further single room/study alongside a contemporary family bathroom and WC. Currently, there is a large outbuilding with it's own WC and storage space in the rear garden but should the current development plans be taken forward, this outbuilding would require removal.
The main feature of this stunning plot comes in the form of agreed planning permission for the erection of two stylish and luxurious three bedroom homes with their own private rear gardens and off road parking, full details of which can be found on the Blaby District Council website under the planning reference - 23/0797/FUL.
Leicester Road presents a fantastic and rarely available opportunity to acquire an extremely enviable plot in a highly sought after area of Leicester, close to a wealth of amenities and transport links with Fosse Park retail park and the M1 motorway being just a short drive away, alongside mainline rail access to London and beyond curtesy of Leicester train station. Call now to arrange your viewing of this wonderful home.
Notes
Please note the EPC rating shown only applies to the current property and not the proposed developments.
Plot outlines are for illustrative purposes only.
EPC Rating: D
Parking - Off street
Disclaimer
Disclaimer:
Money Laundering Regulations: Buyers will need to provide identification documents once an offer is accepted. This is required to complete anti-money laundering (AML) checks. Please note, a fee is charged per person for these checks.
Property Details: The information provided does not form part of an offer or contract for the property’s sale.
Measurements: All measurements are for guidance only. We recommend prospective buyers verify dimensions before incurring any expenses.
Appliances and Fixtures: Sheldon Bosley Knight has not tested any equipment, fixtures, or services. Buyers are advised to check the condition and functioning of appliances independently.
Legal Title: Sheldon Bosley Knight has not verified the legal ownership of the property. Buyers should obtain confirmation through their solicitor.
Brochures
Property BrochureLeicester Road, Glen Parva, LE2
NEAREST STATIONS
Distances are straight line measurements from the centre of the postcode- South Wigston Station1.2 miles
- Narborough Station2.2 miles
- Leicester Station3.3 miles
Notes
Disclaimer - Property reference a67aa213-f3cc-4ca9-8054-043f82c7e732. The information displayed about this property comprises a property advertisement. Rightmove.co.uk makes no warranty as to the accuracy or completeness of the advertisement or any linked or associated information, and Rightmove has no control over the content. This property advertisement does not constitute property particulars. The information is provided and maintained by Andrew Granger, Oadby. Please contact the selling agent or developer directly to obtain any information which may be available under the terms of The Energy Performance of Buildings (Certificates and Inspections) (England and Wales) Regulations 2007 or the Home Report if in relation to a residential property in Scotland.
Map data ©OpenStreetMap contributors.







