Skip to content
NEW HOME

Alcalali,Alicante, Spain

£667,080
€765,000
Sunlife Villas, Calpe
PROPERTY TYPE

Villa

BEDROOMS

3

SIZE

Ask agent

Key features

  • Video doorbell
  • Terrace
  • Storage
  • Pool
  • garden
  • Electric Shutters
  • Double glazing
  • Built-in cabinets
  • Automatic irrigation
  • Air conditioning

Description

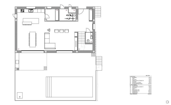
Located in the idyllic village of Alcalal�­, this new build project has been granted planning permission. With a planned built area of 211 m2 on a generous plot of 1,021 m2, this project offers the opportunity to build a beautiful Ibiza-style villa in the peaceful, natural surroundings of the Jal�³n Valley. The project envisages a villa that will be built over two floors. On the ground floor, a spacious living-dining room is planned with an open kitchen equipped with a cooking island, complemented by a pantry, storage space and a guest toilet. The upper floor is designed with three comfortable bedrooms and two stylishly designed bathrooms that combine functionality and aesthetics, one of which is en-suite. The layout of the project has been carefully designed to ensure optimal use of space and to create a natural flow between the different living areas. In addition, the private garden has been designed to allow you to enjoy the outdoors and nature in complete privacy, as well as two terraces where you can experience the Mediterranean climate all year round. There is also an 8 x 4 metre swimming pool, ideal for cooling off during the hot summer months. The outdoor areas will consist of both an open terrace and a covered terrace, so there is always a choice between sun and shade. The plot will be fully fenced, ensuring security and peace of mind, while good connections to nearby main roads guarantee easy access to local amenities and attractions. The villa will be equipped with air conditioning for heating and cooling via air ducts, creating a pleasant indoor climate in every room, regardless of the season. Double glazing, automatic shutters in the bedrooms and the provision of parking and storage space contribute to additional living comfort. This project represents not only the realisation of a home, but a lifestyle in which tranquillity, comfort and modern luxury come together in charming Alcalal�­. With its contemporary architecture and thoughtful amenities, this project is an invitation to enjoy an exceptional living environment every day, where time seems to stand still.

Brochures

Property PDF Link

Alcalali,Alicante, Spain

Approximate location

NEAREST AIRPORTS

Distances are straight line measurements
  • Alicante(International)
    45.3 miles
  • Valencia(International)
    57.0 miles
  • Ibiza/San José(International)
    75.4 miles
  • Murcia-Corvera(International)
    88.9 miles

Advice on buying Spanish property

Learn everything you need to know to successfully find and buy a property in Spain.

About Sunlife Villas, Calpe

Partida Empadrola ll, 6A Calpe, Alicante, Spain, 03710

Real estate experts at your service

Hayley and Richard Evans have thirty years of experience in the UK and Spain helping clients purchase and sell both New Build and resales properties. Richard Evans is also an experienced Mortgage Broker with additional experience in Property Surveying and they run SunLifeVillas, an Estate Agent located in the North Costa Blanca.

Whether you are looking for a property for sale from Denia to Torrevieja, SunLifeVillas will help you every step of the way, ensuring the process is the most exciting, easy, and enjoyable experience you can have.

You can search for your property for sale in Spain on our website, choose the properties that meet your criteria and request more information on them or book an appointment to view them. We also collaborate with lots of other Real Estate companies in Spain, so you can view any property you want to view with one trusted partner, SunLifeVillas.

After you have bought your dream home and enjoying your new pool soaking in the sun, Sun Life Villas can help with everything you need, from plumbers to a pool cleaner, or even an introduction to the local school.

Whatever type of Property for sale in Spain you are looking for, then choose SunLifeVillas, your trusted partner on the Costa Blanca, Call us today or email us!

Notes

These notes are private, only you can see them.

This is a property advertisement provided and maintained by Sunlife Villas, Calpe (reference 247250_SLV15-4322D) and does not constitute property particulars. Whilst we require advertisers to act with best practice and provide accurate information, we can only publish advertisements in good faith and have not verified any claims or statements or inspected any of the properties, locations or opportunities promoted. Rightmove does not own or control and is not responsible for the properties, opportunities, website content, products or services provided or promoted by third parties and makes no warranties or representations as to the accuracy, completeness, legality, performance or suitability of any of the foregoing. We therefore accept no liability arising from any reliance made by any reader or person to whom this information is made available to. You must perform your own research and seek independent professional advice before making any decision to purchase or invest in overseas property.

Email agent

Email agent