3 bedroom semi-detached house for sale
Slad Road, Stroud

- PROPERTY TYPE
Semi-Detached
- BEDROOMS
3
- BATHROOMS
1
- SIZE
1,626 sq ft
151 sq m
- TENUREDescribes how you own a property. There are different types of tenure - freehold, leasehold, and commonhold.Read more about tenure in our glossary page.
Freehold
Key features
- 3 Bedrooms Plus Attic Room
- Valley Views
- Set Over Four Floors
- Parking
- Terraced Garden
- Wonderful Potential
- Plenty of Storage
- Popular Location
- Walking Distance of Town Centre
Description
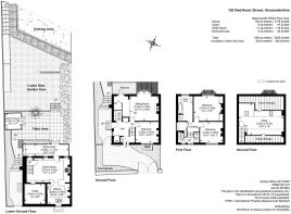
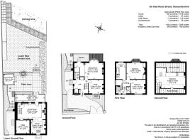
Description - The property is entered at ground level into a spacious entrance hall, providing access to a well-proportioned living room with views across the valley and access to a rear balcony. Also on this level is a versatile double bedroom or additional reception room, along with a cupboard housing the boiler and washing machine, plus further useful storage.
Stairs lead down to the lower ground floor where the accommodation opens into a large L-shaped kitchen/dining room, offering ample storage and worktop space and providing an ideal area for family living and entertaining. A substantial additional storage area is also located off the kitchen. To the rear is a lean-to extension which presents exciting potential to extend further, subject to the necessary consents, and maximise the living space.
The first floor comprises a generous principal bedroom enjoying stunning valley views and ample space for storage, a second double bedroom, a spacious family bathroom with shower over bath, and a small office or storage room.
The second floor features a large attic room with Velux windows, flooding the space with natural light and enjoying elevated views, together with extensive eaves storage.
Externally, the property benefits from a well-proportioned terraced rear garden with attractive valley views, along with off-road parking for two vehicles.
Brochures
Slad Road, Stroud- COUNCIL TAXA payment made to your local authority in order to pay for local services like schools, libraries, and refuse collection. The amount you pay depends on the value of the property.Read more about council Tax in our glossary page.
- Band: C
- PARKINGDetails of how and where vehicles can be parked, and any associated costs.Read more about parking in our glossary page.
- Off street
- GARDENA property has access to an outdoor space, which could be private or shared.
- Yes
- ACCESSIBILITYHow a property has been adapted to meet the needs of vulnerable or disabled individuals.Read more about accessibility in our glossary page.
- Ask agent
Slad Road, Stroud
Add an important place to see how long it'd take to get there from our property listings.
__mins driving to your place
Get an instant, personalised result:
- Show sellers you’re serious
- Secure viewings faster with agents
- No impact on your credit score
Your mortgage
Notes
Staying secure when looking for property
Ensure you're up to date with our latest advice on how to avoid fraud or scams when looking for property online.
Visit our security centre to find out moreDisclaimer - Property reference 34360713. The information displayed about this property comprises a property advertisement. Rightmove.co.uk makes no warranty as to the accuracy or completeness of the advertisement or any linked or associated information, and Rightmove has no control over the content. This property advertisement does not constitute property particulars. The information is provided and maintained by Murrays Estate Agents, Stroud. Please contact the selling agent or developer directly to obtain any information which may be available under the terms of The Energy Performance of Buildings (Certificates and Inspections) (England and Wales) Regulations 2007 or the Home Report if in relation to a residential property in Scotland.
*This is the average speed from the provider with the fastest broadband package available at this postcode. The average speed displayed is based on the download speeds of at least 50% of customers at peak time (8pm to 10pm). Fibre/cable services at the postcode are subject to availability and may differ between properties within a postcode. Speeds can be affected by a range of technical and environmental factors. The speed at the property may be lower than that listed above. You can check the estimated speed and confirm availability to a property prior to purchasing on the broadband provider's website. Providers may increase charges. The information is provided and maintained by Decision Technologies Limited. **This is indicative only and based on a 2-person household with multiple devices and simultaneous usage. Broadband performance is affected by multiple factors including number of occupants and devices, simultaneous usage, router range etc. For more information speak to your broadband provider.
Map data ©OpenStreetMap contributors.




