
2 bedroom maisonette for sale
Station Road, Swanage, Dorset, BH19

- PROPERTY TYPE
Maisonette
- BEDROOMS
2
- BATHROOMS
1
- SIZE
1,097 sq ft
102 sq m
Key features
- Spacious town centre 1st/2nd floor maisonette
- Own ground floor entrance
- 2 bedrooms
- Open plan lounge/diner and kitchen
- Bathroom/W.C.
- Separate W.C.
- Electric heating
- Part double glazed
- In need of further updating
- Being sold with NO FORWARD CHAIN!
Description
DESCRIPTION: A first and second floor maisonette with its own ground floor entrance within a building of brick elevations under a slate roof. The property has been used as a second home and for family and friends use by the current owner and would benefit from some further updating throughout.
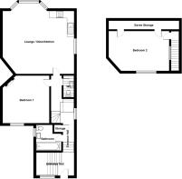
ACCOMMODATION:
ENTRANCE LOBBY: Wooden front door. Stairs to:
FIRST FLOOR
LANDING (S & E): Split-level, one double-glazed window, cupboard housing pressurized hot water cylinder, under stairs recess, telephone point, electric wall heater.
BATHROOM/W.C.: Panelled bath with shower over, wash basin with mixer tap, low level w.c., part tiled walls, towel radiator.
SEPARATE W.C.: Wash basin with tiled splash back, w.c., extractor unit.
BEDROOM 1 (S): 13'6" (4.12m) x 12'7" (3.85m). Feature tiled fireplace, double glazed window, electric wall heater.
LOUNGE/DINER/KITCHEN (N & E): 21'1" (6.44m) x 20'5" (6.22m). Single drainer stainless steel sink unit with mixer tap and work surface with drawers, cupboards, space for fridge under, electric oven and hob, tiled splash backs, 2 electric wall heaters, TV point, bay window.
SECOND FLOOR
LANDING:
BEDROOM 2 (S): 17'3" (5.27m) max. x 11'3" (3.43m) max. Sloping ceilings, double glazed window with a southerly aspect and views over the town, electric wall heater, eaves access.
TENURE & MAINTENANCE: Leasehold, we are advised for a term of 164 years from 11/03/1985 (extended in 2010) at a ground rent of £25 per annum. Maintenance and buildings insurance is shared 50/50 with the ground floor premises on an 'as and when' basis. The lease states not to use the demised premises "for any purpose other than as a private residential maisonette in the occupation of one family only". Pets only permitted with prior written permission of the Landlord.
ADDITIONAL INFORMATION: Property type: Maisonette. Construction: Standard. Electric supply: Mains. Water supply: Mains. Heating: Electric. Broadband: FTTC ( signal/coverage: Please see:
COUNCIL TAX: Band B: £2091.79 payable for 2025/26 (excluding discounts, or additional home premium).
VIEWING: By appointment only please, with the Agents MILES & SON. Our office is normally open Monday-Friday 9am-5pm and Saturday 9am-3pm April-September inclusive, 9am-12.30 pm at other times. Lunchtimes included.
The Property Misdescription Act 1991. These particulars have been prepared to the best of our knowledge and belief in accordance with the Act and they shall not constitute an offer or the basis of any contract. Our inspection of the property was purely to prepare these particulars and no form of survey, structural or otherwise was carried out. Defects and/or other matters may be revealed on a survey carried out on your instructions. Internal measurements and site measurements where given are approximate and intended only as a guide as obstacles may well have prevented accuracy. Floor plans are not to scale and are for guidance only. You are advised to check the availability of this property before travelling to view. An appointment to view should be made and all negotiations conducted through Miles & Son.
- COUNCIL TAXA payment made to your local authority in order to pay for local services like schools, libraries, and refuse collection. The amount you pay depends on the value of the property.Read more about council Tax in our glossary page.
- Ask agent
- PARKINGDetails of how and where vehicles can be parked, and any associated costs.Read more about parking in our glossary page.
- No parking
- GARDENA property has access to an outdoor space, which could be private or shared.
- Ask agent
- ACCESSIBILITYHow a property has been adapted to meet the needs of vulnerable or disabled individuals.Read more about accessibility in our glossary page.
- Ask agent
Station Road, Swanage, Dorset, BH19
Add an important place to see how long it'd take to get there from our property listings.
__mins driving to your place
Get an instant, personalised result:
- Show sellers you’re serious
- Secure viewings faster with agents
- No impact on your credit score
Your mortgage
Notes
Staying secure when looking for property
Ensure you're up to date with our latest advice on how to avoid fraud or scams when looking for property online.
Visit our security centre to find out moreDisclaimer - Property reference 4287. The information displayed about this property comprises a property advertisement. Rightmove.co.uk makes no warranty as to the accuracy or completeness of the advertisement or any linked or associated information, and Rightmove has no control over the content. This property advertisement does not constitute property particulars. The information is provided and maintained by Miles & Son, Swanage. Please contact the selling agent or developer directly to obtain any information which may be available under the terms of The Energy Performance of Buildings (Certificates and Inspections) (England and Wales) Regulations 2007 or the Home Report if in relation to a residential property in Scotland.
*This is the average speed from the provider with the fastest broadband package available at this postcode. The average speed displayed is based on the download speeds of at least 50% of customers at peak time (8pm to 10pm). Fibre/cable services at the postcode are subject to availability and may differ between properties within a postcode. Speeds can be affected by a range of technical and environmental factors. The speed at the property may be lower than that listed above. You can check the estimated speed and confirm availability to a property prior to purchasing on the broadband provider's website. Providers may increase charges. The information is provided and maintained by Decision Technologies Limited. **This is indicative only and based on a 2-person household with multiple devices and simultaneous usage. Broadband performance is affected by multiple factors including number of occupants and devices, simultaneous usage, router range etc. For more information speak to your broadband provider.
Map data ©OpenStreetMap contributors.









