
2 bedroom terraced house for rent
Albert Street, Whitstable

Letting details
- Let available date:
- 02/03/2026
- Deposit:
- £1,615A deposit provides security for a landlord against damage, or unpaid rent by a tenant.Read more about deposit in our glossary page.
- Min. Tenancy:
- Ask agent How long the landlord offers to let the property for.Read more about tenancy length in our glossary page.
- Let type:
- Long term
- Furnish type:
- Furnished
- Council Tax:
- Ask agent
- PROPERTY TYPE
Terraced
- BEDROOMS
2
- BATHROOMS
1
- SIZE
699 sq ft
65 sq m
Key features
- Victorian Terraced House
- Desirable Central Location
- Close to High Street, Shops and Beach
- Heart of Conservation Area
- 0.6 Miles to Whitstable Station
- 2 Double Bedrooms
- Courtyard Garden
- Fully Furnished
- No Smokers
- Available from early March
Description
The stylish and comfortably proportioned accommodation is arranged on the ground floor to provide a sitting room with bay window, dining room, contemporary kitchen, and a shower room. To the first floor there are two double bedrooms.
The courtyard garden has been designed for ease of maintenance and incorporates a timber storage shed and pedestrian rear access via Stream Walk.
No smokers. Furnishings included. Available from early March.
Location - Albert Street is a highly desirable location within the town's sought after conservation area in central Whitstable and easily accessible to shops, bus routes and station. Whitstable is an increasingly popular and fashionable town by the sea offering a good range of amenities including an array of cafe bars, independent shops, highly regarded restaurants, watersports facilities and working harbour. The mainline railway station is just moments away, providing fast and frequent links to London (Victoria) approximately 80 mins. The high speed Javelin service provides access to London (St Pancras) with a journey time of approximately 73 mins. The A299 is accessible providing a dual carriageway link to the M2/A2 giving access to the channel ports and connecting motorway network.
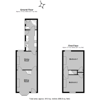
Accommodation - The accommodation and approximate measurements (taken at maximum points) are:
Ground Floor -
• Sitting Room - 3.90m x 3.62m (12'10" x 11'11") -
• Dining Room - 3.62m x 3.30m (11'10" x 10'9" ) -
• Kitchen - 3.75m x 1.97m (12'4" x 6'6") -
• Bathroom - 1.97 x 1.77 (6'5" x 5'9") -
First Floor -
• Bedroom 1 - 3.34m x 3.62m (10'11" x 11'11") -
• Bedroom 2 - 3.23m x 3.62m (10'7" x 11'11") -
Outside -
• Courtyard Garden -
Holding Deposit - £323 (or equivalent to 1 weeks rent)
Tenancy Deposit - £1,615 (or equivalent to 5 weeks rent)
Tenancy Information - For full details of the costs associated with renting a property through Christopher Hodgson estate Agents, please visit our website
Client Money Protection - Provided by ARLA
Independent Redress Scheme - Christopher Hodgson Estate Agents are members of The Property Ombudsman
Brochures
Albert Street, Whitstable- COUNCIL TAXA payment made to your local authority in order to pay for local services like schools, libraries, and refuse collection. The amount you pay depends on the value of the property.Read more about council Tax in our glossary page.
- Band: B
- PARKINGDetails of how and where vehicles can be parked, and any associated costs.Read more about parking in our glossary page.
- Ask agent
- GARDENA property has access to an outdoor space, which could be private or shared.
- Yes
- ACCESSIBILITYHow a property has been adapted to meet the needs of vulnerable or disabled individuals.Read more about accessibility in our glossary page.
- Ask agent
Albert Street, Whitstable
Add an important place to see how long it'd take to get there from our property listings.
__mins driving to your place



Notes
Staying secure when looking for property
Ensure you're up to date with our latest advice on how to avoid fraud or scams when looking for property online.
Visit our security centre to find out moreDisclaimer - Property reference 32857293. The information displayed about this property comprises a property advertisement. Rightmove.co.uk makes no warranty as to the accuracy or completeness of the advertisement or any linked or associated information, and Rightmove has no control over the content. This property advertisement does not constitute property particulars. The information is provided and maintained by Christopher Hodgson, Whitstable. Please contact the selling agent or developer directly to obtain any information which may be available under the terms of The Energy Performance of Buildings (Certificates and Inspections) (England and Wales) Regulations 2007 or the Home Report if in relation to a residential property in Scotland.
*This is the average speed from the provider with the fastest broadband package available at this postcode. The average speed displayed is based on the download speeds of at least 50% of customers at peak time (8pm to 10pm). Fibre/cable services at the postcode are subject to availability and may differ between properties within a postcode. Speeds can be affected by a range of technical and environmental factors. The speed at the property may be lower than that listed above. You can check the estimated speed and confirm availability to a property prior to purchasing on the broadband provider's website. Providers may increase charges. The information is provided and maintained by Decision Technologies Limited. **This is indicative only and based on a 2-person household with multiple devices and simultaneous usage. Broadband performance is affected by multiple factors including number of occupants and devices, simultaneous usage, router range etc. For more information speak to your broadband provider.
Map data ©OpenStreetMap contributors.





