
6 bedroom barn conversion for sale
Canal Road, Thrupp, OX5

- PROPERTY TYPE
Barn Conversion
- BEDROOMS
6
- BATHROOMS
2
- SIZE
Ask agent
- TENUREDescribes how you own a property. There are different types of tenure - freehold, leasehold, and commonhold.Read more about tenure in our glossary page.
Freehold
Key features
- Barn conversion
- Annexe
- 6 Bedrooms, 2 with en ensuite
- Kitchen
- Three reception rooms
- Utility
- Bathroom
- Ample parking
- Good size rear garden
- Double garage
Description
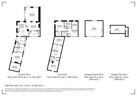
Accommodation comprises entrance hall, dining room, sitting room with French doors opening onto gardens, Kitchen/family room enjoying views over the rear garden.
On the first floor there are three bedrooms, master with ensuite, with all bedrooms enjoying views over the garden.
Annexe, on the ground floor, living room with open fire, cloak room, kitchen, double bedroom. On the first floor, two bedrooms, one to include shower room.
Detached double garage with store room over. Ample driveway parking for several vehicles.
Garden, c.1/2 acre plot to include patio areas, with remainder laid to lawn with mature planting and pond.
Material information to note:
- Mains gas, electric and water connected.
- According to OFCOM checker standard & superfast broadband.
- According to OFCOM checker indicates coverage good outdoor and in home with EE, poor to none with O2, good outdoor with Three and Variable outdoor with Vodafone.
- Properties built pre-2000 may contain asbestos in certain materials used in their construction or in subsequent building work. Examples of these materials are; Artex, vinyl tiles, sheet boards, corrugated roofing, pipework and lagging/insulation. These are generally considered safe unless disturbed but prospective buyers must take their own advice.
- Located within conservation area
- For information on restrictive covenants/restrictions please contact the office.
Council Tax Band: F
EPC Rating: C
Brochures
Brochure 1- COUNCIL TAXA payment made to your local authority in order to pay for local services like schools, libraries, and refuse collection. The amount you pay depends on the value of the property.Read more about council Tax in our glossary page.
- Band: F
- PARKINGDetails of how and where vehicles can be parked, and any associated costs.Read more about parking in our glossary page.
- Yes
- GARDENA property has access to an outdoor space, which could be private or shared.
- Yes
- ACCESSIBILITYHow a property has been adapted to meet the needs of vulnerable or disabled individuals.Read more about accessibility in our glossary page.
- Ask agent
Canal Road, Thrupp, OX5
Add an important place to see how long it'd take to get there from our property listings.
__mins driving to your place
Get an instant, personalised result:
- Show sellers you’re serious
- Secure viewings faster with agents
- No impact on your credit score



Your mortgage
Notes
Staying secure when looking for property
Ensure you're up to date with our latest advice on how to avoid fraud or scams when looking for property online.
Visit our security centre to find out moreDisclaimer - Property reference RX701225. The information displayed about this property comprises a property advertisement. Rightmove.co.uk makes no warranty as to the accuracy or completeness of the advertisement or any linked or associated information, and Rightmove has no control over the content. This property advertisement does not constitute property particulars. The information is provided and maintained by Thomas Merrifield, Kidlington. Please contact the selling agent or developer directly to obtain any information which may be available under the terms of The Energy Performance of Buildings (Certificates and Inspections) (England and Wales) Regulations 2007 or the Home Report if in relation to a residential property in Scotland.
*This is the average speed from the provider with the fastest broadband package available at this postcode. The average speed displayed is based on the download speeds of at least 50% of customers at peak time (8pm to 10pm). Fibre/cable services at the postcode are subject to availability and may differ between properties within a postcode. Speeds can be affected by a range of technical and environmental factors. The speed at the property may be lower than that listed above. You can check the estimated speed and confirm availability to a property prior to purchasing on the broadband provider's website. Providers may increase charges. The information is provided and maintained by Decision Technologies Limited. **This is indicative only and based on a 2-person household with multiple devices and simultaneous usage. Broadband performance is affected by multiple factors including number of occupants and devices, simultaneous usage, router range etc. For more information speak to your broadband provider.
Map data ©OpenStreetMap contributors.





