Trenant Vale, Wadebridge PL27

- PROPERTY TYPE
Detached
- BEDROOMS
5
- BATHROOMS
2
- SIZE
Ask agent
- TENUREDescribes how you own a property. There are different types of tenure - freehold, leasehold, and commonhold.Read more about tenure in our glossary page.
Freehold
Key features
- 5 Bedroom Spacious Accommodation
- Refitted And Refurbished Kitchen And Bathroom
- Oil Fired Central Heating
- Double Glazed UPVC Windows/Skylights Within The Main Dwelling
- Useful Converted Outbuilding/Home Office/Studio/Air Bnb Etc.
- Excellent Parking And Turning
- Lovely Tucked Away Location At Trenant
- Easy Walk To The Schools And Sports Centre
Description
A fantastic opportunity to purchase a 5 bedroom detached house with excellent parking facilities, pleasant garden and useful garden annexe situated in the favoured residential area of Wadebridge. Freehold. Council Tax Band tbc. EPC rating E.
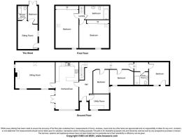
Little Trenant certainly defies its name and provides 5 bedroom accommodation within the main dwelling together with superb fitted spacious kitchen/dining room with separate living room off. As can be seen on the floorplan and video it offers very adaptable accommodation with 3 of the bedrooms and shower room on the ground floor and separate access to side together with 2 further first floor bedrooms and main bathroom. In addition to this the property has a most useful converted outbuilding (The Shed) which we feel is ideal for a number of uses obviously subject to the purchasers wishes. The whole property is situated in a lovely quiet area of town, tucked away at the top of Trenant and as such is within an easy walk of the schools, Sports Centre and of course down through Trenant itself across to the park, tennis courts etc. and into town.
The accommodation comprises with all measurements being approximate:-
UPVC Double Glazed Entrance Door
To
Entrance Hall
Fitted matwell. Central heating radiator.
Utility/Boiler Room - 2.82 m x 2.21 m
Radiator. Grant oil fired central heating boiler. Electric circuit breakers. Space and plumbing for washing machine and tumble dryer with worktop over. Double glazed window to front.
Kitchen/Dining Room - 8.46 m x 3.40 m
Superb modern fitted kitchen with twin fitted ovens, induction hob with glass splashback and Neff extractor hood over. One and a half bowl stainless steel sink with mixer tap over. Integral dishwasher. Integral fridge/freezer. All cupboards and drawers soft closing. Attractive composite worktops with matching splashbacks. 2 Velux skylights and a lovely light dual aspect room. Radiator. Window to front and French doors to garden.
Lounge - 3.96 m x 5.99 m
Skylight. Dual aspect room. Radiator. Multifuel stove on slate hearth.
Bedroom 4 - 4.6 m x 2.34 m
Window to front. Radiator.
Bedroom 5 - 2.13 m x 3.35 m
Window to front. Radiator.
Steps leading down from inner hallway to
Bedroom 3 - 3.23 m x 3.05 m
Radiator. Window and Fully glazed French door to front.
Shower Room
Refitted with attractive fully tiled walls and floors. Walk in shower. Low level w.c. Wash hand basin.
First Floor
Landing
Storage space.
Main Bathroom
Roca white suite comprising panelled bath with fully tiled surround. Low level w.c. Wash hand basin with tiled surround. Velux double glazed skylight. Heated towel rail.
Bedroom 1 - 4.27 m x 4.45 m
Dual aspect windows, one Velux and one window to front. Beautifully fitted full height wall length wardrobes/storage cupboards.
Bedroom 2 - 5.0 m x 3.4 m
Window to front and Velux skylight window. 2 radiators. T.V. point. Beautifully fitted full height wall length wardrobes.
Outside
The property is approached over a driveway shared with Little Trenant Cottage with chipping driveway as can be seen on the video with excellent parking and turning space leading to a large concrete hard standing with parking for at least 3 vehicles with water point and electric charging point.
Surrounding the garden is a natural stone wall with a lovely lawned area, paved pathway and steps leading up to
The Shed - 3.05 m x 4.14 m
A lovely bed/sitting room and ideal for annexe/air bnb style accommodation with single glazed window to front.
En-Suite Shower
With low level w.c. Shower cubicle. Wash hand basin.
Small Bunk Room - 2.59 m x 1.52 m
With timber French doors to rear garden.
Outside Storage Shed
With electricity connected.
Services
Mains water, drainage and electricity are connected to the property.
What3words: ///cupboards.heap.plots
For further information please contact our Wadebridge office.
- COUNCIL TAXA payment made to your local authority in order to pay for local services like schools, libraries, and refuse collection. The amount you pay depends on the value of the property.Read more about council Tax in our glossary page.
- Ask agent
- PARKINGDetails of how and where vehicles can be parked, and any associated costs.Read more about parking in our glossary page.
- Yes
- GARDENA property has access to an outdoor space, which could be private or shared.
- Yes
- ACCESSIBILITYHow a property has been adapted to meet the needs of vulnerable or disabled individuals.Read more about accessibility in our glossary page.
- Ask agent
Trenant Vale, Wadebridge PL27
Add an important place to see how long it'd take to get there from our property listings.
__mins driving to your place
Get an instant, personalised result:
- Show sellers you’re serious
- Secure viewings faster with agents
- No impact on your credit score


Your mortgage
Notes
Staying secure when looking for property
Ensure you're up to date with our latest advice on how to avoid fraud or scams when looking for property online.
Visit our security centre to find out moreDisclaimer - Property reference S1522476. The information displayed about this property comprises a property advertisement. Rightmove.co.uk makes no warranty as to the accuracy or completeness of the advertisement or any linked or associated information, and Rightmove has no control over the content. This property advertisement does not constitute property particulars. The information is provided and maintained by Cole Rayment & White, Wadebridge. Please contact the selling agent or developer directly to obtain any information which may be available under the terms of The Energy Performance of Buildings (Certificates and Inspections) (England and Wales) Regulations 2007 or the Home Report if in relation to a residential property in Scotland.
*This is the average speed from the provider with the fastest broadband package available at this postcode. The average speed displayed is based on the download speeds of at least 50% of customers at peak time (8pm to 10pm). Fibre/cable services at the postcode are subject to availability and may differ between properties within a postcode. Speeds can be affected by a range of technical and environmental factors. The speed at the property may be lower than that listed above. You can check the estimated speed and confirm availability to a property prior to purchasing on the broadband provider's website. Providers may increase charges. The information is provided and maintained by Decision Technologies Limited. **This is indicative only and based on a 2-person household with multiple devices and simultaneous usage. Broadband performance is affected by multiple factors including number of occupants and devices, simultaneous usage, router range etc. For more information speak to your broadband provider.
Map data ©OpenStreetMap contributors.




