Skip to content

5 bedroom villa for sale

Provence-Alps-Cote d`Azur, Var, Hyères, France

£1,829,100
€2,100,000
John D Wood International, RoW
PROPERTY TYPE

Villa

BEDROOMS

5

BATHROOMS

3

SIZE

Ask agent

Key features

  • 153 m
  • 1240.8 m Plot size
  • Swimming pool

Description

On the beautiful peninsula of Giens in Hyères, sale in future state of completion, villa in a private and secure estate.

Les Jardins d’Adonis invite you to acquire this exceptional new villa, in the heart of the peaceful and sought-after district of La Madrague.

Villa "Klein" offers a privileged living environment, just a few steps from coves combining tranquility and high-end amenities with lovely views of the sea.

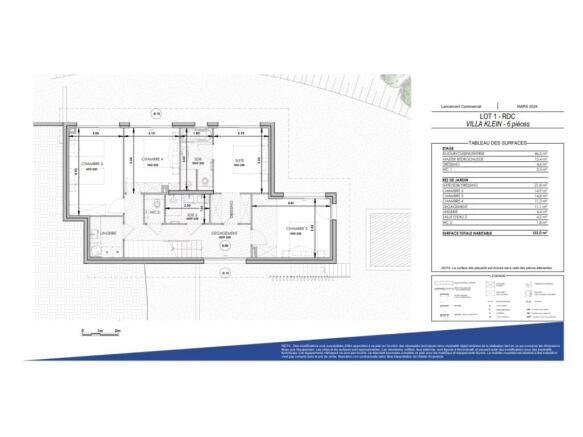
This contemporary architect-designed villa of 153 m², set on a vast plot of 1240 m², has been designed to offer absolute comfort and unparalleled quality of life.

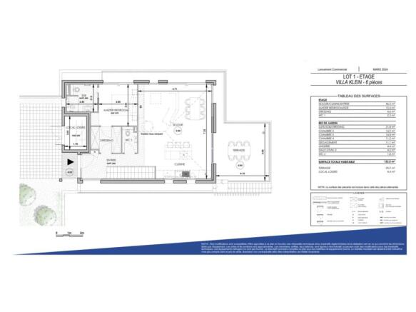
Upstairs, a spacious 46 m² living room with an American kitchen, to be arranged according to your preferences, opens onto a pleasant terrace with stairs leading to the garden and the 3m x 5m pool.

A master bedroom with dressing room and en-suite bathroom complete this living space.

On the ground floor, you will find three bright bedrooms as well as a second suite with dressing room and bathroom. In addition, a laundry area and a shower room complement this villa, offering functional and well-thought-out spaces to meet all your needs.

For your convenience, the property has two private parking spaces, ensuring practicality and security on a daily basis.

Do not miss this unique opportunity to acquire an exceptional residence in a preserved and privileged environment, in the heart of the splendid Peninsula of Giens.

Work starts in September 2025, with estimated delivery in the end of 2026.

Reduced notary fees, contact us for more information, and possible site visits.

The "Les Jardins d'Adonis" program consists of 6 lots, 5 of which are available for sale.

Amenities:
• Private road
• Thermal Regulation 2012
• Two private parking spaces, bioclimatic pergola with VE charging point including one PMR
• Standards and PMR access from the parking space
• Dark gray aluminum joinery
• Electric roller shutters with integrated TITAN chest into the structure
• Heating and cooling by ducted monosplit and hot water production
• Gardens according to the landscaping plan of the permit
• High-end amenities, with customization advised by our interior architect.

NON-CONTRACTUAL PHOTOS & VISUALS

Virginie Bertrand-Bondil
COLDWELL BANKER BEAU RIVAGE
Professional liability insurance RCP GALIAN
+33 (0)6 24 29 28 59
virginie.

“The property is located in an area subject to compulsory brush clearance.
Information on the risks to which this property is exposed is available on the Géorisques website:

Provence-Alps-Cote d`Azur, Var, Hyères, France

NEAREST AIRPORTS

Distances are straight line measurements
  • Toulon (Le Palyvestre)(International)
    5.7 miles
  • Provence(International)
    53.9 miles
  • Nice Côte d`Azur(International)
    71.6 miles
  • Nîmes (Garons)(International)
    99.1 miles

Advice on buying French property

Learn everything you need to know to successfully find and buy a property in France.

About John D Wood International, RoW

Established in Mayfair in 1872, John D Wood & Co. has 150 years experience specialising in selling and letting properties in London, the South of England, country and internationally, as well as staff relocation services and interior consultancy, and are committed to offering a bespoke service, a strategic approach to marketing, and local expertise that has been trusted for generations.

When we promise the world, we mean it.

We cover 30+ countries through a network of strategically handpicked international partner agents who are leading agents in their markets.

Together we offer an international reach, with local expertise, and a commitment to excellence. Whether you're seeking a rural holiday home, a beachfront villa, or a city centre apartment, we can help make your dream a reality.

Notes

These notes are private, only you can see them.

This is a property advertisement provided and maintained by John D Wood International, RoW (reference 18977791_13172569) and does not constitute property particulars. Whilst we require advertisers to act with best practice and provide accurate information, we can only publish advertisements in good faith and have not verified any claims or statements or inspected any of the properties, locations or opportunities promoted. Rightmove does not own or control and is not responsible for the properties, opportunities, website content, products or services provided or promoted by third parties and makes no warranties or representations as to the accuracy, completeness, legality, performance or suitability of any of the foregoing. We therefore accept no liability arising from any reliance made by any reader or person to whom this information is made available to. You must perform your own research and seek independent professional advice before making any decision to purchase or invest in overseas property.

Email agent

Email agent