Skip to content

1 bedroom apartment for sale

Lisbon, Lisbon, Portugal

£4,094,128
€4,720,000
John D Wood International, RoW
PROPERTY TYPE

Apartment

BEDROOMS

1

BATHROOMS

2

SIZE

Ask agent

Key features

  • Air Conditioning
  • Condition: Used

Description

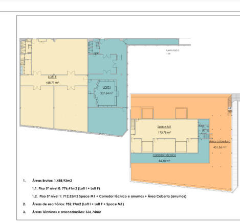
On the 5th and last floor of the building, two adjoining lofts, which can be used as two flats with a few alterations, with fantastic frontal river views.

An apartment block with 308m‘, ceiling height 3.50m, 42m of windows, views of the River “Mar da Prata”, in a residential and services building. and, an adjoining apartment block with 1,181.29m’, ceiling height between 3.50m and 3.90m, with 4 skylights of around 12m' each distributed throughout the space, and an upper floor with a mezzanine, ammos and attic.

Potential for a rooftop.

The building has 2 entrances, with 2 lifts and 2 freight lifts each. One entrance faces Rio with a public car park (free) and the rear entrance has a bus stop at the door and is 200 metres from the train station with links to Gare do Oriente (new area), Sta. Apolônia (old area) and Entrecampos (new area).

The two lofts, currently used as offices, can be used as flats as they have two licences, one for housing and the other for services.

The sale price for the two units together is €4,720,000. This price includes furnishings valued at €303,000, duly inventoried, which is negotiable, in that the prospective buyer may partially waive this, in agreement with the prospective seller, with some flexibility for negotiation.

In Marvila, in Braço de Prata, Matinha, located south of Parque das Nações in Lisbon, near the Marina, between the railway line (Linha do Norte) and the Tagus River.

Area with excellent access to Lisbon's main roads, motorways and airport.
- REF: CB08-231018

Lisbon, Lisbon, Portugal

NEAREST AIRPORTS

Distances are straight line measurements
  • Lisbon(International)
    2.3 miles

Advice on buying Portuguese property

Learn everything you need to know to successfully find and buy a property in Portugal.

About John D Wood International, RoW

Established in Mayfair in 1872, John D Wood & Co. has 150 years experience specialising in selling and letting properties in London, the South of England, country and internationally, as well as staff relocation services and interior consultancy, and are committed to offering a bespoke service, a strategic approach to marketing, and local expertise that has been trusted for generations.

When we promise the world, we mean it.

We cover 30+ countries through a network of strategically handpicked international partner agents who are leading agents in their markets.

Together we offer an international reach, with local expertise, and a commitment to excellence. Whether you're seeking a rural holiday home, a beachfront villa, or a city centre apartment, we can help make your dream a reality.

Notes

These notes are private, only you can see them.

This is a property advertisement provided and maintained by John D Wood International, RoW (reference 20238584_14193298) and does not constitute property particulars. Whilst we require advertisers to act with best practice and provide accurate information, we can only publish advertisements in good faith and have not verified any claims or statements or inspected any of the properties, locations or opportunities promoted. Rightmove does not own or control and is not responsible for the properties, opportunities, website content, products or services provided or promoted by third parties and makes no warranties or representations as to the accuracy, completeness, legality, performance or suitability of any of the foregoing. We therefore accept no liability arising from any reliance made by any reader or person to whom this information is made available to. You must perform your own research and seek independent professional advice before making any decision to purchase or invest in overseas property.

Email agent

Email agent