Studio flat for sale
Monaco
- PROPERTY TYPE
Flat
- SIZE
Ask agent
Key features
- 114 m
Description
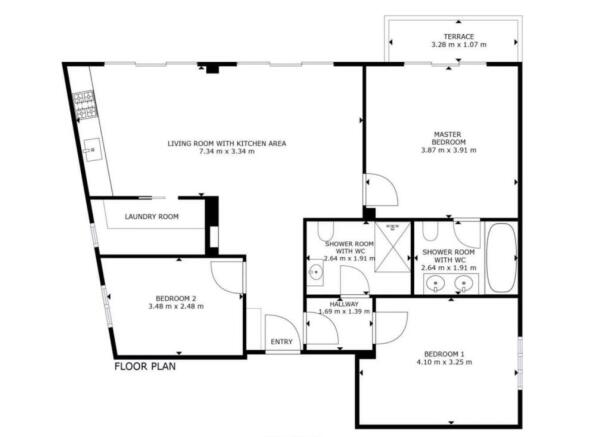
This fully renovated 4-room apartment is composed of an entrance, living/dining room, an open American kitchen, a master bedroom with its bathroom, a bedroom with shower room and a third bedroom, a laundry room.
1 parking space near the building.
Currently rented up to 9,500 euros plus charges.
Monaco
Notes
This is a property advertisement provided and maintained by John D Wood International, RoW (reference 20317224_14256431) and does not constitute property particulars. Whilst we require advertisers to act with best practice and provide accurate information, we can only publish advertisements in good faith and have not verified any claims or statements or inspected any of the properties, locations or opportunities promoted. Rightmove does not own or control and is not responsible for the properties, opportunities, website content, products or services provided or promoted by third parties and makes no warranties or representations as to the accuracy, completeness, legality, performance or suitability of any of the foregoing. We therefore accept no liability arising from any reliance made by any reader or person to whom this information is made available to. You must perform your own research and seek independent professional advice before making any decision to purchase or invest in overseas property.




