Umbria, Perugia, Cannara, Italy
- PROPERTY TYPE
Farm House
- BEDROOMS
4
- BATHROOMS
5
- SIZE
5,834 sq ft
542 sq m
Key features
- Farm House
- Swimming pool
- Land
- coppice and mixed-use forest
Description
This exclusive residence is truly one of a kind, conceived and custom-built by its current owners, who are the principals of a renowned international architecture and interior design studio.
The main farmhouse, originally a cluster of various buildings, was completely renovated less than ten years ago; many antique details have been preserved, such as the stunning exposed stone walls, niches, and, where possible, some original beams.
The restoration is a perfect fusion of traditional Italian architecture and contemporary design.
The result is a turnkey property of the highest caliber, sold furnished with refined pieces from the finest Italian and international brands, alongside numerous custom-made furnishings crafted by skilled local artisans.
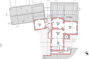
Among the highlights of the residence is the entire living area on the lower floor. The open-plan kitchen, featuring a spacious island, flows naturally and seamlessly into the vast southeast-facing porch (50 sqm), creating a harmonious indoor-outdoor living experience, enhanced by the presence of the beautiful infinity pool.
Indeed, this residence is a paradise for chefs and food enthusiasts, boasting three distinct areas for meal preparation: the main open-plan kitchen, a large separate back kitchen—also equipped with a sink and stove and connected to the pantry and laundry room—and the summer kitchen on the porch with a barbecue and fireplace.
On the opposite side, the living space continues into a generous dining room and a magnificent lounge with a truly unique fireplace, an architectural focal point that elevates the entire environment. Completing the ground floor are a wine cellar and an elegant guest bathroom.
On the upper floor, the residence offers a large study, which can also serve as an additional bedroom, and an imposing master suite of exceptional size.
This suite includes, beyond the already spacious bedroom with terrace, a large office and a bathroom with a walk-in closet spanning over 40 square meters.
Additionally, there are three more bedrooms with en-suite bathrooms, ideal for guests, located on the upper floor to ensure complete privacy.
The property is completed by a large garage and a landscaped garden (approximately 10,000 sqm) featuring centuries-old olive trees and a variety of fruit trees.
State of repair
The main farmhouse - originally from the medieval era - was completely renovated less than ten years ago, with meticulous attention to every detail and full compliance with the latest seismic regulations. The restoration is a perfect fusion of traditional Italian architecture and contemporary design.
It is a property distinguished by its "flow," blending original features of the ancient building - masterfully restored - with more innovative materials and finishes, such as elegant light resin flooring, glass and Corten steel elements, and exposed concrete inserts.
The result is a turnkey property of the highest level, sold fully furnished with refined pieces from the best Italian and international design brands.
Utilities
The property is connected to the aqueduct and electrical grid and features an underground LPG gas tank.
In addition to the private well, a rainwater storage tank has been installed for lawn irrigation. There are a total of 23 irrigation circuits.
Heating is underfloor, with 2 condensing boilers; additionally, inverter splits are installed for air conditioning in the master suite, while the 3 additional en-suite bedrooms have underfloor cooling via heat pump.
All systems were completed in 2017; special attention has been given to the internal and external lighting system, designed to highlight all the finest details of the property; there are numerous light points, including floor, wall, and ceiling fixtures, to provide the desired lighting conditions at any time of day.
A 6 KW photovoltaic system is available, along with panels for heating the pool water.
Wi-Fi internet is operational.
Remote video surveillance system.
Use and Potential Uses
In every respect, Dimora Cicaleto Concept is one of the most refined and exclusive properties ever built in this area, offering unparalleled beauty, craftsmanship, and comfort. It has been designed to be enjoyed all year round, with well-connected and usable indoor and outdoor spaces and a very high level of living comfort. Its relative proximity to amenities makes it suitable as a primary residence, as well as a vacation home and/or luxury tourist rental.
Location
Surrounded by absolute peace and quiet, it is only a five-minute drive from a charming village offering an excellent restaurant and essential services: an ideal mix of tranquility and convenience. The location offers complete privacy, a magnificent natural setting, and abundant light, all within easy reach of essential services and major transport links. Supermarkets and shops are 10-15 minutes away by car. Spello, Assisi, Foligno, Bevagna, Montefalco, and Perugia are all within a 30-minute drive, as is Perugia-Assisi International Airport.
Land registry details
The Great Estate group conducts a technical due diligence on every property acquired, through the seller client's technician, allowing us to gain detailed knowledge of the urban and cadastral situation of each property. This due diligence can be requested by the client upon genuine interest in the property.
Ownership details and eventual contractual obligations
The property is registered in the name of individuals.
Umbria, Perugia, Cannara, Italy
NEAREST AIRPORTS
Distances are straight line measurements- Ciampino(International)81.8 miles
- Leonardo da Vinci(International)83.5 miles
- Florence(International)89.4 miles
Advice on buying Italian property
Learn everything you need to know to successfully find and buy a property in Italy.
Notes
This is a property advertisement provided and maintained by Great Estate Immobiliare, Italy (reference 9963) and does not constitute property particulars. Whilst we require advertisers to act with best practice and provide accurate information, we can only publish advertisements in good faith and have not verified any claims or statements or inspected any of the properties, locations or opportunities promoted. Rightmove does not own or control and is not responsible for the properties, opportunities, website content, products or services provided or promoted by third parties and makes no warranties or representations as to the accuracy, completeness, legality, performance or suitability of any of the foregoing. We therefore accept no liability arising from any reliance made by any reader or person to whom this information is made available to. You must perform your own research and seek independent professional advice before making any decision to purchase or invest in overseas property.





