School Street, Peterlee, Durham, SR8 3PR

- PROPERTY TYPE
Bungalow
- BEDROOMS
3
- BATHROOMS
2
- SIZE
Ask agent
- TENUREDescribes how you own a property. There are different types of tenure - freehold, leasehold, and commonhold.Read more about tenure in our glossary page.
Freehold
Key features
- Extensive renovation and refurbishment works completed
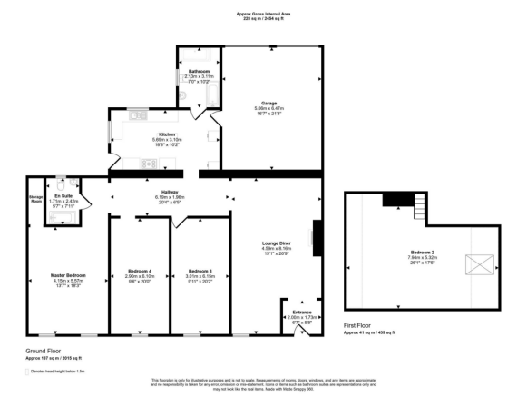
- 1668 sq ft total floor area
- Spacious three-bedroom bungalow
- New flat roofs + renewed pitched roof
- Double garage
- Loft with new skylight and development potential
- Large living spaces
- Mater en-suite & 4 piece family bathroom
Description
We are pleased to present this generously sized three-bedroom bungalow, offered with no onward chain and available for sale via online auction. Located in a popular residential area, the property benefits from close proximity to local amenities, schools, and excellent transport links, making it ideal for families, downsizers, or investors.
The accommodation briefly comprises a welcoming entrance hall, a spacious open plan living room diner, three double bedrooms including a newly fitted en-suite to the master and walk in cupboard, a contemporary kitchen supplied by Kitchen Plus, a stylish main bathroom with 4 piece suite, a double garage, and a private rear yard. There is also a useful loft space featuring a new skylight, with potential for further development. No
The property has undergone significant renovation and part-refurbishment, with a wide range of improvements already completed. These include two new flat roofs, a renewed pitched roof, full mould treatment across the entire property (with a 10-year certificate), and timber beam treatment. Boarding, framing, and plastering work has been completed throughout, along with repointing of the full front elevation.
All windows and the back door have been replaced. New radiators have been installed, alongside full electrical rewiring and a full gas service. The kitchen and both bathrooms (main and en-suite) are newly fitted by Kitchen Plus, complete with modern cladding and tiling. The entire property, including the front exterior, has been painted and decorated to a high standard.
Additional improvements include garage framework restoration, new master bedroom flooring, full renewal of original flooring across the home, a repositioned loft hatch with fitted ladder, and a new skylight in the loft. New guttering and fascia boards have been fitted, as well as a new electric consumer unit.
Practical enhancements also include new security lighting to the front and rear, outdoor twin plug sockets, a garden tap, new extractor fans in the bathrooms, and new lighting throughout the home.
This spacious bungalow offers an excellent opportunity to add final touches and make it your own, with much of the major work already completed to a high standard.
Auction Details: The property is being sold via online auction. Terms and conditions apply. Pre-auction offers may be considered. Viewings are highly recommended to fully appreciate the size and scope of the property.
Please note: Some finishing works still ongoing.
Council Tax Band: B
Tenure: Freehold
External Front
Entrance Hall
Lounge Dining
Inner hallway
Kicthen
Master bedroom
Master en-suite
Bedroom Two
Bedroom three
Family bathroom
Loft space
External rear
Double garage
Auctioneers Additional Comments
Pattinson Auction are referred to below as The Auctioneer. This auction lot is being sold under either conditional (Modern) or unconditional (Traditional) auction terms and overseen by the auctioneer. The property is available to view strictly by appointment only via any Marketing Agent or The Auctioneer. Please be aware that any enquiry, bid or viewing of the subject property will require your details being shared between any marketing agent and The Auctioneer so that all matters can be dealt with effectively. The property is being sold via a transparent online auction. To submit a bid on any property marketed by The Auctioneer, all bidders buyers must adhere to a verification of identity process in line with Anti Money Laundering procedures. Bids can be submitted at any time and from anywhere. Our verification process is in place to ensure AML procedures are carried out in accordance with the law
Auctioneers Additional Comments
The advertised price is commonly referred to as a Starting Bid or Guide Price and is accompanied by a Reserve Price. The Reserve Price is confidential to the seller and the auctioneer and will typically be within a range above or below 10% of the Guide Price , Starting Bid. These prices are subject to change. An auction can be closed at any time with the auctioneer permitting for the property (the lot) to be sold prior to the end of the auction. A Legal Pack associated with this particular property is available to view upon request and contains details relevant to the legal documentation enabling all interested parties to make an informed decision prior to bidding. The Legal Pack will also outline the buyers obligations and sellers commitments. It is strongly advised that you seek the counsel of a solicitor prior to proceeding with any property and/or Land Title purchase.
Auctioneers Additional Comments
In order to secure the property and ensure commitment from the seller, upon exchange of contracts, the successful bidder will be expected to pay a non-refundable deposit equivalent to 5% of the purchase price. The deposit will form part of the purchase price. A non-refundable reservation fee of up to 6% inc VAT (Subject to a minimum fee which could be up to 7,200 inc VAT) is also payable upon agreement of sale. The Reservation Fee is in addition to the agreed purchase price, and consideration should be given by the purchaser to any Stamp Duty Land Tax liability associated with the overall purchase costs. Both the Marketing Agent and the Auctioneer may consider it necessary or beneficial to pass customer details to third-party service suppliers, from whom a referral fee may be received. There is no requirement or obligation to use any recommended suppliers or services.
Brochures
Brochure- COUNCIL TAXA payment made to your local authority in order to pay for local services like schools, libraries, and refuse collection. The amount you pay depends on the value of the property.Read more about council Tax in our glossary page.
- Band: B
- PARKINGDetails of how and where vehicles can be parked, and any associated costs.Read more about parking in our glossary page.
- On street
- GARDENA property has access to an outdoor space, which could be private or shared.
- Yes
- ACCESSIBILITYHow a property has been adapted to meet the needs of vulnerable or disabled individuals.Read more about accessibility in our glossary page.
- Ask agent
School Street, Peterlee, Durham, SR8 3PR
Add an important place to see how long it'd take to get there from our property listings.
__mins driving to your place
Get an instant, personalised result:
- Show sellers you’re serious
- Secure viewings faster with agents
- No impact on your credit score
Your mortgage
Notes
Staying secure when looking for property
Ensure you're up to date with our latest advice on how to avoid fraud or scams when looking for property online.
Visit our security centre to find out moreDisclaimer - Property reference 499658. The information displayed about this property comprises a property advertisement. Rightmove.co.uk makes no warranty as to the accuracy or completeness of the advertisement or any linked or associated information, and Rightmove has no control over the content. This property advertisement does not constitute property particulars. The information is provided and maintained by Pattinson Estate Agents, Peterlee. Please contact the selling agent or developer directly to obtain any information which may be available under the terms of The Energy Performance of Buildings (Certificates and Inspections) (England and Wales) Regulations 2007 or the Home Report if in relation to a residential property in Scotland.
Auction Fees: The purchase of this property may include associated fees not listed here, as it is to be sold via auction. To find out more about the fees associated with this property please call Pattinson Estate Agents, Peterlee on 0191 625 0949.
*Guide Price: An indication of a seller's minimum expectation at auction and given as a Guide Price or a range of Guide Prices. This is not necessarily the figure a property will sell for and is subject to change prior to the auction.
Reserve Price: Each auction property will be subject to a Reserve Price below which the property cannot be sold at auction. Normally the Reserve Price will be set within the range of Guide Prices or no more than 10% above a single Guide Price.
*This is the average speed from the provider with the fastest broadband package available at this postcode. The average speed displayed is based on the download speeds of at least 50% of customers at peak time (8pm to 10pm). Fibre/cable services at the postcode are subject to availability and may differ between properties within a postcode. Speeds can be affected by a range of technical and environmental factors. The speed at the property may be lower than that listed above. You can check the estimated speed and confirm availability to a property prior to purchasing on the broadband provider's website. Providers may increase charges. The information is provided and maintained by Decision Technologies Limited. **This is indicative only and based on a 2-person household with multiple devices and simultaneous usage. Broadband performance is affected by multiple factors including number of occupants and devices, simultaneous usage, router range etc. For more information speak to your broadband provider.
Map data ©OpenStreetMap contributors.





