2 bedroom terraced house for rent
St. Julian Grove, Colchester

Letting details
- Let available date:
- 17/01/2026
- Deposit:
- £1,269A deposit provides security for a landlord against damage, or unpaid rent by a tenant.Read more about deposit in our glossary page.
- Min. Tenancy:
- Ask agent How long the landlord offers to let the property for.Read more about tenancy length in our glossary page.
- Let type:
- Long term
- Furnish type:
- Unfurnished
- Council Tax:
- Ask agent
- PROPERTY TYPE
Terraced
- BEDROOMS
2
- BATHROOMS
1
- SIZE
689 sq ft
64 sq m
Key features
- Victorian Terrace Home
- Two Reception Rooms
- Two Double Bedrooms
- Character Features
- Recently Redecorated
- Close to City Centre
- Available Now
- Unfurnished
Description
Situated close to the town centre, residents will enjoy easy access to a variety of shops, restaurants, and local amenities, making it an ideal choice for those who appreciate the convenience of urban living. Available Now. Unfurnished.
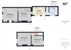
Living Room - 3.34 x 3.21 (10'11" x 10'6") - Bright room with window to front aspect. Feature fireplace. Door leading to:
Dining Room - 2.86 x 3.00 (9'4" x 9'10") - Window to rear aspect. Under stairs storage cupboard. Stairs to first floor landing. Door leading to:
Kitchen - 2.95 x 1.99 (9'8" x 6'6") - With stainless steel single bowl sink and drainer inset into rolled edge worksurface with cupboards and drawers under. Matching range of eye level wall mounted units. Free standing double electric oven and hob with extractor hood over. Fridge/freezer. Window to side aspect. Door leading to:
Hallway - With plumbing for washing machine.
Bathroom - 1.96 x 1.87 (6'5" x 6'1") - Fitted with w white suite comprising panel bath and shower attachment over. Low level WC, pedestal wash hand basin. Heated towel rail. Window to side aspect.
Landing - With doors leading to:
Bedroom One - 3.35 x 3.23 (10'11" x 10'7") - A double bedroom with feature fireplace. Window to front aspect
Bedroom Two - 2.86 x 2.51 (9'4" x 8'2") - A double bedroom with window to rear aspect.
Outside - The rear garden will be laid to patio with pedestrian access to the rear. Parking is available in nearby carpark (permit required).
Tenancy Information - The rent is exclusive of utilities and council tax.
Minimum term: 12 months
Deposit: £1153.00
Council Tax Band: B
Availability: Now
EPC Rating: E-39
No Pets
Non Smokers
MJPC is a member of propertymark which is a client money protection scheme, and also a member of The Property Ombudsman, which is a redress scheme. You can find out more details on the agent's website or by contacting the agent directly
Relevant Letting Fees - As well as paying the rent, you may also be required to make the following permitted payments.
Permitted payments:
Before the tenancy starts (payable to Matthew James Property Consultants, "the Agent")
Holding Deposit: 1 weeks' rent
Deposit: 5 weeks' rent
During the tenancy (payable to the Agent):
Payment of £50 for the variation, assignment or novation of the tenancy (capped at £50 or reasonable costs)
Payment of interest for the late payment of rent at a rate of 3% above the base rate of the Bank of England.
Payment up to £100.00 for the reasonably incurred costs for the loss of keys/security devices.
Payment of any unpaid rent or other reasonable costs associated with your early termination of the tenancy.
MJPC is a member of propertymark which is a client money protection scheme, and a member of The Property Ombudsman,
which is a redress scheme. You can find out more details on the agent’s website or by contacting the agent directly.
Viewings - Strictly by prior appointment with the Letting Agent.
If you wish to proceed with this property following your viewing then please supply an application either directly to the office or via our website - the property in question and click "Make Offer"
Brochures
St. Julian Grove, ColchesterBrochure- COUNCIL TAXA payment made to your local authority in order to pay for local services like schools, libraries, and refuse collection. The amount you pay depends on the value of the property.Read more about council Tax in our glossary page.
- Band: B
- PARKINGDetails of how and where vehicles can be parked, and any associated costs.Read more about parking in our glossary page.
- Permit
- GARDENA property has access to an outdoor space, which could be private or shared.
- Yes
- ACCESSIBILITYHow a property has been adapted to meet the needs of vulnerable or disabled individuals.Read more about accessibility in our glossary page.
- Ask agent
St. Julian Grove, Colchester
Add an important place to see how long it'd take to get there from our property listings.
__mins driving to your place
About Matthew James Property Consultants, Colchester
Suite 7 Runkins Farm, Langham Lane, Boxted, Colchester, CO4 5HZ

Notes
Staying secure when looking for property
Ensure you're up to date with our latest advice on how to avoid fraud or scams when looking for property online.
Visit our security centre to find out moreDisclaimer - Property reference 34363525. The information displayed about this property comprises a property advertisement. Rightmove.co.uk makes no warranty as to the accuracy or completeness of the advertisement or any linked or associated information, and Rightmove has no control over the content. This property advertisement does not constitute property particulars. The information is provided and maintained by Matthew James Property Consultants, Colchester. Please contact the selling agent or developer directly to obtain any information which may be available under the terms of The Energy Performance of Buildings (Certificates and Inspections) (England and Wales) Regulations 2007 or the Home Report if in relation to a residential property in Scotland.
*This is the average speed from the provider with the fastest broadband package available at this postcode. The average speed displayed is based on the download speeds of at least 50% of customers at peak time (8pm to 10pm). Fibre/cable services at the postcode are subject to availability and may differ between properties within a postcode. Speeds can be affected by a range of technical and environmental factors. The speed at the property may be lower than that listed above. You can check the estimated speed and confirm availability to a property prior to purchasing on the broadband provider's website. Providers may increase charges. The information is provided and maintained by Decision Technologies Limited. **This is indicative only and based on a 2-person household with multiple devices and simultaneous usage. Broadband performance is affected by multiple factors including number of occupants and devices, simultaneous usage, router range etc. For more information speak to your broadband provider.
Map data ©OpenStreetMap contributors.




