Aquitaine, Gironde, Andernos-les-Bains, France
- PROPERTY TYPE
Flat
- BEDROOMS
2
- BATHROOMS
1
- SIZE
Ask agent
Key features
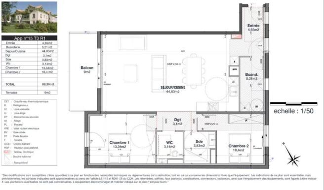
- 88 m
Description
It offers a 44 m² living room/kitchen opening onto a balcony, 2 bedrooms, a shower room, a separate toilet, a laundry room and an entrance hall.
Two outdoor parking spaces are included.
This two-storey residence benefits from an excellent location near the Bassin and the Betey district.
An intimate development composed of only 12 apartments, from 1 to 3 bedrooms, offering quality features with generous and bright volumes.
If you are looking for another type of apartment within this residence, please feel free to contact us.
Private gardens – Lift – Private parking & bicycle parking – Secured access
All apartments comply with RE 2020 regulations and are equipped with:
enhanced thermal and acoustic insulation
air-to-air heat pump
electric roller shutters
secure entry via videophone and A2P-certified locks
high-quality flooring
Two secured parking spaces complete this property.
The price of the property is €590,000 (agency fees included, payable by the seller). Reduced notary fees.
VEFA guarantees on the delivered property:
Perfect Completion Guarantee (1 year)
Two-Year Guarantee (2 years)
Ten-Year Structural Guarantee (10 years)
Energy performance diagnosis not applicable.
Information on the risks to which this property is exposed is available on
.
For more information, please contact Christine BIANCHI, registered with the RSAC under number 854 067 62, with Professional Liability Insurance No. 60660388.
Discover all our properties on IMMOBA.
If you'd like, I can also prepare a shorter version for portals (SeLoger/BI), an Instagram caption, or an English version tailored to international buyers.
Aquitaine, Gironde, Andernos-les-Bains, France
NEAREST AIRPORTS
Distances are straight line measurements- Bordeaux (Mérignac)(International)20.2 miles
- Bergerac(International)79.7 miles
- Parme(International)90.8 miles
Advice on buying French property
Learn everything you need to know to successfully find and buy a property in France.
Notes
This is a property advertisement provided and maintained by John D Wood International, RoW (reference 21247205_14995128) and does not constitute property particulars. Whilst we require advertisers to act with best practice and provide accurate information, we can only publish advertisements in good faith and have not verified any claims or statements or inspected any of the properties, locations or opportunities promoted. Rightmove does not own or control and is not responsible for the properties, opportunities, website content, products or services provided or promoted by third parties and makes no warranties or representations as to the accuracy, completeness, legality, performance or suitability of any of the foregoing. We therefore accept no liability arising from any reliance made by any reader or person to whom this information is made available to. You must perform your own research and seek independent professional advice before making any decision to purchase or invest in overseas property.




