
Ardenham street, Aylesbury, Buckinghamshire

- PROPERTY TYPE
Terraced
- BEDROOMS
3
- BATHROOMS
1
- SIZE
Ask agent
- TENUREDescribes how you own a property. There are different types of tenure - freehold, leasehold, and commonhold.Read more about tenure in our glossary page.
Freehold
Key features
- CENTRAL LOCATION
- THREE BEDROOM TERRACED HOME
- RECENTLY REFURBISHED
- ENCLOSED REAR GARDEN
- SPACIOUS LIVING ROOM/DINING ROOM
- NO UPPER CHAIN
- CLOSE TO TOWN CENTRE, STATION AND SHOPS
- DOWNSTAIRS BATHROOM SUITE
- NEW OAK DOORS THROUGHOUT
- NEW CARPET AND WINDOWS
Description
Location - Aylesbury town centre is within walking distance, with an excellent range of shopping and recreational facilities, numerous restaurants and a main line rail station (Marylebone 1 hour). Aylesbury is particularly well served by three of the area’s top performing Grammar Schools- Aylesbury Grammar School for boys, High School for Girls and Sir Henry Floyd (mixed). Inspired by the rolling Chiltern Hills, the Aylesbury Waterside Theatre provides an entertaining evening out at the heart of the Canalside and beautiful outdoor purpose-built restaurant and entertainment. Short walking distance to Aquavale swimming & fitness centre, Tesco superstore & the mainline line rail station (Marylebone 1 hour) & there is good access by road onto the A41 leading towards London/M25.
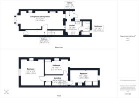
Accommodation - The accommodation begins with a welcoming entrance hall featuring stairs rising to the first floor. To the front and rear is a spacious living room/dining room, enhanced by a feature fireplace and offering ample space for both living and dining room furniture, creating an ideal environment for everyday living and entertaining.
The stylish kitchen is fitted with a modern range of units and incorporates an inset gas hob with oven and cooker hood above. A breakfast bar provides additional seating and workspace, while there is space for appliances. A door leads directly out to the rear garden, further enhancing the practicality of the space. Completing the ground floor is a well-appointed bathroom suite.
On the first floor, the landing provides access to the loft and a useful storage cupboard. There are three bedrooms, each benefitting from its own feature fireplace. Bedrooms two and three also include built-in storage, offering excellent practicality.
Externally, the property enjoys an enclosed rear garden comprising a patio area ideal for outdoor seating, a gravelled section and a lawned area. Additional features include side gate access and a shed, providing convenient storage.
This beautifully presented home combines period features with modern finishes and a superb central location, making it an excellent choice for a range of buyers.
Brochures
Ardenham street, Aylesbury, BuckinghamshireBrochure- COUNCIL TAXA payment made to your local authority in order to pay for local services like schools, libraries, and refuse collection. The amount you pay depends on the value of the property.Read more about council Tax in our glossary page.
- Band: B
- PARKINGDetails of how and where vehicles can be parked, and any associated costs.Read more about parking in our glossary page.
- Ask agent
- GARDENA property has access to an outdoor space, which could be private or shared.
- Yes
- ACCESSIBILITYHow a property has been adapted to meet the needs of vulnerable or disabled individuals.Read more about accessibility in our glossary page.
- Ask agent
Ardenham street, Aylesbury, Buckinghamshire
Add an important place to see how long it'd take to get there from our property listings.
__mins driving to your place
Get an instant, personalised result:
- Show sellers you’re serious
- Secure viewings faster with agents
- No impact on your credit score
Your mortgage
Notes
Staying secure when looking for property
Ensure you're up to date with our latest advice on how to avoid fraud or scams when looking for property online.
Visit our security centre to find out moreDisclaimer - Property reference 34365903. The information displayed about this property comprises a property advertisement. Rightmove.co.uk makes no warranty as to the accuracy or completeness of the advertisement or any linked or associated information, and Rightmove has no control over the content. This property advertisement does not constitute property particulars. The information is provided and maintained by George David & Co, Aylesbury. Please contact the selling agent or developer directly to obtain any information which may be available under the terms of The Energy Performance of Buildings (Certificates and Inspections) (England and Wales) Regulations 2007 or the Home Report if in relation to a residential property in Scotland.
*This is the average speed from the provider with the fastest broadband package available at this postcode. The average speed displayed is based on the download speeds of at least 50% of customers at peak time (8pm to 10pm). Fibre/cable services at the postcode are subject to availability and may differ between properties within a postcode. Speeds can be affected by a range of technical and environmental factors. The speed at the property may be lower than that listed above. You can check the estimated speed and confirm availability to a property prior to purchasing on the broadband provider's website. Providers may increase charges. The information is provided and maintained by Decision Technologies Limited. **This is indicative only and based on a 2-person household with multiple devices and simultaneous usage. Broadband performance is affected by multiple factors including number of occupants and devices, simultaneous usage, router range etc. For more information speak to your broadband provider.
Map data ©OpenStreetMap contributors.





