
2 bedroom house for sale
Palington Grove, Cantley, Doncaster

- PROPERTY TYPE
House
- BEDROOMS
2
- BATHROOMS
1
- SIZE
Ask agent
- TENUREDescribes how you own a property. There are different types of tenure - freehold, leasehold, and commonhold.Read more about tenure in our glossary page.
Freehold
Description
A 2 BEDROOM SEMI-DETACHED HOUSE / GOOD SIZED REAR GARDEN / OVERLOOKING SCHOOL PLAYING FIELDS / PRICED TO ALLOW FOR SOME UPGRADING / HUGE POTENTIAL FOR THE RIGHT BUYER / 2 DOUBLE BEDROOMS / BATHROOM & SEPARATE W/C / LOVELY CUL-DEC-SAC SETTING / VIEWING RECOMMENDED //
A 2 double bedroom semi detached house with a good sized rear garden, overlooking school playing fields. The property has pvc double glazing including fascias, soffits and guttering and briefly comprises: Entrance hall with stairs to first floor, spacious open plan living room, kitchen with pantry and storage cupboard off, first floor landing, two good sized double bedrooms, bathroom and a separate wc. Outside, are good sized gardens, the rear enjoys a lovely aspect over school playing fields. Well placed with access to local amenities including a good variety of local shops, schools and Lakeside retail and leisure complex. Perfect project for a buyer looking to personalise their own home.
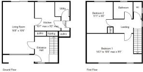
Accommodation - A deep portico gives shelter to a pvc double glazed entrance door which leads into the property's entrance hall.
Entrance Hall - This has a staircase leading to the first-floor accommodation a low-level built-in storage cupboard, ceiling light, pvc double glazed window and door into open plan living room.
Living Room - 5.08m x 3.20m (16'8" x 10'6") - This is an open plan arrangement, it has feature fireplace with a built-in gas fire inset, a pvc double glazed window to the front and double glazed sliding patio doors to the rear. There is coving, two ceiling lights and a door in to the kitchen.
Kitchen - 3.23m max x 2.79m max (10'7" max x 9'2" max) - The kitchen has a range of base units with a single stainless-steel sink unit, a tall built in pantry style cupboard which has a cold shelf, a second larder style cupboard, original single glazed window and light. There is gas laid on for a cooker, an outlet for a washing machine and a pvc double glazed window which gives an outlook over the property's rear garden.
First Floor Landing - As previously described a staircase in the entrance hall leads to the first-floor landing, where there is a wall mounted gas convector heater, a pvc double glazed window to the side, tall built in storage cupboard which houses a hot water cylinder with immersion heater fitted and linen storage above. There is also access point into loft space.
Bedroom 1 - 5.49m max x 2.97m max (18'0" max x 9'9" max) - A large double bedroom, it has two pvc double glazed windows to the front elevation and a ceiling light.
Bedroom 2 - 3.38m x 2.95m (11'1" x 9'8") - A good sized second double bedroom, it has a pvc double glazed window which gives an outlook over the property's rear garden and school playing fields beyond and a central ceiling light.
House Bathroom - The bathroom is fitted with a traditional white suite comprising of a cast iron panelled bath and a wash hand basin, there is a ceiling light, pvc double glazed window and a fitted blind.
Separate Wc - Has a low flush wc, central ceiling light and pvc double glazed window.
Outside - The property stands on a good sized plot, the front is lawned with shaped flower beds and borders stocked with a variety of shrubs and plants. A pathway continues along the side of the property and leads into the property's rear garden.
Rear Garden - The rear garden is again a good size, it has a more open outlook over school playing fields, it is mainly lawned, with a flower bed inset. There is some fencing and hedging to perimeters.
Agents Notes: - TENURE - FREEHOLD.
SERVICES - All mains services are connected.
DOUBLE GLAZING - PVC double glazing, where stated. Age of units various.
HEATING - The property has independent electric and gas heaters where described.
COUNCIL TAX - Band A
BROADBAND - Ultrafast broadband is available with download speeds of up to 1000 mbps and upload speeds of up to 1000 mbps.
MOBILE COVERAGE - Coverage is available with EE, Three, 02 and Vodafone.
VIEWING - By prior telephone appointment with horton knights estate agents.
MEASUREMENTS - Please note all measurements are approximate and for guidance purposes only, with a six inch tolerance. Therefore please do NOT rely upon them for carpet measurements, furniture and the like. Similarly, the floor plan is designed as a visual reference and is NOT a scale drawing.
PROPERTY PARTICULARS - We endeavour to make our property particulars accurate and reliable, however if there is a point that is especially important to you, please contact ourselves prior to exchange of contracts, so that we may further clarify that point. We DO NOT give any warranty to the suitability of any part, including fixtures and fittings of this property, prospective buyers are kindly asked to take specific advice from their professional advisors.
OPENING HOURS - Monday - Friday 9:00 - 5:30 Saturday 9:00 - 3:00 Sunday
INDEPENDENT MORTGAGE ADVICE - With so many mortgage options to choose from, how do you know your getting the best deal? Quite simply...YOU DON'T. Talk to an expert. We offer uncomplicated impartial advice. Call us today: .
FREE VALUATIONS - If you need to sell a house then please take advantage of our FREE VALUATION service, contact our Doncaster Office for a prompt and efficient service.
Brochures
Palington Grove, Cantley, DoncasterBrochure- COUNCIL TAXA payment made to your local authority in order to pay for local services like schools, libraries, and refuse collection. The amount you pay depends on the value of the property.Read more about council Tax in our glossary page.
- Band: A
- PARKINGDetails of how and where vehicles can be parked, and any associated costs.Read more about parking in our glossary page.
- Ask agent
- GARDENA property has access to an outdoor space, which could be private or shared.
- Yes
- ACCESSIBILITYHow a property has been adapted to meet the needs of vulnerable or disabled individuals.Read more about accessibility in our glossary page.
- Ask agent
Palington Grove, Cantley, Doncaster
Add an important place to see how long it'd take to get there from our property listings.
__mins driving to your place
Get an instant, personalised result:
- Show sellers you’re serious
- Secure viewings faster with agents
- No impact on your credit score



Your mortgage
Notes
Staying secure when looking for property
Ensure you're up to date with our latest advice on how to avoid fraud or scams when looking for property online.
Visit our security centre to find out moreDisclaimer - Property reference 34366730. The information displayed about this property comprises a property advertisement. Rightmove.co.uk makes no warranty as to the accuracy or completeness of the advertisement or any linked or associated information, and Rightmove has no control over the content. This property advertisement does not constitute property particulars. The information is provided and maintained by Horton Knights, Doncaster. Please contact the selling agent or developer directly to obtain any information which may be available under the terms of The Energy Performance of Buildings (Certificates and Inspections) (England and Wales) Regulations 2007 or the Home Report if in relation to a residential property in Scotland.
*This is the average speed from the provider with the fastest broadband package available at this postcode. The average speed displayed is based on the download speeds of at least 50% of customers at peak time (8pm to 10pm). Fibre/cable services at the postcode are subject to availability and may differ between properties within a postcode. Speeds can be affected by a range of technical and environmental factors. The speed at the property may be lower than that listed above. You can check the estimated speed and confirm availability to a property prior to purchasing on the broadband provider's website. Providers may increase charges. The information is provided and maintained by Decision Technologies Limited. **This is indicative only and based on a 2-person household with multiple devices and simultaneous usage. Broadband performance is affected by multiple factors including number of occupants and devices, simultaneous usage, router range etc. For more information speak to your broadband provider.
Map data ©OpenStreetMap contributors.





