
Eckford Vale, Lowe Hill Rd, Wem, Shrewsbury, Shropshire, SY4 5UT

- PROPERTY TYPE
Detached
- BEDROOMS
3
- SIZE
Ask developer
- TENUREDescribes how you own a property. There are different types of tenure - freehold, leasehold, and commonhold.Read more about tenure in our glossary page.
Freehold
Key features
- Open plan kitchen/dining room with French doors leading onto the garden
- Generous front-aspect living room
- En suite to bedroom one
- Downstairs WC
- Separate utility
- Three handy storage cupboards
- Energy efficient
Description
The Sherwood opens its doors to family life, with the balance of an open-plan kitchen/dining room and a separate living room. That means a balance of family time and quiet time for you all to make the most of. Three bedrooms and two bathrooms mean calm mornings getting ready for school and work, and French doors to the garden mean a lovely place to start and end the day.
Additional Information
- Tenure: Freehold
- Council tax band: Not made available by local authority until post-occupation
Parking - Allocated Parking
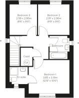
Room Dimensions
- Kitchen - 3.1 x 2.85 metre
- Dining room - 2.55 x 2.85 metre
- Living room - 3.85 x 3.57 metre
- Bedroom 1 - 3.85 x 3.19 metre
- Bedroom 2 - 2.97 x 2.9 metre
- Bedroom 3 - 2.59 x 2.9 metre
- COUNCIL TAXA payment made to your local authority in order to pay for local services like schools, libraries, and refuse collection. The amount you pay depends on the value of the property.Read more about council Tax in our glossary page.
- Ask developer
- PARKINGDetails of how and where vehicles can be parked, and any associated costs.Read more about parking in our glossary page.
- Yes
- GARDENA property has access to an outdoor space, which could be private or shared.
- Yes
- ACCESSIBILITYHow a property has been adapted to meet the needs of vulnerable or disabled individuals.Read more about accessibility in our glossary page.
- Ask developer
Energy performance certificate - ask developer
Eckford Vale, Lowe Hill Rd, Wem, Shrewsbury, Shropshire, SY4 5UT
Add an important place to see how long it'd take to get there from our property listings.
__mins driving to your place
Get an instant, personalised result:
- Show sellers you’re serious
- Secure viewings faster with agents
- No impact on your credit score
About Persimmon Homes
Perfect for first-time buyers, families and professionals, Eckford Vale offers a range of two, three and four-bedroom homes that combine easy amenities with peaceful rural life.
Situated in the heart of Shropshire and on the edge of Wem, you have easy access to a variety of local shops, traditional pubs and essential services in Wem town centre. Plus, the popular market town of Whitchurch is under 20 minutes away by car. The development is also moments away from Wem Railway Station, which provides regular services to Shrewsbury, Crewe and beyond, making commuting straightforward.
For growing families, Wem offers education for all ages and is ideally positioned near well-regarded schools, including St Peter's CE Primary School and The Thomas Adams School. For relaxing weekend strolls you have so many stunning options nearby, and Shrewsbury has a wealth of restaurants and culture for days and evenings out.
To explore our new houses for sale in Shropshire and start your new build journey, speak to one of our sales advisors.
This development offers the following schemes:
- New Build Boost
- Deposit Boost: 5% Deposit Contribution Scheme
- Part Exchange your Home
- Own New Rate Reducer Scheme
- Home Change
- Armed Forces, Key Workers & NHS Discount Scheme
Schemes are available on selected plots only, subject to status, terms and conditions apply. Contact the development for latest information.
Affordability
Notes
Staying secure when looking for property
Ensure you're up to date with our latest advice on how to avoid fraud or scams when looking for property online.
Visit our security centre to find out moreDisclaimer - Property reference 3_21. The information displayed about this property comprises a property advertisement. Rightmove.co.uk makes no warranty as to the accuracy or completeness of the advertisement or any linked or associated information, and Rightmove has no control over the content. This property advertisement does not constitute property particulars. The information is provided and maintained by Persimmon Homes. Please contact the selling agent or developer directly to obtain any information which may be available under the terms of The Energy Performance of Buildings (Certificates and Inspections) (England and Wales) Regulations 2007 or the Home Report if in relation to a residential property in Scotland.
*This is the average speed from the provider with the fastest broadband package available at this postcode. The average speed displayed is based on the download speeds of at least 50% of customers at peak time (8pm to 10pm). Fibre/cable services at the postcode are subject to availability and may differ between properties within a postcode. Speeds can be affected by a range of technical and environmental factors. The speed at the property may be lower than that listed above. You can check the estimated speed and confirm availability to a property prior to purchasing on the broadband provider's website. Providers may increase charges. The information is provided and maintained by Decision Technologies Limited. **This is indicative only and based on a 2-person household with multiple devices and simultaneous usage. Broadband performance is affected by multiple factors including number of occupants and devices, simultaneous usage, router range etc. For more information speak to your broadband provider.
Map data ©OpenStreetMap contributors.






