4 bedroom end of terrace house for rent
4 bedroom End of Terrace House in Solar Avenue, Leeds

Letting details
- Let available date:
- Now
- Deposit:
- £1,840A deposit provides security for a landlord against damage, or unpaid rent by a tenant.Read more about deposit in our glossary page.
- Min. Tenancy:
- Ask agent How long the landlord offers to let the property for.Read more about tenancy length in our glossary page.
- Let type:
- Long term
- Furnish type:
- Furnished
- Council Tax:
- Ask agent
- PROPERTY TYPE
End of Terrace
- BEDROOMS
4
- BATHROOMS
2
- SIZE
Ask agent
Key features
- AVAILABLE NOW!
- Allocated Parking Space
- Recently Built Property
- White Goods Included
- Pet Considered
- Corporate Landlord
- Professionally Managed
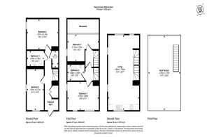
- 425 Sq Ft roof terrace
Description
AVAILABLE NOW!
Lomond are delighted to offer this recently built four-bedroom furnished modern end-terraced town house in the exciting new Climate Innovation District development in Leeds.
This beautiful property benefits from a spacious open plan living room/kitchen, four spacious bedrooms, a family bathroom, large shower room, utility room, large roof terrace and all white goods included. Popular amongst modern day renters looking for that open concept living.
Key Features:
The property has a small front garden, large roof terrace and an allocated off road parking space.
Prime Location:
The Climate Innovation District, is unique for a city centre location. Acres of open green space along the riverbank, but just a few minutes walk from the beating heart of Leeds. A striking new footbridge links residents to the River Aires tow-path - which in turn connects to Leeds Dock, Brewery Wharf, The Calls and city centre, by way of a short walk.
New innovative smart home technology, energy efficient, low carbon and Green Quarter riverside living
IF THIS PROPERTY SUITS YOU THEN PLEASE DO NOT HESITATE TO CONTACT US!
* Council Tax Band - TBC
* EPC - B
* All applicants will need to earn annually in excess of £55,825 combined
We are regulated by The Property Ombudsman (TPO) and also a member of Client Money Protection.
Property features and specifications may vary on a plot-by-plot basis. Whilst every attempt has been made to ensure accuracy, all measurements are approximate, not to scale. Computer generated images, floor plans and photos (CGIs) are for illustrative purposes only and may not represent the final design or finish of the property.
For further information on layouts and specifications please speak to your Lomond representative.
Applicants are required to show an annual salary that is 35X the monthly rent. This condition can be fulfilled by combining the incomes of family members who will be residing together.
The Council Tax band for this property has not yet been determined. Once the local council assigns a tax band, this information will be updated. Prospective tenants are advised to check with the local authority for further details.
Disclaimer: Energy Band: B | Council Tax Band: TBC. Please verify with the agent for the most accurate and up-to-date information.
- COUNCIL TAXA payment made to your local authority in order to pay for local services like schools, libraries, and refuse collection. The amount you pay depends on the value of the property.Read more about council Tax in our glossary page.
- Ask agent
- PARKINGDetails of how and where vehicles can be parked, and any associated costs.Read more about parking in our glossary page.
- Yes
- GARDENA property has access to an outdoor space, which could be private or shared.
- Yes
- ACCESSIBILITYHow a property has been adapted to meet the needs of vulnerable or disabled individuals.Read more about accessibility in our glossary page.
- Ask agent
Energy performance certificate - ask agent
4 bedroom End of Terrace House in Solar Avenue, Leeds
Add an important place to see how long it'd take to get there from our property listings.
__mins driving to your place
Notes
Staying secure when looking for property
Ensure you're up to date with our latest advice on how to avoid fraud or scams when looking for property online.
Visit our security centre to find out moreDisclaimer - Property reference 40840. The information displayed about this property comprises a property advertisement. Rightmove.co.uk makes no warranty as to the accuracy or completeness of the advertisement or any linked or associated information, and Rightmove has no control over the content. This property advertisement does not constitute property particulars. The information is provided and maintained by Lomond Investment Management, covering National. Please contact the selling agent or developer directly to obtain any information which may be available under the terms of The Energy Performance of Buildings (Certificates and Inspections) (England and Wales) Regulations 2007 or the Home Report if in relation to a residential property in Scotland.
*This is the average speed from the provider with the fastest broadband package available at this postcode. The average speed displayed is based on the download speeds of at least 50% of customers at peak time (8pm to 10pm). Fibre/cable services at the postcode are subject to availability and may differ between properties within a postcode. Speeds can be affected by a range of technical and environmental factors. The speed at the property may be lower than that listed above. You can check the estimated speed and confirm availability to a property prior to purchasing on the broadband provider's website. Providers may increase charges. The information is provided and maintained by Decision Technologies Limited. **This is indicative only and based on a 2-person household with multiple devices and simultaneous usage. Broadband performance is affected by multiple factors including number of occupants and devices, simultaneous usage, router range etc. For more information speak to your broadband provider.
Map data ©OpenStreetMap contributors.




