High street retail property to lease
7 Fenchurch Walk, Brighton BN1 4GX
- SIZE AVAILABLE
840 sq ft
78 sq m
- SECTOR
High street retail property to lease
Lease details
- Lease available date:
- Ask agent
Key features
- Situated on busy pedestrian thoroughfare
- Local occupiers include Sainsbury's and Kantenya Japanese Supermarket
- Prominent location near Brighton Station and city centre
- Modern unit with open plan retail space
- Suitable for commercial kitchen usage
- Rent £17,000 pax
- New effectively FRI lease available
- Area for outside seating
Description
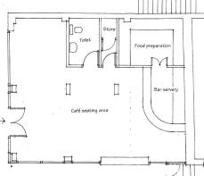
The premises forms the ground floor of a modern, mixed-use development block and enjoys a prominent corner position. Internally, the premises comprises an open plan sales area with ancillary space, kitchen area and WC. There is an external area for outside seating.
Location
Brighton and Hove is a vibrant and well connected city on the South Coast, offering an exceptional quality of life and a strong commercial base. The city benefits from a diverse economy, excellent transport links to London and Gatwick Airport, and a highly skilled workforce, making it an attractive location for businesses across the creative, digital, professional, and financial sectors.
Fenchurch Walk forms part of a busy pedestrian thoroughfare between Brighton Station and London Road, two active locations within the city. The property is situated in New England Quarter, a bustling mixed use development that houses many local residents. Local occupiers include Sainsbury's and Kantenya.
Planning
A new Use Classes Order (UCO) came into effect on 1st September 2020. Under the new UCO a new Use Class E was introduced to cover commercial, business and service uses. Use Class E encompasses A1, A2, A3, B1 and some D1 and D2 uses under the former UCO. We therefore understand that the premises benefit from Class E 'Commercial Business and Service' use within the Use Classes Order 2020.
VAT
Rents and prices are quoted exclusive of, but may be subject to VAT.
Accommodation
The accommodation has the following approximate Net Internal Area (NIA):
Business Rates / Council Tax Band
Current (2023) and future (2026) Rateable Value: £25,000
EPC
We understand the property has an EPC rating of B (35) (expiry date - 20/07/2032).
Legal Fees
Each party to bear their own legal costs incurred.
Brochures
7 Fenchurch Walk, Brighton BN1 4GX
NEAREST STATIONS
Distances are straight line measurements from the centre of the postcode- Brighton Station0.2 miles
- London Road (Brighton) Station0.4 miles
- Preston Park Station1.3 miles
Notes
Disclaimer - Property reference 8255LH. The information displayed about this property comprises a property advertisement. Rightmove.co.uk makes no warranty as to the accuracy or completeness of the advertisement or any linked or associated information, and Rightmove has no control over the content. This property advertisement does not constitute property particulars. The information is provided and maintained by Flude Property Consultants, Brighton. Please contact the selling agent or developer directly to obtain any information which may be available under the terms of The Energy Performance of Buildings (Certificates and Inspections) (England and Wales) Regulations 2007 or the Home Report if in relation to a residential property in Scotland.
Map data ©OpenStreetMap contributors.







