Moorbridge Road, Maidenhead

- PROPERTY TYPE
Apartment
- BEDROOMS
2
- BATHROOMS
2
- SIZE
Ask agent
Key features
- 999 YEAR LEASE, 10 YEAR NHBC BUILDMARK POLICY
- ENERGY EFFICIENT EIGHTH FLOOR APARTMENT
- OPEN PLAN KITCHEN, LIVING AND DINING ROOM
- PRIVATE BALCONY
- PARKING SPACE
- CONVENIENT FOR MAIDENHEAD TOWN CENTRE & TRAIN STATION
- TRAINS FROM MAIDENHEAD STATION TO LONDON PADDINGTON IN AS LITTLE AS 18 MINUTES AND ACCESS TO THE ELIZABETH LINE
- PLEASE NOTE: SHOW HOME/REPRESENTATIVE IMAGES
Description
SUMMARY
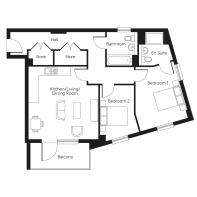
The Cracknell is a superb eighth floor energy efficient apartment boasting an open-plan kitchen, living and dining room, balcony and a private parking space. This brand new development is ideally situated in the town centre and only 0.5 miles from Maidenhead train station/Elizabeth Line.
DESCRIPTION
Cooper Square is a desirable collection of 1, 2 and 3 bedroom apartments located at the heart of the bustling market town of Maidenhead. These versatile living spaces have been designed to provide efficiency, practicality and comfort for a variety of lifestyles, with some including private parking for total convenience.
When combined with a location that is just minutes from fantastic town centre amenities, tranquil open spaces and a Crosslink connection to London, you have the ideal home for everyone from first-time buyers and commuting professionals to downsizers looking for contemporary convenience.
Cooper Square is situated in a convenient location within walking distance of both the picturesque River Thames and Maidenhead town centre. As such, you can find all the essentials nearby, with the bustling High Street just two minutes from your door and a variety of supermarkets within reach, including Sainsbury’s and Waitrose.
The Cracknell is a superb energy eficient eighth floor apartment boasting an open-plan kitchen, living and dining room, two double bedrooms, en-suite and bathroom and a balcony.
The open-plan kitchen, living and dining room is the central space and extends outdoors onto a stunning private balcony, and the layout allows plenty of multi-purpose space for a living area and a dining table, perfect for hosting.
The kitchen is complete with well appointed fitted units and integrated appliances, including a built-in washing machine, fridge freezer and dishwasher.
The double bedrooms offer plenty of room for a home-working set up if required, or substantial storage.
Additional storage can be found in hall.
A well-equipped bathroom and en-suite serves the flat, complete with Roca sanitaryware, Bristan chrome-finish brassware, and stylish wall tiling.
Disclaimer
PLEASE NOTE: SHOW HOME/REPRESENTATIVE IMAGES
This brochure has been prepared from plans supplied by the developer. Roger Platt have yet to verify the information derived from these plans because of the stage of construction.
We currently hold lease details as displayed above, should you require further information please contact the branch. Please note additional fees could be incurred for items such as leasehold packs.
1. MONEY LAUNDERING REGULATIONS: Intending purchasers will be asked to produce identification documentation at a later stage and we would ask for your co-operation in order that there will be no delay in agreeing the sale.
2. General: While we endeavour to make our sales particulars fair, accurate and reliable, they are only a general guide to the property and, accordingly, if there is any point which is of particular importance to you, please contact the office and we will be pleased to check the position for you, especially if you are contemplating travelling some distance to view the property.
3. The measurements indicated are supplied for guidance only and as such must be considered incorrect.
4. Services: Please note we have not tested the services or any of the equipment or appliances in this property, accordingly we strongly advise prospective buyers to commission their own survey or service reports before finalising their offer to purchase.
5. THESE PARTICULARS ARE ISSUED IN GOOD FAITH BUT DO NOT CONSTITUTE REPRESENTATIONS OF FACT OR FORM PART OF ANY OFFER OR CONTRACT. THE MATTERS REFERRED TO IN THESE PARTICULARS SHOULD BE INDEPENDENTLY VERIFIED BY PROSPECTIVE BUYERS OR TENANTS. NEITHER SEQUENCE (UK) LIMITED NOR ANY OF ITS EMPLOYEES OR AGENTS HAS ANY AUTHORITY TO MAKE OR GIVE ANY REPRESENTATION OR WARRANTY WHATEVER IN RELATION TO THIS PROPERTY.
Brochures
PDF Property ParticularsFull Details- COUNCIL TAXA payment made to your local authority in order to pay for local services like schools, libraries, and refuse collection. The amount you pay depends on the value of the property.Read more about council Tax in our glossary page.
- Band: TBC
- PARKINGDetails of how and where vehicles can be parked, and any associated costs.Read more about parking in our glossary page.
- Allocated
- GARDENA property has access to an outdoor space, which could be private or shared.
- Ask agent
- ACCESSIBILITYHow a property has been adapted to meet the needs of vulnerable or disabled individuals.Read more about accessibility in our glossary page.
- Ask agent
Energy performance certificate - ask agent
Moorbridge Road, Maidenhead
Add an important place to see how long it'd take to get there from our property listings.
__mins driving to your place
Get an instant, personalised result:
- Show sellers you’re serious
- Secure viewings faster with agents
- No impact on your credit score
Your mortgage
Notes
Staying secure when looking for property
Ensure you're up to date with our latest advice on how to avoid fraud or scams when looking for property online.
Visit our security centre to find out moreDisclaimer - Property reference MHD123427. The information displayed about this property comprises a property advertisement. Rightmove.co.uk makes no warranty as to the accuracy or completeness of the advertisement or any linked or associated information, and Rightmove has no control over the content. This property advertisement does not constitute property particulars. The information is provided and maintained by Roger Platt, Maidenhead. Please contact the selling agent or developer directly to obtain any information which may be available under the terms of The Energy Performance of Buildings (Certificates and Inspections) (England and Wales) Regulations 2007 or the Home Report if in relation to a residential property in Scotland.
*This is the average speed from the provider with the fastest broadband package available at this postcode. The average speed displayed is based on the download speeds of at least 50% of customers at peak time (8pm to 10pm). Fibre/cable services at the postcode are subject to availability and may differ between properties within a postcode. Speeds can be affected by a range of technical and environmental factors. The speed at the property may be lower than that listed above. You can check the estimated speed and confirm availability to a property prior to purchasing on the broadband provider's website. Providers may increase charges. The information is provided and maintained by Decision Technologies Limited. **This is indicative only and based on a 2-person household with multiple devices and simultaneous usage. Broadband performance is affected by multiple factors including number of occupants and devices, simultaneous usage, router range etc. For more information speak to your broadband provider.
Map data ©OpenStreetMap contributors.







