
Farnham Road, Sleaford, GU35

- PROPERTY TYPE
Detached
- BEDROOMS
5
- BATHROOMS
2
- SIZE
3,417 sq ft
317 sq m
- TENUREDescribes how you own a property. There are different types of tenure - freehold, leasehold, and commonhold.Read more about tenure in our glossary page.
Freehold
Key features
- No Onward Chain
- Modern
- Light and Spacious Detached Family Home
- Spacious and Versatile Accommodation
- Four Reception Rooms
- Four / Five Bedrooms
- Two Well Appointed Bathrooms
- Grounds Of Approx Under an Acre
- Leisure Suite with Swim Spa
- Detached Double Car Barn and Garage
Description
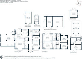
The first floor is equally impressive, with a principal bedroom suite boasting bi-fold windows framing far-reaching views over the gardens and countryside, as well as a luxury en suite shower room. There are three further double bedrooms, a family bathroom with separate shower, and a fifth bedroom currently arranged as a dressing room.
Viewing highly recommended to appreciate this impressive family home.
Outside
The south-easterly facing gardens extend to just under an acre with expansive lawns, mature borders, feature natural pond and views over the countryside. A patio runs the full length of the house, with dedicated entertaining spaces and seating areas. A real feature is the bar area attached to the kitchen via bi-fold window and a large covered entertaining area with cinema screen. The substantial outbuilding includes a gym, sauna, shower room and a covered swim spa to the rear. A summer house is nestled at the bottom of the garden with a veranda overlooking the River Slea.
To the front, the property is approached via secure electric gates with lawn area and a sweeping driveway proving ample off-road parking that leads to a detached double carport, garage and log store.
Situation
The property is ideally situated on the edge of the South Downs National Park in the small hamlet of Sleaford on the Surrey/Hampshire borders, surrounded by undulating countryside. The nearby villages of Kingsley and Bentley provide local amenities, with the larger towns of Farnham and Alton offering extensive shopping, dining and leisure facilities. London Waterloo is accessible in around an hour from Bentley station, with additional services from Farnham and Alton.
Property Ref Number:
HAM-60422Brochures
Brochure- COUNCIL TAXA payment made to your local authority in order to pay for local services like schools, libraries, and refuse collection. The amount you pay depends on the value of the property.Read more about council Tax in our glossary page.
- Band: G
- PARKINGDetails of how and where vehicles can be parked, and any associated costs.Read more about parking in our glossary page.
- Yes
- GARDENA property has access to an outdoor space, which could be private or shared.
- Yes
- ACCESSIBILITYHow a property has been adapted to meet the needs of vulnerable or disabled individuals.Read more about accessibility in our glossary page.
- Ask agent
Farnham Road, Sleaford, GU35
Add an important place to see how long it'd take to get there from our property listings.
__mins driving to your place
Get an instant, personalised result:
- Show sellers you’re serious
- Secure viewings faster with agents
- No impact on your credit score
Your mortgage
Notes
Staying secure when looking for property
Ensure you're up to date with our latest advice on how to avoid fraud or scams when looking for property online.
Visit our security centre to find out moreDisclaimer - Property reference a1nQ500000QRkxWIAT. The information displayed about this property comprises a property advertisement. Rightmove.co.uk makes no warranty as to the accuracy or completeness of the advertisement or any linked or associated information, and Rightmove has no control over the content. This property advertisement does not constitute property particulars. The information is provided and maintained by Hamptons, Liphook. Please contact the selling agent or developer directly to obtain any information which may be available under the terms of The Energy Performance of Buildings (Certificates and Inspections) (England and Wales) Regulations 2007 or the Home Report if in relation to a residential property in Scotland.
*This is the average speed from the provider with the fastest broadband package available at this postcode. The average speed displayed is based on the download speeds of at least 50% of customers at peak time (8pm to 10pm). Fibre/cable services at the postcode are subject to availability and may differ between properties within a postcode. Speeds can be affected by a range of technical and environmental factors. The speed at the property may be lower than that listed above. You can check the estimated speed and confirm availability to a property prior to purchasing on the broadband provider's website. Providers may increase charges. The information is provided and maintained by Decision Technologies Limited. **This is indicative only and based on a 2-person household with multiple devices and simultaneous usage. Broadband performance is affected by multiple factors including number of occupants and devices, simultaneous usage, router range etc. For more information speak to your broadband provider.
Map data ©OpenStreetMap contributors.








