5 bedroom detached house for sale
Harestone Hill, Caterham, CR3

- PROPERTY TYPE
Detached
- BEDROOMS
5
- BATHROOMS
2
- SIZE
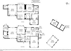
3,217 sq ft
299 sq m
- TENUREDescribes how you own a property. There are different types of tenure - freehold, leasehold, and commonhold.Read more about tenure in our glossary page.
Freehold
Key features
- A unique & classic example of Art Deco architecture with original features
- Open-plan lounge/diner enjoying garden & pool views
- Substantial open-plan kitchen/diner perfect for entertaining
- Balcony off rear bedroom overlooking grounds
- Enviable position on leafy Harestone Hill
- Sweeping driveway with ample parking & 2 garages
- Walking distance to Caterham Independent School (Best Senior Independent School 2023)
- Generous grounds, swimming pool & stunning wooded valley views
- Walking distance to Caterham Station (0.7 miles) & Upper Warlingham Station (3.1 miles) - c. 30 mins Victoria, c. 48 mins London Bridge
- ** See video link **
Description
This elegant and unique Art Deco property, with unmatched charm and character, has been sympathetically furnished and maintained by the current owners, who have lived in the property for more than 40 years.
Step into a world of timeless elegance and sophistication with this exquisite Art Deco property. Positioned in an enviable location down a sweeping tree-lined driveway, this residence provides historical charm, seclusion and privacy, but is within easy reach of amenities and the award-winning Caterham Independent School.
The property boasts iconic Art Deco architecture with its bold geometric shapes, intricate details and sleek, symmetrical lines.
On entering this charming home, you are met with an open hallway that leads to a cloakroom, study, open-plan sitting room and dining room and a separate kitchen with breakfast room. The well thought out living space faces the rear gardens with views over the flat lawn as well as the swimming pool and the wooded valley beyond.
Offering the perfect layout for family living and entertaining, the sitting room and dining room can be opened up to create a large space via connecting double doors. Both rooms have original Art Deco fireplaces. The dining room offers a pleasant place to dine and admire the grounds and pool area, with views beyond and over the valley. The dual-aspect lounge includes a small conservatory leading onto the gardens, providing the perfect area to prepare meals for alfresco dining. The spacious and sociable kitchen and breakfast room feature an island and a larder. In addition, there is a useful utility room with a side door to the garden. There is also a study to the front, off the breakfast room.
Leading upstairs, a notable feature of this home is the gallery landing with a striking Art Deco balustrade and a combination of full-length and smaller feature windows.
There are five generous-sized bedrooms, all with their very own unique characteristics. The large, dual-aspect master bedroom provides built-in cupboards, dual sinks and a feature window with views over the garden and pool. Folding doors lead to the en-suite bathroom with a corner bath, scallop sink and a window overlooking the rear garden. The second double bedroom features a balcony with breathtaking views over the valley and garden. The third bedroom, also a double, has built-in storage and a feature window. The fourth bedroom is split-level and currently used as a bedroom and gym.
Step outside to the beautiful, serene garden with manicured lawns, a patio ideal for entertaining and a swimming pool that reflects the property's elegant design.
As well as an abundance of hidden areas to explore within this exceptional property, further benefits include a greenhouse, plenty of storage for garden equipment and logs and an additional detached garage located next to the property.
Tenure: Freehold
Residents Maintenance: £60 per annum (General upkeep of Harestone Hill)
Council Tax Band: G
Tandridge District Council
Please quote reference MA0771 when enquiring about this home
Brochures
Brochure 1- COUNCIL TAXA payment made to your local authority in order to pay for local services like schools, libraries, and refuse collection. The amount you pay depends on the value of the property.Read more about council Tax in our glossary page.
- Band: G
- PARKINGDetails of how and where vehicles can be parked, and any associated costs.Read more about parking in our glossary page.
- Garage,Driveway,Off street
- GARDENA property has access to an outdoor space, which could be private or shared.
- Private garden
- ACCESSIBILITYHow a property has been adapted to meet the needs of vulnerable or disabled individuals.Read more about accessibility in our glossary page.
- Ask agent
Harestone Hill, Caterham, CR3
Add an important place to see how long it'd take to get there from our property listings.
__mins driving to your place
Get an instant, personalised result:
- Show sellers you’re serious
- Secure viewings faster with agents
- No impact on your credit score
Your mortgage
Notes
Staying secure when looking for property
Ensure you're up to date with our latest advice on how to avoid fraud or scams when looking for property online.
Visit our security centre to find out moreDisclaimer - Property reference S1093936. The information displayed about this property comprises a property advertisement. Rightmove.co.uk makes no warranty as to the accuracy or completeness of the advertisement or any linked or associated information, and Rightmove has no control over the content. This property advertisement does not constitute property particulars. The information is provided and maintained by eXp Luxury, London. Please contact the selling agent or developer directly to obtain any information which may be available under the terms of The Energy Performance of Buildings (Certificates and Inspections) (England and Wales) Regulations 2007 or the Home Report if in relation to a residential property in Scotland.
*This is the average speed from the provider with the fastest broadband package available at this postcode. The average speed displayed is based on the download speeds of at least 50% of customers at peak time (8pm to 10pm). Fibre/cable services at the postcode are subject to availability and may differ between properties within a postcode. Speeds can be affected by a range of technical and environmental factors. The speed at the property may be lower than that listed above. You can check the estimated speed and confirm availability to a property prior to purchasing on the broadband provider's website. Providers may increase charges. The information is provided and maintained by Decision Technologies Limited. **This is indicative only and based on a 2-person household with multiple devices and simultaneous usage. Broadband performance is affected by multiple factors including number of occupants and devices, simultaneous usage, router range etc. For more information speak to your broadband provider.
Map data ©OpenStreetMap contributors.




