
3 bedroom semi-detached house for sale
Start Hill, Great Hallingbury

- PROPERTY TYPE
Semi-Detached
- BEDROOMS
3
- BATHROOMS
3
- SIZE
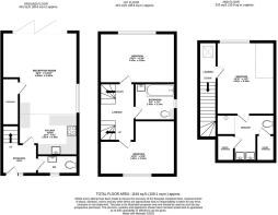
1,164 sq ft
108 sq m
- TENUREDescribes how you own a property. There are different types of tenure - freehold, leasehold, and commonhold.Read more about tenure in our glossary page.
Freehold
Key features
- ]
Description
•Semi Detached
•Three Bedrooms
•Designer Porcelanosa Bathrooms
•MVHR (Mechanical Ventilation with Heat Recovery)
•Under Floor Heating
• Electric Charging Point
• Air Source Heat Pump
• Triple Glazed Windows Throughout
Entrance Hall - Entrance door, frosted triple glazed windows to front, stairs to first floor, spot lights, luxury vinyl tile (LVT) flooring with underfloor heating.
Ground Floor Wc - Frosted triple glazed window to front, low level WC, vanity wash hand basin, spot lights, part tiled walls, tiled flooring with underfloor heating.
Lounge - 4.93m x 4.52m (16'2 x 14'10 ) - Triple glazed Bi Folding doors to rear, triple glazed window to side., cupboard hosing hot water system, spot lights, luxury vinyl tile (LVT) flooring with underfloor heating.
Kitchen - 3.51m x 2.46m (11'6 x 8'1 ) - Open plan to reception room, range of fitted wall and base units, electric hob, oven, extractor, microwave, fridge freezer, dishwasher, washing machine, spot lights, luxury vinyl tile (LVT) flooring with underfloor heating.
First Floor Landing - Stairs to second floor, spot lights, carpet with underfloor heating.
Bedroom Two - 4.52m x 3.05m (14'10 x 10') - Triple glazed window to rear, spot lights, carpet with underfloor heating.
Bedroom Three - 4.52m x 3.25m narrowing to 2.03m (14'10 x 10'8 nar - Triple glazed window to side, spot lights, carpet with underfloor heating.
Bathroom - Frosted triple glazed window to side, low level WC, vanity wash hand basin, bath with rainfall shower head, heated towel rail, spot lights, tiled walls, tiled flooring with underfloor heating.
Second Floor Landing - Triple glazed sky lights,, vaulted ceiling, carpet with underfloor heating.
Bedroom One - 4.52m x 3.48m (14'10 x 11'5) - Triple glazed window to rear, vaulted ceiling, carpet with underfloor heating.
En-Suite - Frosted triple glazed window to front, low level WC, twin wash hand basin, walk in shower enclosure with rainfall shower head, heated towel rail, two eaves storage cupboards, tiled walls, tiled flooring with underfloor heating.
Garden - 10.67m (35') - Side pedestrian access, patio, lawn, outside tap, power and light.
Parking - Two allocated parking spaces, electric charging point.
Brochures
Start Hill, Great Hallingbury- COUNCIL TAXA payment made to your local authority in order to pay for local services like schools, libraries, and refuse collection. The amount you pay depends on the value of the property.Read more about council Tax in our glossary page.
- Band: TBC
- PARKINGDetails of how and where vehicles can be parked, and any associated costs.Read more about parking in our glossary page.
- Off street,EV charging
- GARDENA property has access to an outdoor space, which could be private or shared.
- Yes
- ACCESSIBILITYHow a property has been adapted to meet the needs of vulnerable or disabled individuals.Read more about accessibility in our glossary page.
- Ask agent
Start Hill, Great Hallingbury
Add an important place to see how long it'd take to get there from our property listings.
__mins driving to your place
Get an instant, personalised result:
- Show sellers you’re serious
- Secure viewings faster with agents
- No impact on your credit score

Your mortgage
Notes
Staying secure when looking for property
Ensure you're up to date with our latest advice on how to avoid fraud or scams when looking for property online.
Visit our security centre to find out moreDisclaimer - Property reference 34369315. The information displayed about this property comprises a property advertisement. Rightmove.co.uk makes no warranty as to the accuracy or completeness of the advertisement or any linked or associated information, and Rightmove has no control over the content. This property advertisement does not constitute property particulars. The information is provided and maintained by Noble Residential, Covering Essex. Please contact the selling agent or developer directly to obtain any information which may be available under the terms of The Energy Performance of Buildings (Certificates and Inspections) (England and Wales) Regulations 2007 or the Home Report if in relation to a residential property in Scotland.
*This is the average speed from the provider with the fastest broadband package available at this postcode. The average speed displayed is based on the download speeds of at least 50% of customers at peak time (8pm to 10pm). Fibre/cable services at the postcode are subject to availability and may differ between properties within a postcode. Speeds can be affected by a range of technical and environmental factors. The speed at the property may be lower than that listed above. You can check the estimated speed and confirm availability to a property prior to purchasing on the broadband provider's website. Providers may increase charges. The information is provided and maintained by Decision Technologies Limited. **This is indicative only and based on a 2-person household with multiple devices and simultaneous usage. Broadband performance is affected by multiple factors including number of occupants and devices, simultaneous usage, router range etc. For more information speak to your broadband provider.
Map data ©OpenStreetMap contributors.





