
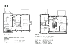
4 bedroom detached house for sale
Goodnestone, Canterbury, Kent, CT3 1FB

- PROPERTY TYPE
Detached
- BEDROOMS
4
- BATHROOMS
3
- SIZE
1,862 sq ft
173 sq m
- TENUREDescribes how you own a property. There are different types of tenure - freehold, leasehold, and commonhold.Read more about tenure in our glossary page.
Freehold
Key features
- Plot 1 - Now Released to Reserve
- Exceptional views across the far reaching surrounding countryside
- Private and secure development. A boutique collection of just three detached four bedroom luxury homes
- Located within the village of Goodnestone and conservation area
- Luxurious specification, bespoke finishes, flooring, appliances as standard
- Built by a highly respected Kent developer with a signature style
- Located within the village of Goodnestone and conservation area
- Generous plot sizes
- Contact us to attend our upcoming site walk event
- Completion Anticipated in Q1 2026
Description
Goodnestone Farmstead Completion Anticipated Late Q1
Join us for a VIP site walk event on Saturday 14th February...call us to book your exclusive slot.
A luxurious four-bedroom, three-bathroom family home offering exceptional space and specification
• Countryside views from landscaped rear gardens
• Exclusive private development of just three homes
• Superior specification with Fernfield’s signature design
• High-specification kitchens and bathrooms
• Woodburner to the lounge for cosy evenings
• Underfloor heating throughout the ground floor
Goodnestone Farmstead presents a boutique development of only three sublime, detached residences. Each home has been thoughtfully crafted to blend timeless Kentish character with modern luxury.
Located in the sought-after, quintessentially Kentish village of Goodnestone, this rare opportunity offers refined living in a truly special setting. Goodnestone has a rich history, and a warm sense of community.
A rare chance to secure a home of distinction — countryside views, boutique exclusivity, and Fernfield’s hallmark quality, all within one of Kent’s most desirable villages.
Contact us to Register your interest today and be among the first to hear more.
Disclaimer: Computer Generated Images (CGIs) are for illustrative purposes only and may not represent the final appearance, materials, or landscaping of the completed homes. All layouts, dimensions, and measurements are approximate and provided as a guide only. They should not be relied upon for purchasing decisions. Prospective buyers should satisfy themselves by inspection or otherwise as to the accuracy of the information provided. Specifications may be subject to change without notice.
Brochures
Brochure 1- COUNCIL TAXA payment made to your local authority in order to pay for local services like schools, libraries, and refuse collection. The amount you pay depends on the value of the property.Read more about council Tax in our glossary page.
- Ask agent
- PARKINGDetails of how and where vehicles can be parked, and any associated costs.Read more about parking in our glossary page.
- Private
- GARDENA property has access to an outdoor space, which could be private or shared.
- Private garden
- ACCESSIBILITYHow a property has been adapted to meet the needs of vulnerable or disabled individuals.Read more about accessibility in our glossary page.
- Ask agent
Energy performance certificate - ask agent
Goodnestone, Canterbury, Kent, CT3 1FB
Add an important place to see how long it'd take to get there from our property listings.
__mins driving to your place
Get an instant, personalised result:
- Show sellers you’re serious
- Secure viewings faster with agents
- No impact on your credit score
Your mortgage
Notes
Staying secure when looking for property
Ensure you're up to date with our latest advice on how to avoid fraud or scams when looking for property online.
Visit our security centre to find out moreDisclaimer - Property reference S1526574. The information displayed about this property comprises a property advertisement. Rightmove.co.uk makes no warranty as to the accuracy or completeness of the advertisement or any linked or associated information, and Rightmove has no control over the content. This property advertisement does not constitute property particulars. The information is provided and maintained by Hilden Management Limited, Covering Kent. Please contact the selling agent or developer directly to obtain any information which may be available under the terms of The Energy Performance of Buildings (Certificates and Inspections) (England and Wales) Regulations 2007 or the Home Report if in relation to a residential property in Scotland.
*This is the average speed from the provider with the fastest broadband package available at this postcode. The average speed displayed is based on the download speeds of at least 50% of customers at peak time (8pm to 10pm). Fibre/cable services at the postcode are subject to availability and may differ between properties within a postcode. Speeds can be affected by a range of technical and environmental factors. The speed at the property may be lower than that listed above. You can check the estimated speed and confirm availability to a property prior to purchasing on the broadband provider's website. Providers may increase charges. The information is provided and maintained by Decision Technologies Limited. **This is indicative only and based on a 2-person household with multiple devices and simultaneous usage. Broadband performance is affected by multiple factors including number of occupants and devices, simultaneous usage, router range etc. For more information speak to your broadband provider.
Map data ©OpenStreetMap contributors.





