Drury Lane, Lincoln, LN1

- PROPERTY TYPE
Detached
- BEDROOMS
3
- BATHROOMS
2
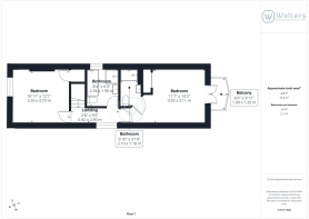
- SIZE
958 sq ft
89 sq m
- TENUREDescribes how you own a property. There are different types of tenure - freehold, leasehold, and commonhold.Read more about tenure in our glossary page.
Freehold
Key features
- Two/Three* bedroom detached home: Set on Drury Lane in highly desirable Uphill Lincoln
- Prime Cathedral Quarter location: Close to Steep Hill, Bailgate, and historic attractions
- Immaculately finished throughout: Beautiful décor with a warm, homely feel
- Open-plan kitchen/living area: Modern fitted kitchen with integrated appliances
- Separate lounge: Feature fireplace and attractive mantle
- Two double bedrooms: Principal bedroom with ensuite shower room
- Balcony with city views: Enjoy stunning outlooks from the principal bedroom
- Iconic views from bedroom two: Castle wall and Lincoln Cathedral outlook
- Lower ground floor cellar: Versatile additional space for storage, hobbies, or home working or potential third bedroom*
- Enclosed rear garden with views: A private outdoor space with impressive city outlooks
Description
A rare Uphill Lincoln gem, offering style, privacy and stunning city views in an exceptional setting.
Located on the ever-popular Drury Lane in Uphill Lincoln, this immaculately presented two-bedroom detached home offers a rare opportunity to enjoy stylish living in the heart of the Cathedral Quarter. Tucked away behind a shared gated entrance, the property enjoys a sense of privacy and charm, while being just a short walk from Steep Hill, the Bailgate, and Lincoln’s historic landmarks.
Step inside and you’re greeted by a beautifully finished open-plan kitchen/living area, featuring a modern fitted kitchen with integrated appliances and a welcoming space to relax or entertain. Moving through the home, you’ll find a separate lounge with a striking fireplace and mantle, adding character and a cosy focal point.
Upstairs, the property offers two generous double bedrooms. The principal bedroom benefits from its own ensuite shower room and a fantastic balcony with elevated views across the city—an ideal spot for a morning coffee or an evening unwind. The second bedroom enjoys equally impressive outlooks, with views towards the castle wall and Lincoln Cathedral. Completing the first floor is a stylish four-piece family bathroom, comprising a bath, separate shower, toilet, and basin.
A further standout feature is the lower ground floor cellar, this area benefits from having a window and radiators—an incredibly versatile space that could suit a range of uses, from storage to hobbies or a home working area. * This room could also potentially be a third bedroom (subject to necessary Building Regulations Approval)
Externally, the property benefits from a south facing, enclosed rear garden with yet more impressive city views, offering a private outdoor space in a truly special location. On-street and permit parking is available outside the property, adding to the practicality of this central setting.
For approximate room sizes, please refer to the floor plan. To gain a better understanding of the layout and overall space, please view the virtual tour provided.
To fully appreciate the finish, character, and incredible views on offer, contact Walters of Lincolnshire today to arrange your viewing.
EPC Rating: D
Disclaimer
Our Disclaimers:
Please Note: At the time of writing, all information provided in this listing is believed to be accurate and correct. While we strive to maintain the highest standards of accuracy, details may be subject to change.
Important Information Regarding Identity Verification: In compliance with legal obligations, all prospective property buyers will be required to undergo thorough identity verification checks. This process must be completed to proceed with any purchase.
- COUNCIL TAXA payment made to your local authority in order to pay for local services like schools, libraries, and refuse collection. The amount you pay depends on the value of the property.Read more about council Tax in our glossary page.
- Band: D
- PARKINGDetails of how and where vehicles can be parked, and any associated costs.Read more about parking in our glossary page.
- Yes
- GARDENA property has access to an outdoor space, which could be private or shared.
- Private garden
- ACCESSIBILITYHow a property has been adapted to meet the needs of vulnerable or disabled individuals.Read more about accessibility in our glossary page.
- Ask agent
Drury Lane, Lincoln, LN1
Add an important place to see how long it'd take to get there from our property listings.
__mins driving to your place
Get an instant, personalised result:
- Show sellers you’re serious
- Secure viewings faster with agents
- No impact on your credit score
Affordability
Notes
Staying secure when looking for property
Ensure you're up to date with our latest advice on how to avoid fraud or scams when looking for property online.
Visit our security centre to find out moreDisclaimer - Property reference 1e1312ee-1501-4c20-b95a-1e85c34df935. The information displayed about this property comprises a property advertisement. Rightmove.co.uk makes no warranty as to the accuracy or completeness of the advertisement or any linked or associated information, and Rightmove has no control over the content. This property advertisement does not constitute property particulars. The information is provided and maintained by Walters, Lincoln. Please contact the selling agent or developer directly to obtain any information which may be available under the terms of The Energy Performance of Buildings (Certificates and Inspections) (England and Wales) Regulations 2007 or the Home Report if in relation to a residential property in Scotland.
*This is the average speed from the provider with the fastest broadband package available at this postcode. The average speed displayed is based on the download speeds of at least 50% of customers at peak time (8pm to 10pm). Fibre/cable services at the postcode are subject to availability and may differ between properties within a postcode. Speeds can be affected by a range of technical and environmental factors. The speed at the property may be lower than that listed above. You can check the estimated speed and confirm availability to a property prior to purchasing on the broadband provider's website. Providers may increase charges. The information is provided and maintained by Decision Technologies Limited. **This is indicative only and based on a 2-person household with multiple devices and simultaneous usage. Broadband performance is affected by multiple factors including number of occupants and devices, simultaneous usage, router range etc. For more information speak to your broadband provider.
Map data ©OpenStreetMap contributors.





