
Rose Cottage, Cronk-Y-Dhooney, Colby

- PROPERTY TYPE
Detached
- BEDROOMS
1
- BATHROOMS
1
- SIZE
Ask agent
- TENUREDescribes how you own a property. There are different types of tenure - freehold, leasehold, and commonhold.Read more about tenure in our glossary page.
Ask agent
Key features
- Attractive detached Manx cottage offered for sale with no onward chain
- More suitable for cash buyers, property requires some modernisation
- Picturesque semi rural position boarding open fields to one side
- Delightful aspects over bordering countryside and down to the southern coastline
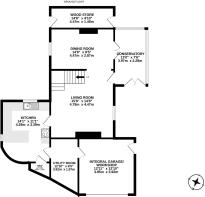
- Conservatory entrance
- Open plan living dining room
- Separate kitchen
- Utility room, boiler room and integral access to a small garage
- Large bedroom and a spacious bathroom (first floor accommodation could be reconfigured to create 2 smaller bedrooms and a bathroom - subject to any required approvals)
- Driveway with access to the integral garage and lawned garden with established shrubs and externally accessed store
Description
Rose Cottage is an attractive detached traditional Manx cottage offered for sale with no onward chain. Requiring a degree of modernisation, the property is considered more suitable for cash buyers and presents an excellent opportunity to enhance and personalise a charming home in a highly appealing setting.
Occupying a picturesque semi-rural position, the cottage borders open fields to one side and enjoys delightful far-reaching views across the surrounding countryside and down towards the southern coastline.
The accommodation is accessed via a conservatory entrance, leading into an open plan living and dining room, complemented by a separate kitchen. There is also a utility room, boiler room and integral access to a small garage.
The first floor currently provides a large bedroom and a spacious bathroom; however, this level could be reconfigured to create two smaller bedrooms and a bathroom, subject to any necessary consents.
Externally, the property benefits from a driveway with access to the integral garage, along with a lawned garden featuring established shrubs and an externally accessed store.
A rare opportunity to acquire a characterful countryside cottage with outstanding potential in a truly scenic location.
Inclusions All fitted floor coverings, blinds, curtains and light fittings
Appliances Oven and 4 ring hob - All contents are staying
Tenure Freehold
Rates Treasury tel -
Heating Oil
Windows uPVC double glazing
- COUNCIL TAXA payment made to your local authority in order to pay for local services like schools, libraries, and refuse collection. The amount you pay depends on the value of the property.Read more about council Tax in our glossary page.
- Ask agent
- PARKINGDetails of how and where vehicles can be parked, and any associated costs.Read more about parking in our glossary page.
- Yes
- GARDENA property has access to an outdoor space, which could be private or shared.
- Yes
- ACCESSIBILITYHow a property has been adapted to meet the needs of vulnerable or disabled individuals.Read more about accessibility in our glossary page.
- Ask agent
Energy performance certificate - ask agent
Rose Cottage, Cronk-Y-Dhooney, Colby
Add an important place to see how long it'd take to get there from our property listings.
__mins driving to your place
Get an instant, personalised result:
- Show sellers you’re serious
- Secure viewings faster with agents
- No impact on your credit score
Your mortgage
Notes
Staying secure when looking for property
Ensure you're up to date with our latest advice on how to avoid fraud or scams when looking for property online.
Visit our security centre to find out moreDisclaimer - Property reference 7056. The information displayed about this property comprises a property advertisement. Rightmove.co.uk makes no warranty as to the accuracy or completeness of the advertisement or any linked or associated information, and Rightmove has no control over the content. This property advertisement does not constitute property particulars. The information is provided and maintained by Garforth Gray, Isle of Man. Please contact the selling agent or developer directly to obtain any information which may be available under the terms of The Energy Performance of Buildings (Certificates and Inspections) (England and Wales) Regulations 2007 or the Home Report if in relation to a residential property in Scotland.
*This is the average speed from the provider with the fastest broadband package available at this postcode. The average speed displayed is based on the download speeds of at least 50% of customers at peak time (8pm to 10pm). Fibre/cable services at the postcode are subject to availability and may differ between properties within a postcode. Speeds can be affected by a range of technical and environmental factors. The speed at the property may be lower than that listed above. You can check the estimated speed and confirm availability to a property prior to purchasing on the broadband provider's website. Providers may increase charges. The information is provided and maintained by Decision Technologies Limited. **This is indicative only and based on a 2-person household with multiple devices and simultaneous usage. Broadband performance is affected by multiple factors including number of occupants and devices, simultaneous usage, router range etc. For more information speak to your broadband provider.
Map data ©OpenStreetMap contributors.






