
Moor Drive, Oakworth, Keighley, BD22

- PROPERTY TYPE
Semi-Detached
- BEDROOMS
3
- BATHROOMS
1
- SIZE
Ask agent
- TENUREDescribes how you own a property. There are different types of tenure - freehold, leasehold, and commonhold.Read more about tenure in our glossary page.
Freehold
Key features
- EPC Rating Is D
- Superbly Presented Semi-Detached Family Home
- Three Bedrooms & Two Loft Rooms
- Fabulous Open Plan Dining Kitchen & Conservatory
- Ample Parking & Garage
- Rear Artificial Lawn & Decking
- Popular Village Of Oakworth/Excellent Access To The Local Primary School
Description
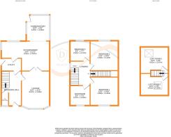
An ideal purchase for the growing family is this superbly presented semi-detached family home having three bedrooms and two loft rooms, situated in the popular village location of Oakworth with excellent access to the primary school. The well proportioned accommodation comprises of an entrance hall giving access to a cloaks WC, the lounge has an electric pebble effect fire in surround, radiator, double glazed window to the front. The open plan dining kitchen and conservatory are a real feature of this property having a range of modern base and wall mounted units, integrated dishwasher, Range Style cooker, double glazed doors to the rear. There is a separate utility area with built in storage cupboard, plumbing for an automatic washing machine, double glazed door to the side. To the first floor there are three bedrooms, the house bathroom is also on this level having a four piece suite comprising of a shower cubicle, bath, wash hand basin, WC. To the second floor there are two loft rooms both having double glazed Velux windows and radiators. Externally there is ample parking to the front leading to a garage, there is a rear artificial lawn with decking area, garden to the front. Viewing essential to fully appreciate, EPC rating is D.
Brochures
Brochure 1Brochure 2- COUNCIL TAXA payment made to your local authority in order to pay for local services like schools, libraries, and refuse collection. The amount you pay depends on the value of the property.Read more about council Tax in our glossary page.
- Band: C
- PARKINGDetails of how and where vehicles can be parked, and any associated costs.Read more about parking in our glossary page.
- Yes
- GARDENA property has access to an outdoor space, which could be private or shared.
- Yes
- ACCESSIBILITYHow a property has been adapted to meet the needs of vulnerable or disabled individuals.Read more about accessibility in our glossary page.
- Ask agent
Moor Drive, Oakworth, Keighley, BD22
Add an important place to see how long it'd take to get there from our property listings.
__mins driving to your place
Get an instant, personalised result:
- Show sellers you’re serious
- Secure viewings faster with agents
- No impact on your credit score
Your mortgage
Notes
Staying secure when looking for property
Ensure you're up to date with our latest advice on how to avoid fraud or scams when looking for property online.
Visit our security centre to find out moreDisclaimer - Property reference 29817691. The information displayed about this property comprises a property advertisement. Rightmove.co.uk makes no warranty as to the accuracy or completeness of the advertisement or any linked or associated information, and Rightmove has no control over the content. This property advertisement does not constitute property particulars. The information is provided and maintained by Day & Co Estate Agents Limited, Keighley. Please contact the selling agent or developer directly to obtain any information which may be available under the terms of The Energy Performance of Buildings (Certificates and Inspections) (England and Wales) Regulations 2007 or the Home Report if in relation to a residential property in Scotland.
*This is the average speed from the provider with the fastest broadband package available at this postcode. The average speed displayed is based on the download speeds of at least 50% of customers at peak time (8pm to 10pm). Fibre/cable services at the postcode are subject to availability and may differ between properties within a postcode. Speeds can be affected by a range of technical and environmental factors. The speed at the property may be lower than that listed above. You can check the estimated speed and confirm availability to a property prior to purchasing on the broadband provider's website. Providers may increase charges. The information is provided and maintained by Decision Technologies Limited. **This is indicative only and based on a 2-person household with multiple devices and simultaneous usage. Broadband performance is affected by multiple factors including number of occupants and devices, simultaneous usage, router range etc. For more information speak to your broadband provider.
Map data ©OpenStreetMap contributors.





